Lấy cảm hứng từ phong cách thiết kế Châu Âu, kết hợp cùng lối thiết kế cởi mở của kiến trúc bản địa, ngôi nhà Việt Nam được tạp chí kiến trúc nổi tiếng Archdaily vinh danh là Ngôi nhà đẹp nhất 2019.

Ngôi nhà có tổng diện tích hơn 1000 m2, nằm tại thành phố sầm uất nhất của Việt Nam – thành phố Hồ Chí Minh.

Tạp chí Mỹ cho biết họ đã bị “hớp hồn và kinh ngạc” ngay từ lần đầu tiên nhìn thấy ngôi nhà…

….bởi thiết kế vừa sang trọng bậc nhất đất nước Việt Nam, vừa mang lại cảm giác ấm cúng cho người sinh sống bên trong ngôi nhà.

Thiết kế này là một câu trả lời cho lối sống đương đại của người trẻ hiện đại.

Ngôi nhà sở hữu một bể bơi riêng…

…. là nơi tổ chức các bữa tiệc ngoài trời của gia đình.

Lối vào ngôi nhà giống như lối vào của một khách sạn 5 sao.

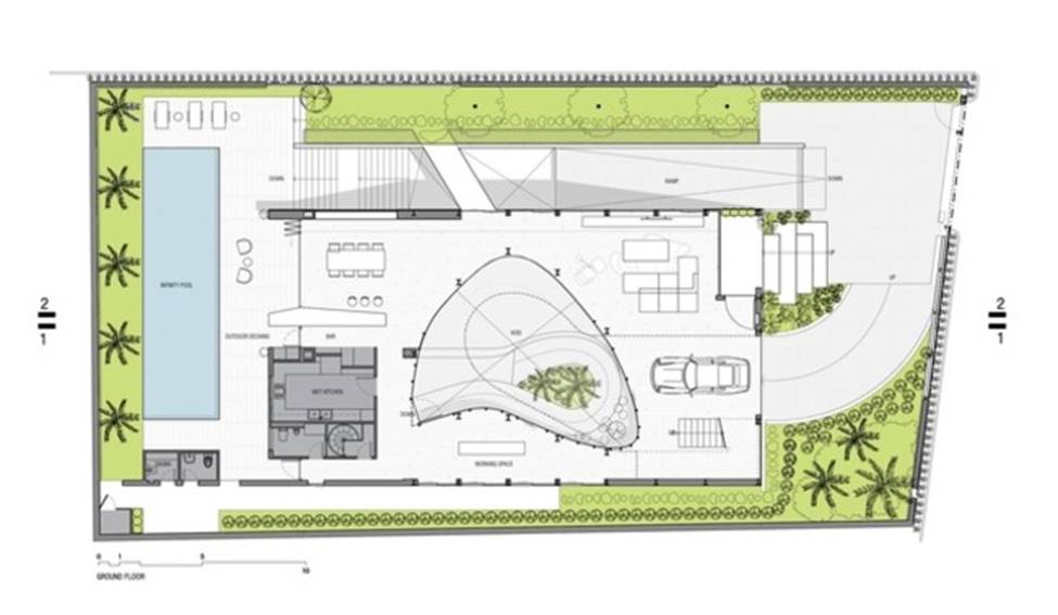
Sơ đồ tầng trệt của ngôi nhà.

Tầng hầm ngôi nhà có sức chứa tới bảy chiếc xe, với một sân trung tâm để lấy ánh sáng tự nhiên và thông gió.

Sơ đồ thiết kế tầng 1 của ngôi nhà.

Phòng khách tại tầng 1 là nơi tiếp khách, đồng thời là nơi trưng bày những siêu xe của chủ nhân.

Vẻ đẹp sang trọng của căn phòng khách.

Khu vực nấu ăn sang trọng chẳng khác nào một khách sạn 5 sao….

…với một khu vực rộng lớn và đầy đủ tiện nghi.

Khu vực ăn uống của gia đình ấm cúng với thiết kế hoàn toàn từ gỗ.

Phòng tắm với tông màu trắng khác biệt với màu sắc chung của ngôi nhà.

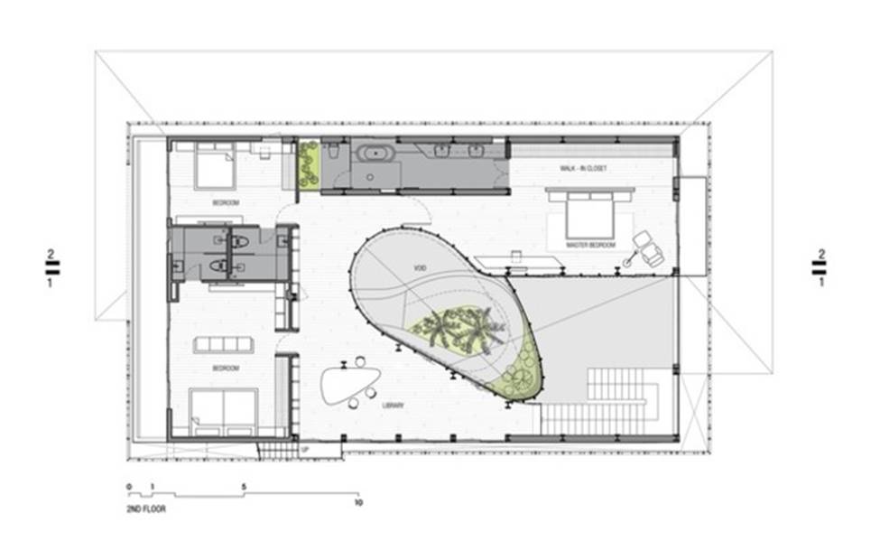
Sơ đồ thiết kế tầng 2.

Một phòng ngủ có thiết kế khá đơn giản với tông màu sáng, giống như mọi ngôi nhà tại Việt Nam.

Một phòng ngủ khác đầy đủ tiện nghi, sang trọng với tông màu tối.

Theo Dân Việt