Tùy theo nhu cầu và thẩm mỹ của gia chủ để lựa chọn mẫu nhà ống đẹp phù hợp với số lượng người ở và thói quen sinh hoạt. Hiện nay có các mẫu nhà ống phổ biến bao gồm: Nhà ống 1 tầng, nhà ống 2 tầng, nhà ống đẹp cấp 4, nhà ống 3 tầng, nhà ống kiểu Pháp, nhà ống mái thái, nhà ống lệch tầng,...
Những trường hợp nên chọn xây nhà ống
- Những miếng đất hình chữ nhật có chiều dài lớn gấp 3 đến 4 lần chiều rộng là lựa chọn hợp lý để xây nhà ống. Kích thước cụ thể như (chiều dài x chiều rộng): 4m x 15m; 4m x 18m; 5m x 12m; 6m x 15m; 5m x 20m; 6m x 20m,...
- Những gia đình có nguồn kinh phí để xây nhà từ 400 triệu đến hơn 1 tỷ đồng thì lựa chọn nhà ống là phù hợp.
- Nhà xây cho thuê, làm dịch vụ khách sạn, văn phòng, cửa hàng mà chi phí xây dựng thấp thì nhà ống cũng là một lựa chọn đáng cân nhắc.
Ưu điểm của nhà ống
- Nhà ống dù diện tích vừa và nhỏ nhưng dễ dàng xây thêm tầng, cơi nới chiều cao để tăng diện tích và không gian sử dụng
- Quá trình thi công dễ và nhanh hơn, thời gian hoàn thiện đến khi bàn giao nhà ngắn hơn so với các kiểu nhà hộp, biệt thự hoặc nhà chữ L, chữ U.
- Phù hợp xây dựng cả ở nông thôn và thành thị.
- Nếu chưa có điều kiện, có thể xây nhà ống 1 tầng trước, sau này có điều kiện xây chồng tiếp lên các tầng tiếp theo nhưng với điều kiện
+ Đổ móng chịu lực theo số tầng muốn nâng cấp sau này
+ Để sắt chờ phần thang bộ và không bịt kín miệng thang
+ Đổ mái trần bằng
Nhược điểm của nhà ống
- Diện tích vừa và nhỏ, nên phần bài trí nội thất bị gò bó, chật chội không được thông thoáng. Đặc biệt phần lấy gió và lấy sáng tự nhiên do các nhà ống thường “dính” vào nhau để tận dụng tối đa diện tích có.
- Nếu mặt sàn nhỏ, xây nhiều tầng thì đi lại và dọn dẹp sẽ vất vả hơn, đặc biệt đối với nhà có trẻ nhỏ và người lớn tuổi.
- Thi công nhà ống dễ gặp phải vướng mắc về các công trình bên cạnh san sát nhau đòi hỏi thợ có tay nghề và kỹ thuật tốt để không ảnh hưởng tới nhà bên cạnh.
- Các mặt tường giáp sát với nhà bên cạnh không trát xi vữa được, nếu không xử lý tốt dễ gây thấm nước, tường bị ẩm mốc.
Xây nhà ống có cần bản vẽ thiết kế không?
Về cơ bản, khi xây nhà ống, tùy theo điều kiện tài chính và mong muốn của chủ nhà mà lựa chọn tham khảo nhà có sẵn hoặc lên ý tưởng, thiết kế bản vẽ ngôi nhà theo ý và mang tính cá nhân hóa. Nhưng sẽ mất thêm chi phí thiết kế.
Nên cần có bản thiết kế kiến trúc, hồ sơ bao gồm dựng phối cảnh, bản vẽ kỹ thuật và bản dự toán chi phí xây dựng.
Ưu điểm của nhà có hồ sơ thiết kế:
- Kiểm soát được các chi phí phát sinh, công sai khi xây dựng và hoàn thiện ngôi nhà có nằm trong khả năng tài chính của chủ nhà hay không.
- Xem trước được toàn cảnh hình dáng ngoại thất ngôi nhà có hình dáng thế nào, nội thất bên trong được bố trí có phù hợp với công năng và nhu cầu sử dụng của gia chủ hay không, tính toán phương án hệ thống cửa lấy gió, lấy sáng cho toàn bộ căn nhà.
- Tính toán được diện tích từng phòng, chia số lượng phòng sao cho phù hợp, sắp xếp đồ đạc như giường tủ, tivi,... một cách khoa học.
- Các hệ thống đèn điện, đèn trang trí, hệ thống nước đều được sắp đặt theo tính toán và lưu hồ sơ để dễ dàng sửa chữa nếu có hỏng hóc.
- Dễ dàng thay đổi các phương án thiết kế đến khi chủ nhà đồng ý, còn xây theo mẫu có sẵn thì không.
Tham khảo các mẫu nhà ống đẹp đang là xu hướng hiện nay
1. Mẫu nhà ống đẹp giá rẻ chỉ từ 300 triệu đồng đến 500 triệu đồng
Nhà ống giá rẻ thì phần ngoại thất và nội thất sẽ chỉ thiết kế đơn giản, đồ đạc nội thất cũng được tối giản để tiết kiệm chi phí. Tuy nhiên sợ sự khéo léo của bàn tay kiến trúc sư và khối óc thẩm mỹ, những căn nhà ống giá rẻ này vẫn đẹp và đáp ứng tốt công năng sinh hoạt đời thường. Bạn có thể tham khảo các mẫu dưới đây.

Mẫu nhà ống giá rẻ mặt tiền 4m sử dụng mái lợp tôn chống nóng đỡ tốn được chi phí đổ mái trần bê tông. Cửa sổ cũng được thu nhỏ với kích thước vừa phải và sử dụng khung nhôm kính giúp tiết kiệm tối đa. Sơn 2 màu đối lập kẻ ô ngang giúp cho ngôi nhà 2 tầng đẹp mà không bị đơn điệu, thô kệch.

Nhà ống 2 tầng có mái tum chỉ từ 450 triệu đồng. Sử dụng các thanh lam bê tông dọc trên mái tăng tính thẩm mỹ cho ngôi nhà. Tường ngoại thất sơn màu xám đá với các hốc tường thò thụt lấy gió lùa vào cửa sổ làm cho căn phòng thông thoáng.

Phối cảnh mặt trước nhà ống 3 tầng có cửa chính thanh lan ngang đơn giản, cá tính. Tầng 2 và tầng 3 có ban công nhỏ dọc bên phải tường, bên trái là cửa kính cỡ lớn để hứng sáng. Các thanh lam bê tông đua ra khiến ngôi nhà thêm hình khối hiện đại hơn.

Nhà ống 3 tầng 500 triệu mặt ngõ sử dụng kính làm vật liệu cửa sổ và lan can tuy đơn giản mà đẹp, khung thép chắc chắn đảm bảo an toàn. Cửa chính 4 cánh mở rộng thuận tiện đi lại. Không gian bên trong luôn tràn ngập ánh sáng nhờ mảng tường bên trái có nhiều cửa sổ và không bị che khuất. Mẫu nhà ống sử dụng vật liệu nhôm kính rẻ hơn, tiết kiệm hơn
2. Mẫu nhà ống 1 tầng đẹp
Nhà ống 1 tầng là mẫu nhà đơn giản, dễ xây dựng nhất so với các mẫu nhà ống hiện nay. Chi phí xây nhà ống 1 tầng thấp, chỉ khoảng 300 triệu đồng. Phần móng nhà mức tải lực thấp hơn so với nhà ống 2,3,4 tầng và do đó kết cấu sắt thép cũng được cắt giảm cùng với đó là gạch, xi măng, cát, sỏi, sơn nhà,... cũng giảm theo. Tối ưu được chi phí thì dự toán sẽ không phát sinh nhiều.
Thời gian hoàn thành từ lúc khởi công đến khi bàn giao là khoảng 3 tháng.
Dưới đây là một vài mẫu nhà ống 1 tầng đẹp bạn có thể tham khảo:

Mẫu nhà ống đơn giản xây 1 tầng được thiết kế có gara để xe và đổ mái bằng. Tuy nhiên để làm theo kiểu này, chiều rộng tối thiểu từ 7m thì mới có không gian rộng, thoải mái được. Nếu không làm gara thì mặt tiền 5m là hợp lý, vẫn đẹp.

Nhà ống 1 tầng có gác lửng bên trong, kiểu dáng hiện đại. Kiến trúc phần mặt trước ngôi nhà được chia khối 2 phần tách biệt, một phần được ốp đá và một phần được đổ mái đua phía trên trồng cây cảnh nhỏ tạo cảnh quan xanh. Bên trong bố trí gác lửng tăng thêm diện tích sử dụng. Phía trước mặt sân cũng được trồng cây ven tường để hài hòa với tổng thể ngôi nhà.

Nhà ống 1 tầng giá rẻ phù hợp với nông thôn rất được ưa chuộng, các gia đình trẻ từ 2 đến 3 thành viên với vối tài chính hạn hẹp có thể tham khảo mẫu nhà này.

Mẫu nhà ống 1 tầng mái thái đẹp như căn biệt thự thu nhỏ. Mặt tiền thông thoáng, trước cửa trồng cây xanh trên nền thảm cỏ xanh mượt. Lối dẫn vào nhà thẳng cửa chính được đổ bê tông theo khối rồi rải đá nhám màu xám đen rất đẹp. Từ bên ngoài có thể nhìn sâu vào nội thất bên trong qua lớp cửa kính trong suốt.

Hiện đại, sang trọng của mẫu nhà ống mặt tiền 5m này khi ý tưởng mái đua lam kính từ các tòa nhà văn phòng cao cấp được áp dụng. Tường bao được thiết kế ăn khớp với kiểu dáng ngôi nhà.
Mẫu nhà ống 2 tầng
Bắt đầu có sự đa dạng hơn về thiết kế ngoại thất và nội thất. Do diện tích được sử dụng tăng lên và chi phí xây dựng, sắm sửa đồ đạc trong nhà cũng tăng theo. Với chi phí tầm 400 đến 500 triệu đồng là có thể xây được nhà ống 2 tầng đẹp.
Nhà ống 2 tầng có thể lựa chọn kiểu mái trần bằng đổ bê tông hoặc đổ mái thái lợp ngói, nếu rẻ và tiết kiệm hơn thì có thể lợp mái tôn. Thời gian hoàn thiện khoảng 4 đến 5 tháng.
Tham khảo các mẫu nhà ống 2 tầng dưới đây:

Mẫu nhà ống 2 tầng đơn giản. Ngoại thất mặt tiền tầng 2 được thiết kế chỉ có 2 cửa sổ dọc và mái đua phần ban công, trang trí bằng 2 chậu cây xanh. Tầng 1 phần dầm sàn tầng 2 đua ra được ốp gỗ và lắp thêm đèn downlight. Bên trong ánh sáng tự nhiên len lỏi từng góc cạnh nên không cần bật đèn.

Nhà ống 2 tầng tân cổ điển mái thái với màu sơn ngoại thất trắng toàn bộ. Sảnh trước đổ mái như mô hình thu nhỏ của kiểu dáng ngôi nhà. Cổng chính sơn đen là một điểm nhấn nổi bật.

Kiểu nhà lấy ý tưởng hình lồng chim tạo sự khác biệt và cá tính của gia chủ. Với kiểu nhà này, tầng 2 sẽ có khong gian cực kỳ thông thoáng do được lấy sáng và lấy gió tự nhiên thông qua ô cửa sổ to và các thanh lam chạy dọc theo tường đến mái.

Nhà ống 2 tầng có gác lửng. Tầng 1 được tăng chiều cao để bố trí thêm một căn gác lửng để làm phòng khách hoặc không gian sinh hoạt chung. Các kiểu nhà này phù hợp với thành thị, diện tích nhà nhỏ vừa đẹp lại có công năng hữu ích.

Nhà 2 tầng mặt tiền 5m, sâu 15m giá rẻ kiểu nhà ống dạng thò thụt được sơn màu chủ đạo là màu nâu đá sử dụng khung nhôm cửa kính đơn giản để tiết kiệm chi phí. Tầng thượng xây thêm bồn trồng cây để phủ mát căn nhà.

Nhà ống 2 tầng mái chéo mặt tiền 4.5m hiện đại theo xu hướng mới.
Mẫu nhà ống 3 tầng đẹp
Nhà ống 3 tầng là kiểu dáng phổ biến nhất trong các loại nhà ống hiện nay, chiều cao nhà không quá cao mà cũng không quá thấp. Từ mái bằng cho đến mái thái đều có thể lựa chọn. Tổng diện tích sử dụng đủ thoải mái cho từ 5 đến 6 người trong một gia đình cùng chung sống. Chi phí xây dựng từ 600 triệu đồng tới 800 triệu đồng tùy kiểu dáng và đơn giá vật liệu đi kèm với bản thiết kế. Thời gian hoàn thiện thi công lâu hơn so với các mẫu nhà ống khác do phải chờ đổ trần, dự kiến khoảng 6 tháng là xong.

Thiết kế dùng rèm để ngăn sáng quá mức. Gia chủ mệnh Mộc sử dụng gỗ để ốp phần ngoại thất mặt tiền làm chủ đạo. Tầng 1 bố trí cửa vào để gara ô tô và lối đi bên cửa phụ. Tầng 2 và tầng 3 là nơi sinh hoạt chính.

Kiểu nhà phong cách hiện đại gồm 3 tầng. Mặt tiền nổi bật là mảng tường lớn sơn màu trắng là điểm nhấn. Xung quanh là tương bao hở khe và lam bê tông tầng thượng. Tầng 1 để gara và lối đi phụ. Thiết kế tối giản là ý muốn của chủ nhân căn nhà.

Thoạt nhìn mẫu nhà này sẽ thấy được sự sáng tạo trong thiết kế khi sử dụng các thanh lam chạy dọc làm khung chắn kính bên trái của ngôi nhà. Chính giữa mặt trước là ban công tầng 2 độc đáo hình chữ C ngược được bo cạnh vuông, ban công tầng 2 và tầng 3 trồng cây xanh rất thuận mắt. Hệ thống đèn chiếu sáng trang trí vừa đủ. Tầng 1 có thể làm cửa hàng kinh doanh. Đây là mẫu nhà ống 3 tầng mặt phố đáng lưu tâm.

Kiểu nhà độc lạ, bắt mắt của gia chủ thích rực rỡ với nhiều màu sắc ngoại thất gồm trắng, vàng, nâu và xám đá, ghi. Cửa ra vào khá đặc biệt khi sử dụng cánh là các tấm gỗ được liên kết chắc chắn thành tấm lớn.

Mái thái là một trong những thiết kế mẫu nhà ống 3 tầng. Dáng vẻ cổ điển, sơn màu nâu nhạt và màu trắng. Sử dụng khung cửa nhôm kính giả vân gỗ giúp giảm được chi phí đầu tư. Mặt trước tầng 1 ốp đá tránh rêu mốc. Cửa cuốn cũng được trang bị, bên trong là lớp cửa kính an toàn. Thiết kế dành cho nhà mặt phố nên tầng 1 có thể làm văn phòng, cửa hàng kinh doanh.
Mẫu nhà ống cấp 4
Với kiểu nhà ống cấp 4 thì có kích thước tương tự như các mẫu nhà ống khác. Đa phần kiểu nhà này phù hợp với vùng nông thôn khi kinh phí chưa dồi dào để xây một căn nhà lớn thì lựa chọn kiểu nhà này là phù hợp. Thời gian thi công hoàn thiện nhanh chỉ trong 3 đến 4 tháng là xong.
Tổng chi phí thấp chỉ khoảng 200 đến 300 triệu là đã hoàn thành một ngôi nhà dành cho 3 đến 4 người ở bao gồm 2 phòng ngủ lớn, 1 phòng ngủ nhỏ, 1 phòng khách và 1 phòng bếp, 2 wc.

Mô phỏng nội thất bên trong mẫu nhà ống cấp 4 có 3 phòng ngủ

Nhà ống cấp 4 mái thái lợp ngói xám đồng bộ màu với hệ thống hàng rào và cổng chính. Vẫn có khoảng sân đủ rộng để trẻ nhỏ vui chơi và có chỗ để xe thoải mái. Cửa chính làm bằng gỗ, toàn bộ cửa sổ sử dụng nhôm kính cho tiết kiệm. Sảnh nhà dựng 2 cột bê tông rất chắc chắn.

Không có cảm giác chật chội hay bí bách khi thiết kế nhà ống cấp 4 kiểu này. Mái tôn lượn sóng màu ghi giả ngói, tường xây cao để tạo độ thông thoáng, khoảng sân đủ rộng để sinh hoạt vui chơi.

Mẫu nhà này còn được thiết kế thêm bồn cây cảnh rất đẹp mắt

Mẫu nhà ống cấp 4 có gác lửng đơn giản, tăng thêm diện tích sử dụng. Đồ đạc bài trí gọn gàng không rối mắt.

Không gian nhỏ gọn nhưng rất ấm cúng của nhà ống cấp 4 có gác lửng
Mẫu nhà ống lệch tầng
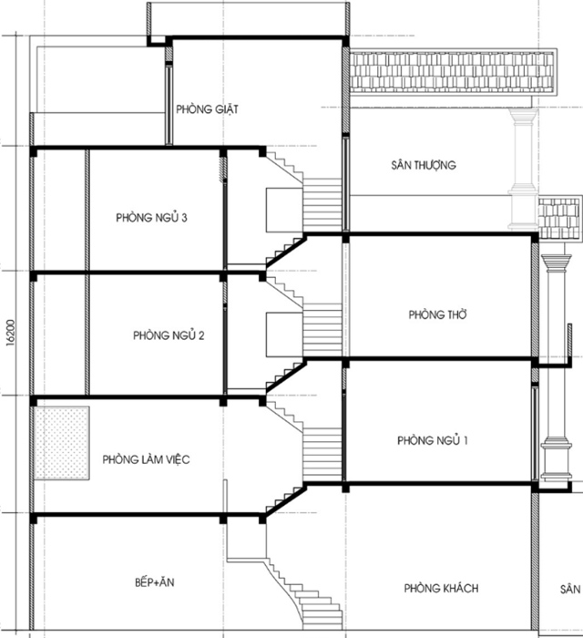
Nhà ống lệch tầng là kiểu nhà mà các sàn của tầng không nằm trên một mặt phẳng mà sắp xếp so le nhau. Đây là kiểu nhà có ưu điểm là tạo sự thông thoáng cho toàn bộ căn nhà, lưu thông gió và lấy sáng tốt. Tuy nhiên nhược điểm là phần thi công khó hơn, chi phí tốn kém hơn so với bình thường và đi lại nhiều bậc thang gây bất tiện nên ít được sử dụng. Đa số là nhà ống ở thành thị là hay xây kiểu này để giải quyết vấn đề bí bách không có cửa sổ 2 bên tường.

Mặt cắt nhà ống lệch tầng 4 tầng.

Dựng hình mẫu nhà ống lệch tầng. Tầng 1 là gara và không gian bếp, tầng 2 là phòng khách và chéo tầng là phòng ngủ. Tầng 3 là phòng khách và sân thượng.

Không gian nội thất nhà ống lệch tầng sang trọng như kiểu nhà bình thường

Mẫu nhà ống lệch tầng nhìn bên ngoài không khác gì các mẫu nhà ống bình thường khác.
Theo Thoidaiplus
