

Ngôi nhà này được xây dựng trên lô đất rộng 161m2, trong một con hẻm của làng chài Cửa Đại ở Hội An (Quảng Nam), nằm trong khu vực đông dân cư và ít cây xanh.

Gia chủ mong muốn có một môi trường yên tĩnh cho cha mẹ dưỡng già và tạo ra không gian để gia chủ dạy vẽ. Đồng thời, ngôi nhà cũng phải đáp ứng yêu cầu tiết kiệm ngân sách nhất có thể.


Do đó, các kiến trúc sư đã thiết kế khéo léo, để tích hợp các không gian động và tĩnh, tối ưu hóa mặt tiền hướng Tây dài 16m.

Điểm nhấn của thiết kế là phòng vẽ, một không gian đa chức năng để vẽ, giảng dạy, triển lãm, đọc sách và thư giãn. Nội thất trong không gian này được thiết kế để thay đổi nhanh chóng và linh hoạt.

Khu vườn xanh tươi đóng vai trò như một máy lọc không khí tự nhiên, giảm tiếng ồn và cung cấp không khí trong lành.

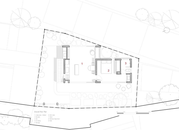
Không gian gia đình kết hợp phòng khách và bếp với đồ nội thất linh hoạt, khuyến khích sự tương tác giữa các thành viên trong gia đình, bạn bè và học sinh.

Điểm nhấn đặc biệt là phòng dạy vẽ và phòng sinh hoạt gia đình, hai không gian được ngăn cách bằng một cầu thang riêng. Từ đó, kiến trúc sư đảm bảo sự riêng tư cho hai không gian với hai đặc tính khác nhau.

Thiết kế kết hợp một số giải pháp để thích ứng với thời tiết khắc nghiệt của miền Trung. Thông gió không khí được tăng cường vào mùa hè, thông qua các phần lùi tạo ra các điểm đón gió và giải phóng gió.

Mái ngói bê tông kết hợp có thể chịu được bão nhiệt đới và hệ thống thoát nước mưa công suất lớn, cung cấp nước cho các khu vườn trên mặt đất.

Vật liệu được lựa chọn vì hiệu quả về mặt chi phí và nhu cầu hoàn thiện tối thiểu. Bê tông đánh bóng được sử dụng về mặt kết cấu để tránh tải trọng bổ sung và dễ vệ sinh.

Đá mài và đá cuội có độ bền, đặc tính chống trượt và dễ bảo trì. Gỗ tự nhiên địa phương, được trồng trong khu vực, mang lại lợi ích kinh tế. Sử dụng vật liệu và thợ thủ công địa phương đảm bảo chất lượng và sự liên quan về mặt văn hóa.

Ngôi nhà này là điểm nhấn xanh tại làng chài, tăng cường kết nối cộng đồng và mang đến góc nhìn mới cho người dân. Ngôi nhà phản ánh mong muốn của chủ nhà về một mái ấm ấm áp, thịnh vượng và an toàn cho mọi thành viên, gắn kết các thế hệ và cộng đồng.
Theo Tiền Phong
