Vùng duyên hải Nam Trung Bộ Việt Nam từ lâu đã được định hình bởi những ngôi nhà cấp 4 đơn sơ nhưng đầy quyến rũ. Ngôi nhà có diện tích 96m2, toạ lạc tại Tuy Phong, tỉnh Bình Thuận sau đây cũng không phải ngoại lệ.

Mặt tiền không quá khác biệt so với những ngôi nhà xung quanh.
Thách thức lớn nhất đối với nhóm thiết kế đó là gia chủ mong muốn cải tạo lại ngôi nhà được xây dựng từ những năm 1960 do ông bà để lại.

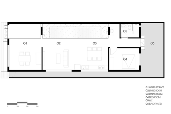
Thiết kế mặt bằng của ngôi nhà.
Với niềm tin được giao phó, các kiến trúc sư đã đưa ra một ý tưởng táo bạo, đó là không chỉ bảo tồn nét đặc sắc truyền thống mà còn kết hợp hài hòa với nét hiện đại vào công trình.

Không gian thờ cúng được bố trí ngay đầu ngôi nhà.

Đồ nội thất của ngôi nhà cũ được sử dụng trong không gian thờ cúng.
Để đạt được mục tiêu nói trên, các kiến trúc sư đã tổ chức lại các không gian bên trong, cũng như đơn giản hóa chức năng của ngôi nhà.

Không gian thờ cúng chiếm 1 phần của ngôi nhà, 3 phần còn lại của các không gian khác.
Nhìn chung, ngôi nhà được chia theo quy tắc 1:3, tách biệt giữa truyền thống và hiện đại. Trong không gian thờ cúng, gia chủ muốn tận dụng nội thất cũ.

Ngay sau không gian thờ cúng là khu vực tiếp khách.

Giữa khu tiếp khách và bếp được ngăn chia bằng chiếc ghế sofa.

Khu vực bếp và bàn ăn.
Không gian sống được ngăn chia bằng cách sử dụng nội thất, kết hợp với sân vườn bên trong và giếng trời lớn. Ngoài tăng cường ánh sáng tự nhiên, nó còn đóng vai trò lớn trong việc tạo ra một không gian sống thoải mái.

Sân vườn và giếng trời bên trong nhà.

Góc thư giãn ở sân vườn.

Giếng trời mang đến nhiều ánh sáng tự nhiên hơn cho ngôi nhà.

Một góc phòng ngủ.
Kiến trúc sư cũng đã tính đến việc thử nghiệm giải pháp mặt tiền, để có thể mang lại điều gì đó mới mẻ nhưng không quá khác biệt so với những nhà xung quanh.

Gỗ trang trí ở mặt tiền của ngôi nhà là gỗ căm xe.
Ngôi nhà này thể hiện sự kết hợp hoàn hảo giữa kiến trúc truyền thống, địa phương với kiến trúc hiện đại, quen thuộc nhưng không quá phổ biến.
Đối với hệ thống cửa sổ quay, cửa chính và một số chi tiết trang trí khác trên mặt tiền, kiến trúc sư đã cân nhắc sử dụng gỗ căm xe làm vật liệu tối ưu nhất.

Ngôi nhà có sự kết hợp giữa truyền thống và hiện đại.
Loại gỗ này có thể dễ dàng tìm thấy ở bất kỳ cửa hàng thợ mộc nào ở địa phương và từ lâu đã được ứng dụng trong xây dựng nhà cửa.
Hơn nữa, với tính mềm dẻo và khả năng chống thấm nước, gỗ căm xe đã chứng tỏ được độ bền của nó qua năm tháng và trở thành nét đặc trưng của những ngôi nhà địa phương.
Theo Vietnamnet
