Đây là căn nhà đẹp của một cặp vợ chồng người cao tuổi và cậu con trai với phong cách thiết kế thân thiện, phù hợp với mọi lứa tuổi. Sự bình yên trong nội tâm, đi lại an toàn, di chuyển thuận lợi là những ưu tiên hàng đầu và điều đó đã được KTS đáp ứng.

Trong từng chi tiết nhỏ nhặt, nhà thiết kế đều dùng tư duy và sự đồng cảm để lắng nghe, đặt mình vào thói quen sinh hoạt của người lớn tuổi, để họ cảm thấy thoải mái và được thấu hiểu trong các hoạt động của cuộc sống hàng ngày.

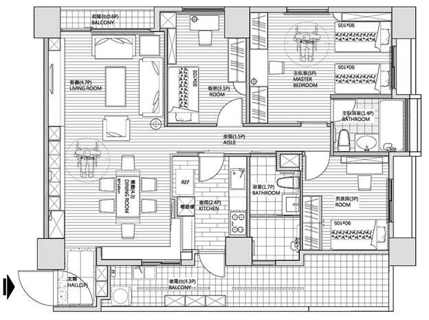
Sơ đồ căn hộ sau cải tạo: Diện tích trong nhà là 34m², bố trí 3 phòng ngủ, 2 phòng khách, 2 phòng tắm.

1. Thiết kế lối vào
Quyết định cải tạo nhà nhưng gia chủ vẫn còn tình cảm với những thứ cũ kỹ và không muốn thay thế tất cả. Bức tượng hình học màu xanh lá cây đậm được giữ ở hiên nhà, đồng thời bổ sung chiếc tủ giày bằng gỗ màu sáng, để đạt được một cân bằng thị giác giữa cái cũ và cái mới. Nó vừa mang phong cách hoài cổ của quá khứ vừa mang đến cảm giác hoàn toàn mới.

Để làm cho hành lang nhỏ có tác dụng mở rộng, tủ giày được thiết kế không gắn với sàn và có kết cấu thông minh để việc cất giữ dày dép được tiện lợi mà vẫn gọn gàng.
2. Thiết kế phòng khách
Nữ chủ nhân là giáo viên, cô rất thích đọc và sưu tầm, lưu trữ sách. Chính vì vậy phòng khách ban đầu đã được cải tạo lại cho phù hợp bằng cách loại bỏ tủ gỗ thông thường rồi đổi thành hệ thống tủ, giá, kệ liên hoàn và linh hoạt đáp ứng nhu cầu sắp xếp, lưu trữ sách.

Màu sắc của tủ là màu sáng cùng tông với sàn gỗ siêu chịu mài mòn làm toát lên sự ấm cúng và yên bình. Phần giá kệ trống là nơi đặt sách lại được ốp gỗ ván màu đen tạo nên sự tương phản và cũng là điểm nhấn cho không gian phòng khác thêm ấn tượng. Bên cạnh đó, những chiếc ghế sofa cũ màu đen vẫn được lưu giữ để sử dụng thể hiện tinh thần hoài niệm, yêu quý kỷ niệm xưa cũ của chủ nhân.

3. Thiết kế phòng ăn
Tính đến nhu cầu sử dụng xe lăn nên gia chủ duy trì cảm giác rộng rãi với không gian công cộng, không có rào cản giữa phòng ăn và phòng khách, để người ngồi có thể yên tâm làm những việc mình muốn.

Gia chủ có thói quen pha cà phê nên một tủ gỗ hình chữ L được kê dọc theo tường. Trên tủ gỗ có thể đặt máy pha cà phê rất tiện lợi, ngăn kéo còn có thể đựng thực phẩm sức khỏe và máy đo huyết áp cần thiết cho người lớn tuổi. Chiếc tủ trưng bày trên tường chứa những chiếc cốc mang về từ những chuyến du lịch của gia chủ, tiếp tục là một yếu tố lưu giữ quá khứ.
4. Thiết kế phòng bếp
Trong vài năm trở lại đây, nữ chủ nhân luôn cảm thấy thiết kế ban đầu của phòng bếp không được lý tưởng và không gian không đủ rộng nên trong lần cải tạo này, cô quyết định đập bỏ tường và làm lại. Phòng bếp sau khi sửa sang lát nền bằng gạch vân gỗ, diện tích tổng thể được nới rộng ra, kê thêm tủ điện, đèn gầm, bếp ba họng tạo cảm giác thoải mái hơn khi sử dụng.

5. Thiết kế phòng tắm và vệ sinh
Để dễ dàng cho người cao tuổi sinh hoạt, nhà tắm và nhà vệ sinh cũng là một trọng tâm chính được lưu tâm. Cụ thể, nhà vệ sinh sử dụng cửa trượt ngang và thiết kế sàn không chênh lệch độ cao với gạch đá phién chống chơn trượt để thuận tiện, an toàn cho người già khi sử dụng xe lăn đi lại.

Tủ dưới của bồn rửa mặt được loại bỏ để nhường chỗ cho xe lăn di chuyển êm ái, giảm bớt gánh nặng tâm lý cho người sử dụng, cảm thấy nhẹ nhõm vì được thấu hiểu. Cửa kính trong khu vực ướt sử dụng cửa trượt ngang ba mảnh lồng vào nhau, bồn tắm nguyên bản được loại bỏ để tăng không gian tắm, và các tay vịn được bố trí kín đáo hơn để đảm bảo an toàn cho người già yếu trong khi tắm.
6. Thiết kế phòng ngủ chính
Vì chủ nhân là người cao tuổi, nên trong phòng ngủ chính được sử dụng hai chiếc giường đơn để hai vợ chồng có đủ không gian nằm thoải mái, hơn nữa dù bước lên hay xuống giường cũng dễ dàng thuận tiện mà không làm phiền người khác. Phần thân tủ ban đầu đã được thay đổi màu sắc và ốp bằng gỗ vụn màu xám nhạt, giúp kích hoạt trải nghiệm thị giác tổng thể.


7. Thiết kế phòng con trai
Chủ nhân có hai người con trai, một người đã lập gia đình và ra ở riêng, phòng của người con trai này được sử dụng bởi người con trai kia. Màu xám hướng nội được sử dụng làm màu chủ đạo mang đến một bầu không khí tĩnh lặng và ổn định. Để tăng thêm chức năng, trong tủ được bổ sung thêm một khoang chứa đồ có thể nâng hạ, có thể cất quần áo dày và chăn mùa đông.

Điều đáng nói là có một bộ bàn ghế cổ được chủ nhân mang về từ Nhật Bản và đặt trong phòng của cậu bé, nhưng nó không thể nhét vào tủ một cách trơn tru về kích thước nên phải nằm rải rác trong phòng theo năm tháng. Gia chủ hy vọng qua lần cải tạo này, bộ bàn ghế cổ có được chỗ trú chân phù hợp nên những chiếc tủ trống sát đất được dỡ bỏ và thay vào đó là những chiếc tủ chữ L được đo đạc lại, để bộ bàn ghế cổ có chỗ đứng hợp lý.

8. Lưu thông không có rào chắn
Trục chính cốt lõi của ngôi nhà có người cao tuổi thể hiện ở sự lưu thông không có rào chắn, sự kết nối giữa các không gian để đảm bảo gia chủ có thể di chuyển thoải mái, an toàn và chắc chắn. Đường di chuyển thông suốt và lối đi rộng rãi, đưa gia chủ đến tạo tư thế thong thả như ý muốn.

Tận dụng tốt cửa trượt ngang không ngưỡng và mặt đất thiết kế giật cấp giúp loại bỏ sự chênh lệch về chiều cao, chiều rộng của hành lang và cửa ra vào tối thiểu là 85cm để tăng sự thuận tiện trong việc di chuyển, đem lại cảm giác thoải mái cho người già.
9. Thiết kế chiếu sáng
Sử dụng đèn LED thông minh tiết kiệm năng lượng, đặc biệt trên bức tường nối phòng ngủ chính phía dưới hành lang và lắp thêm đèn bảo vệ để đảm bảo an toàn về đêm.

10. Lựa chọn vật liệu xây dựng
Đồ gỗ, sàn gỗ siêu chịu mài mòn, gạch vân gỗ, gạch đá ván trượt, lưới gỗ đặc…

11. Phương án màu sắc
Một mảng lớn vân gỗ ấm áp và ván ốp sẫm màu được sử dụng để tạo sự cân bằng giữa tính hợp lý và cảm quan. Lối đi dài được phân chia theo tỷ lệ dọc của vân gỗ và tường trắng, xóa bỏ sự đơn điệu cho không gian.

Theo V.K - Vietnamnet
