
Ngôi nhà nằm trên khu đất rộng 37m2, quay về hướng Tây đón nắng mỗi chiều. Mặc dù nằm giữa vùng đất khô cằn, thiếu cây xanh và những tòa nhà ống dày đặc điển hình ở TP. Hồ Chí Minh, nhưng căn nhà vẫn gây ấn tượng bởi kiến trúc độc đáo với khu vườn xanh mát ở mặt tiền.

Điểm ấn tượng nhất của ngôi nhà chính là thiết kế sole ở mặt trước và được phủ xanh bằng nhiều loại cây khác nhau, trải dài suốt 3 tầng. Vì lý do này mà nhìn từ xa, căn nhà như được bao phủ bởi vườn cây xanh, điều hiếm hoi có được khi ở giữa phố.

Một phần của căn nhà được sử dụng làm văn phòng hội họa.

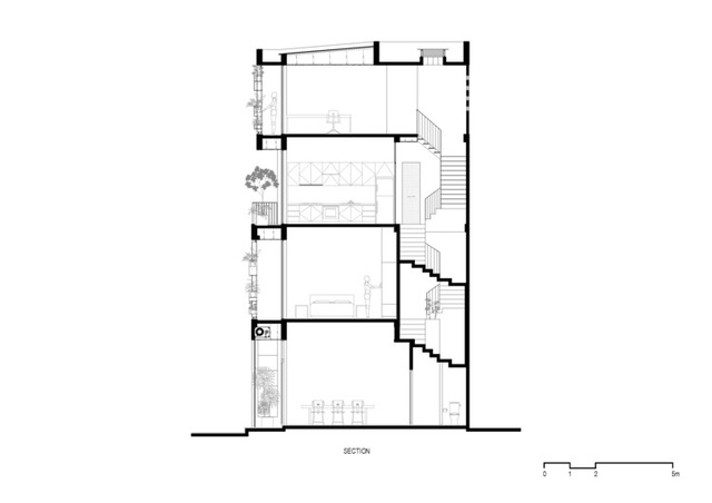
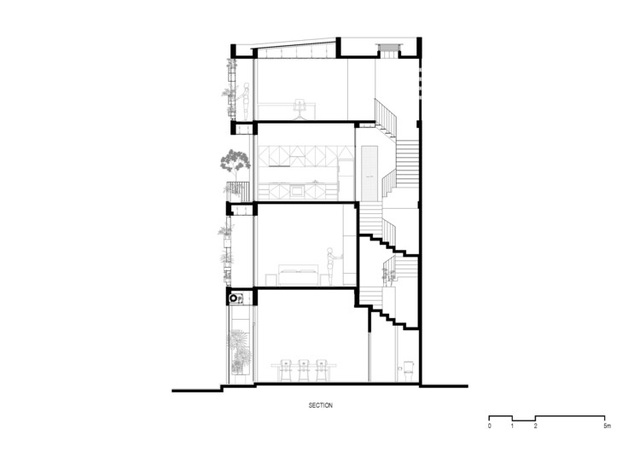
Ngôi nhà có 4 tầng, mỗi tầng đều được bài trí cây xanh ở khắp nơi trong từng phòng.

Chủ nhân sống trong ngôi nhà hiện tại là những người làm việc trong lĩnh vực nghệ thuật, yêu thích không khí tự nhiên, cây cối và động vật. Họ muốn xây dựng một ngôi nhà 4 tầng để đáp ứng nhu cầu của cuộc sống và công việc tương lai. Ngay từ khi lên ý tưởng, các nhà kiến trúc đã đặt mục tiêu của dự án với các giá trị: yên tĩnh, thân thiện với bối cảnh khu phố và tạo không gian hòa hợp hơn giữa con người và thiên nhiên.

Trước khi sở hữu căn nhà đầy sáng tạo, gia chủ cũng từng sinh hoạt tại một ngôi nhà ở vùng nông thôn rộng rãi, có không gian nối từ trước ra sau. Dựa trên kí ức đó, thiết kế của ngôi nhà đã mở ra tầm nhìn từ các không gian sinh hoạt chung như phòng khách, phòng ăn, không gian vẽ.
Mặt khác, sự tách biệt trong không gian nội thất bị hạn chế bằng cách giảm thiểu các bức tường gạch chắc chắn, ưu tiên sử dụng các bức tường kính.
Như vậy, mọi người vẫn có thể có không gian tụ tập dễ dàng mà vẫn cảm thấy gần gũi thân thuộc như ngôi nhà thời thơ ấu.

Đáp ứng với bối cảnh thời đại hiện nay, một trong những giải pháp chính cho kiến trúc của ngôi nhà là lắp đặt hệ thống chậu cây treo trên mặt tiền. Mặt tường xanh không chỉ ngăn ánh nắng gay gắt vào buổi chiều mà còn hạn chế tầm nhìn từ ngoài vào trong nhà. Do đó, không gian nội thất trở nên yên tĩnh, riêng tư và mát mẻ hơn.

Những chậu cây này cung cấp một lượng hơi nước và oxy mát mẻ cho toàn bộ ngôi nhà. Những tán cây làm cho ngôi nhà trông đơn giản như một bức tường xanh, giúp cho khu phố trông thân thiện hơn.

Nhìn vào ngôi nhà sau khi hoàn thành, mọi góc độ đều là màu xanh của lá. Đây chính là một nơi lý tưởng giúp mọi người cảm thấy bình yên, sau những ngày làm việc căng thẳng, đặc biệt là trước những áp lực của cuộc sống đô thị mệt mỏi.
Theo Dân Trí
