Thạch cao là một vật liệu xây dựng và trang trí nhà ở rất phổ biến hiện nay. Tuy rằng nhiều gia chủ không thích sử dụng nó khi thiết kế nhà mới vì cho rằng đó là vật liệu rẻ tiền và thường chỉ mang lại không gian trực quan chung chung, nhưng nếu biết cách sử dụng chúng hoàn toàn có thể "biến hóa" căn nhà bạn với những diện mạo mới bất ngờ.

Chủ nhân ngôi nhà dưới đây cũng đã sử dụng những bức tường trắng lớn và những đường phào chỉ thạch cao phổ biến nhất nhưng đã tạo cho không gian sinh hoạt một cảm giác khác lạ về phong cách, đẹp mắt và ấn tượng. Nghe có vẻ cường điệu nhưng sau khi nhìn thấy hiệu quả tại chỗ thì có lẽ nhiều người sẽ ngạc nhiên, và khi trang trí nhà cửa bạn cũng có thể làm tương tự vì hiệu quả rất tốt.

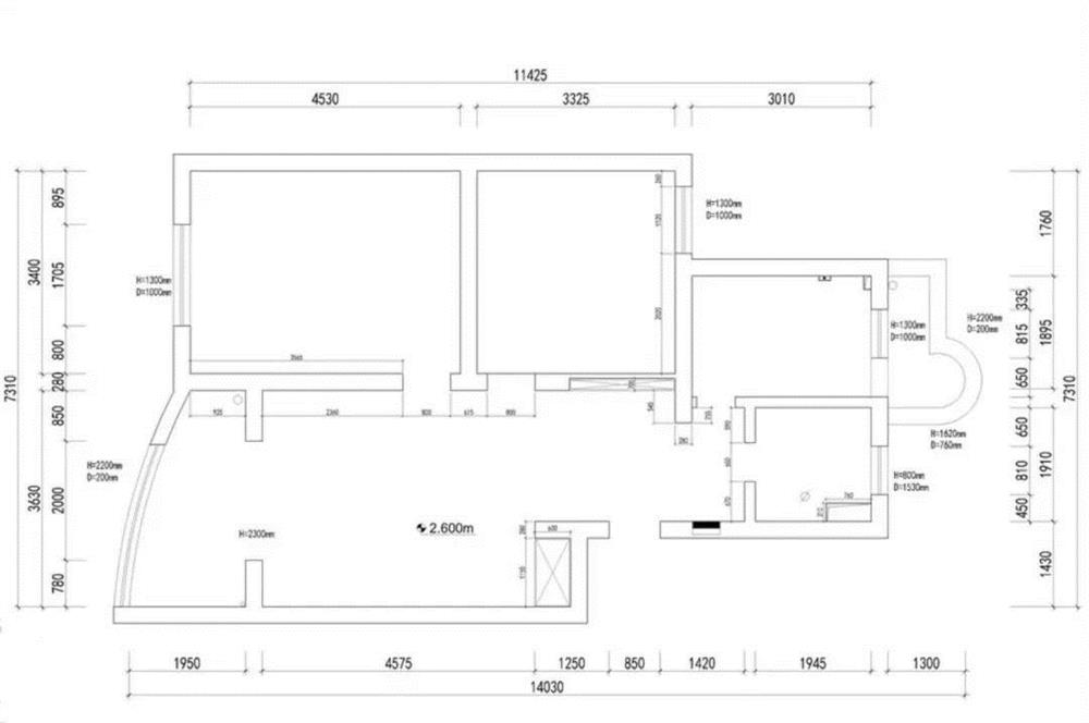
Sơ đồ cấu trúc ban đầu của ngôi nhà
Ngôi nhà có diện tích xây dựng 86m², 2 phòng ngủ, 2 sảnh, gia đình có ba người lớn và một cậu con trai. Cách bố trí căn hộ ban đầu khá thông thường và có một số vấn đề như không gian quá nhỏ. Gia chủ làm việc trong lĩnh vực thời trang nên anh có hiểu biết riêng về màu sắc và thẩm mỹ. Khi có kế hoạch cải tạo nhà, anh mong đợi toàn bộ không gian sẽ mang dấu ấn thời retro trên nền tảng của ánh sáng và các KTS đã đáp ứng điều đó.

Kế hoạch sàn trong thiết kế cải tạo
Cụ thể, sau khi kết hợp với những khiếm khuyết của căn nhà nguyên bản, không gian sinh hoạt đã được bố trí lại như sau:
1. Bức tường của phòng ngủ thứ hai được lùi vào nhằm tăng diện tích sử dụng cho khu vực ăn uống.
2. Ban công phía Nam được kết hợp vào phòng khách, và trên tiền đề cải thiện cảm giác không gian, một khu vực thư giãn được mở rộng.
3. Cửa ra vào của phòng ngủ chính được lùi về hướng Nam giúp vách tivi và sofa đối xứng nhau giúp tỷ lệ không gian hài hòa hơn.
4. Vì con còn khá nhỏ nên phòng ngủ thứ hai từ bỏ cách bài trí thông thường và được bố trí là khu vực dành cho cha mẹ - con cái để đáp ứng nhu cầu vui chơi của trẻ.
Lối vào
Ngay từ thiết kế cửa ra vào, bạn gần như có thể nhìn thấy rõ tông màu của toàn bộ không gian. Các bức tường chủ yếu được sơn màu trắng trắng, và sàn được lát gỗ theo các hình xương cá, sau đó được trang trí bằng một số yếu tố retro. Ngay trên không gian sạch sẽ đã tôn lên nét thời trang hiện đại.

Xét thấy việc đặt tủ giày truyền thống cạnh cửa ra vào không phù hợp, KTS đã lựa chọn một tủ giày hoàn thiện hơn và hoàn toàn mới lạ mà có lẽ khách khứa vào nhà sẽ không nhận ra. Tủ giày này cũng có thể giải quyết được nhu cầu lưu trữ của lối vào.
Phòng tắm
Bên cạnh tủ giày là phòng tắm, tường và sàn được làm bằng đá mài, không chỉ mang yếu tố hoài cổ của không gian mà còn cho thấy một kết cấu mạnh mẽ. Cấu hình bồn cầu treo tạo điều kiện thuận lợi cho việc dọn dẹp và vệ sinh trên mặt đất. Không gian bên trên cũng được gắn với một tủ âm tường, giải quyết nhu cầu lưu trữ đồ dùng vệ sinh cá nhân.

Phòng ăn
Diện tích cho khu vực ăn uống ban đầu rất hạn chế nên sau khi lùi bức tường của phòng ngủ thứ hai vào, chỉ có thể đáp ứng được cách bài trí theo kiểu dưới đây. Giải pháp này vừa để tiết kiệm diện tích vừa giúp các lối đi chính trong nhà sẽ không bị ảnh hưởng. Một phần của bức tường được sơn bằng sơn latex phù hợp màu sắc, không chỉ mang lại cảm giác ấm áp mà còn thể hiện âm hưởng retro ở một mức độ nhất định từ bộ bàn ghế ăn lạ mắt.

Dưới đây là phòng ăn nhìn từ góc độ phòng khách, sự chuyển động trong không gian này hoàn toàn không bị ảnh hưởng. Bên cạnh đó, đồ nội thất được tạo hình với những đường nét tinh xảo nên nó cũng làm nổi bật sự nhẹ nhàng của không gian. Đồng thời, sàn nhà được lát theo hình xương cá cũng cho thấy tác dụng mở rộng vừa đủ ở góc độ này.

Phòng khách
Thiết kế trang trí phòng khách thô cứng có thể nói là rất đơn giản hơn. Tường được quét vôi trắng chủ đạo, phía trên trần nhà tử bỏ những hình dạng cầu kỳ mà đi trực tiếp vào tường thạch cao. Đổi lại, ban công được kết hợp với phòng khách và màu sắc xanh lam của nội thất đã tạo lập được phong cách riêng theo những gì chủ sở hữu yêu cầu, tôn lên vẻ đẹp của sự sạch sẽ.

Bức tường sau ghế sofa cũng sử dụng những đường phào chỉ thạch cao, vừa đóng vai trò làm phong phú thêm hệ thống phân cấp không gian vừa thể hiện một không gian năng động. Không quá lời khi nói rằng do sự hiện hữu của bộ sofa vuông và nhiều kiểu dáng gối sang trọng khác nhau cũng tạo nên cho căn nhà nét tinh tế kiểu Pháp, trông rất phong cách.

Để làm nổi bật bức tường nền TV, cửa mở của phòng ngủ chính đã được dịch chuyển, nhưng xét thấy tỷ lệ sử dụng TV quá thấp nên gia chủ chỉ bố trí một tủ TV đóng vai trò lưu trữ. Đồng thời, do sự tồn tại của các đồ trang trí nhỏ khác nhau, hiệu ứng của bức tường nền được thực hiện một cách tự nhiên.

Đây là góc nhìn từ ban công vào phối cảnh của phòng ăn, tủ lưu trữ âm tường bên cạnh ghế sofa đã bù đắp cho việc thiếu hụt khả năng lưu trữ của tủ giày. Thiết kế không đèn chính phía trên trần nhà càng làm nổi bật sự sạch sẽ, gọn gàng cho không gian.

Phòng ngủ chính

Phòng ngủ chính cũng được sơn màu trắng chủ yếu, nhưng để làm phong phú thêm đẳng cấp của không gian, thiết kế hình bán cung parabol của bức tường nền đầu giường mang đến nét sang trọng cho toàn bộ không gian.

Về cấu hình nội thất, sự sang trọng nhẹ vẫn là chủ đạo, mang vẻ đẹp vừa cổ điển vừa hiện đại.
Phòng ngủ thứ hai
Mặc dù phòng ngủ thứ hai được định vị là phòng trẻ em nhưng bố cục không gian của nó hoàn toàn được xây dựng với chức năng cha mẹ - con cái. Xét cho cùng, khi đứa trẻ còn nhỏ, thay vì sắp xếp phòng trẻ em từ trước, tốt hơn là hãy thả tự nhiên và để trẻ có một môi trường sống thú vị.

Như vậy qua ngôi nhà này, mọi người có thể thấy rằng ý tưởng thiết kế của chủ nhà là thiết lập tông màu thông qua trang trí đơn giản cứng, và sau đó thông qua trang trí mềm mại của các yếu tố khác nhau để làm nổi bật phong cách của không gian. Nếu bạn thích hiệu ứng này, bạn cũng có thể tham khảo để áp dụng cho gia đình mình, rất hiệu quả.
Theo V.K - Vietnamnet
