
Ngôi nhà được xây dựng bởi kiến trúc sư Nicole Blair, tại Austin, Mỹ, nó vừa mang lại cảm giác phá cách vừa giúp chủ nhân tiết kiệm chi phí xây dựng.

Căn nhà có hình dáng khá "liêu xiêu", tạo cảm giác một cơn gió nhẹ cũng có thể thổi bay được nó.

Căn nhà được lấy cảm hứng từ tổ ong. Các bức tường nghiêng và hướng rộng ra ngoài theo chiều lên trên.

Bằng cách này, diện tích sử dụng mở rộng hơn khi lên cao, cung cấp thêm không gian cho tầng hai mà không tốn kém thêm quá nhiều chi phí xây dựng.

Những bức tường nghiêng đáng kinh ngạc và các cửa sổ lớn được đóng khung trắng làm tăng thêm nét cổ tích cho thiết kế.

Lối vào ngôi nhà mang lại cảm giác như bước vào một tổ ong khổng lồ thực sự.

Màu trắng bao quát từ các cánh cửa đến màu sơn bên trong mang lại cảm giác rộng rãi hơn cho không gian sống.

Khu vực phòng khách.

Liền kề với khu vực phòng khách là khu vực bếp ăn, với thiết kế đơn giản và tối ưu hóa mọi không gian bên trong.

Chủ nhân ngôi nhà coi khu bếp là nơi thể hiện tình yêu của gia đình….

…. nên đây là không gian gần như rộng nhất trong ngôi nhà.

Do không gian xây dựng nhỏ nên khu vực cầu thang cũng có diện tích khá hẹp.

Mọi ngóc ngách trong ngôi nhà đều được tận dụng triệt để, ngay cả khu vực lan can hay phía dưới của khu vực cầu thang.

Với thiết kế tổ ong với nhiều đường chéo, khu vực cầu thang lên tầng 2 có thể tận dụng để kê được một chiếc bàn làm việc nhỏ nhưng ngăn nắp.

Phòng ngủ khá hẹp nhưng ngăn nắp, phù hợp với điều kiện mới lập gia đình của cặp vợ chồng trẻ.

Thiết kế phòng ngủ nhẹ nhàng với nhiều lớp kính tối ưu ánh sáng tự nhiên

Phòng tắm đơn giản với thiết kế khá nhỏ.

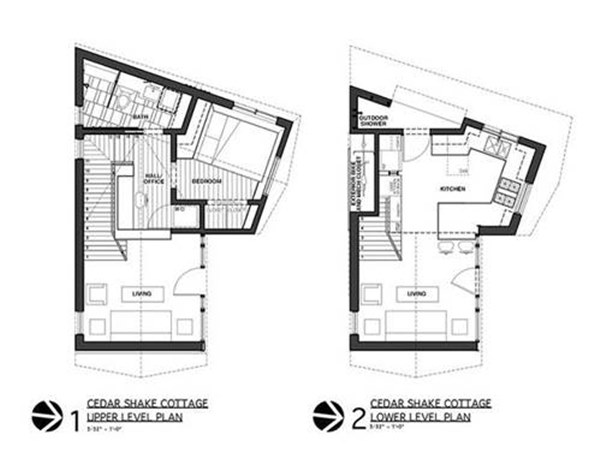
Sơ đồ thiết kế của ngôi nhà.
Theo Dân Việt
