
Ngôi nhà này nằm trong một khu dân cư tự phát có diện tích 5x17m. Do đó, kiến trúc xây dựng xung quanh ngôi nhà rất lộn xộn và tương đối thiếu cây xanh.




Gia chủ là một cặp vợ chồng trẻ và họ mong muốn ngôi nhà ngoài đáp ứng công năng để ở, còn có những khoảng vườn nhỏ xinh xắn, nằm len lỏi giữa các tầng nhà.


Ở các khu vườn, mỗi sáng những đứa trẻ của gia đình có thể cảm nhận niềm vui khi thấy những bông hoa mới nở, mùi thơm của trái cây chín trên cành hay niềm vui về vườn rau của mẹ đã thêm một màu lá mới.

Để có diện tích cho sân vườn và lấy chỗ đỗ xe trong sân, ngôi nhà lùi khá sâu vào bên trong.

Cũng nhờ việc lùi mặt tiền vào bên trong, ngôi nhà hạn chế được việc bị ảnh hưởng bởi bụi bặm và tiếng ồn xung quanh.

Ngôi nhà được thiết kế theo phong cách tối giản với trần bê tông, nội thất bố trí ngẫu hứng.


Tầng một là không gian phòng khách, bếp, bàn ăn, phòng của người lớn tuổi và một khu vườn nhỏ xinh.


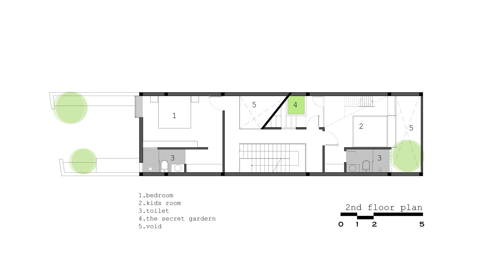
Tầng 2 có 2 phòng ngủ dành cho bố mẹ và con, từ các phòng ngủ có thể phóng tầm mắt ra các góc vườn xanh mát.


Do ngôi nhà có diện tích khiêm tốn nên cầu thang hẹp được bố trí ở giữa nhà.


Để ánh sáng có thể đến mọi ngóc ngách trong nhà, kiến trúc sư cho bố trí nhiều cửa sổ dọc lối đi.



Được biết, thiết kế những khu vườn đan xen không gian sống là món quà của người cha dành cho con gái. Bởi gia chủ mong muốn những đứa trẻ sẽ lớn lên cùng khu vườn, cùng với những cây ăn quả trong vườn như cỏ lớn lên cùng anh chị em của mình.
Theo Tiền Phong
