Được biết đây là căn hộ mới xây, vợ chồng gia chủ mua sau khi tính đến nhu cầu cuộc sống sau này nên nhà thiết kế đã không thay đổi quá nhiều trong việc điều chỉnh bố cục. Họ chọn điều chỉnh hướng của bức tường chính trong phòng khách bằng cách kết hợp mở rộng với bức tường trực quan chính của phòng ăn để khuếch đại trải nghiệm không gian.

Ngoài việc điều chỉnh phía trước và phía sau của bức tường chính của phòng khách, bức tường ngăn ban đầu để xác định phòng khách và phòng ăn đã được loại bỏ. Điều này làm cho toàn bộ khu vực đại sảnh được mở và thông suốt, đủ ánh sáng và thông gió, để bàn ăn không chỉ là chức năng ăn uống mà còn được mở rộng thành nhiều chức năng như làm việc, đọc sách, chuyện trò… tăng thời gian tương tác tốt giữa cha mẹ và con cái.

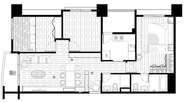
Thông tin cơ bản: Căn hộ gồm 3 phòng ngủ, 2 phòng khách, 2 phòng tắm cho 2 người lớn 1 trẻ nhỏ

1. Thiết kế lối vào:
Hệ tủ ở không gian hiên nhà được quy hoạch bằng chất liệu gỗ sáng màu với thiết kế đèn ẩn, là nơi cất giữ giày dép và robot quét rác, giúp sinh hoạt trở nên thuận tiện hơn.

Phần trần phía trên được thiết kế bằng gỗ đen, phun sơn, và thiết kế hình dải băng với đèn ẩn, cũng có nghĩa là dẫn hướng chuyển động từ ngoài vào trong. Sàn nhà được thiết kế và quy hoạch bằng sàn gỗ siêu chịu mài mòn, nhấn mạnh hy vọng của gia chủ về một cuộc sống ấm áp, đơn giản, không căng thẳng và thoải mái.
2. Thiết kế phòng khách:
Phòng khách và phòng ăn được quy hoạch theo hướng mở. Tường chính của phòng khách được điều chỉnh lùi theo hướng trước và sau, kết hợp thiết kế tường chính của phòng ăn để mở rộng quy mô một cách hiệu quả và nhân đôi trải nghiệm không gian.

Ngoài ra điều chỉnh từ bức tường chính của khu vực phòng khách còn có tác dụng kết nối tương tác giữa các hành viên trong gia đình. Sàn gỗ siêu chịu mài mòn tạo nên tông màu cho không gian theo phong cách Bắc Âu. Với hình ảnh tự nhiên và độc đáo, căn hộ là một tổ ấm lý tưởng cuộc sống tốt đẹp hơn mà vợ chồng gia chủ mong đợi.ơ
3. Thiết kế phòng ăn:
Không gian phòng ăn cũng được thiết kế mở với bàn ăn bằng gỗ nguyên khối và kết cấu chân sắt. Phần tường chính lắp đặt hệ thống tủ linh hoạt theo yêu cầu với các chức năng như trưng bày, lưu trữ, tủ sách,... Ngoài việc thưởng thức bữa ăn, đây cũng là nơi thích hợp để chủ nhà và đứa trẻ cùng nhau đọc sách.

Để tăng chức năng lưu trữ và trưng bày, thiết kế tủ được chia thành nhiều ngăn đa dạng và kim loại sắt đen được sử dụng làm phương án cấu trúc đường nét thể hiện sự gọn gàng. Việc bố trí thiết kế ẩn tủ cao làm bằng gỗ bên hông chủ yếu ngăn hộp công tắc và tăng chức năng lưu trữ, đáp ứng được yêu cầu của gia chủ..

Thiết kế ánh sáng được sử dụng để khéo léo định hình mức độ ánh sáng và bóng tối nhằm làm giảm bớt cảm giác ngột ngạt mà khối lượng ban đầu có thể mang lại cho không gian. Đồng thời, thông qua việc bố trí tường sáng màu, các đồ đạc nội thất được sử dụng làm tâm điểm để mở rộng không gian trải nghiệm, mang đến cuộc sống rất thư thái, thoải mái và không căng thẳng.

4. Thiết kế phòng ngủ chính:
Phía đầu giường bố trí tủ thấp thuận tiện cho gia chủ đọc sách và đặt vật dụng trước khi đi ngủ. Vách chính của phòng ngủ được thiết kế bằng gỗ ván, phun sơn và sàn gỗ tạo nên một không gian nghỉ ngơi ấm áp và thoải mái.

Khu vực thay đồ ở lối vào của phòng ngủ chính, là sự tiếp nối từ sự sáng tạo tùy chỉnh của bức tường chính khu vực sảnh. Nó sử dụng chất liệu sắt và gỗ làm thiết kế tủ âm tường mở để lưu trữ mỹ phẩm, sản phẩm chăm sóc da và nước hoa của người vợ. Đồng thời, sự sáng tạo trong cách trưng bày mở giúp cho mọi hoạt động của gia chủ đều thuận tiện và nhanh chóng.

5. Thiết kế phòng tắm khách:
Phòng tắm được lát gạch sáng màu, thiết kế ngăn cách khô và ướt, kết hợp với quy hoạch một phần, trang trí thêm lọ hoa đẹp mắt không chỉ giúp nâng cao chiều cao của không gian một cách hiệu quả mà còn mang đến cho không gian sự tươi sáng.

6. Thiết kế phòng trẻ em:
Trong thiết kế không gian phòng trẻ em, cửa chớp được sử dụng để điều chỉnh nguồn sáng hiệu quả, kết hợp với việc bố trí đồ đạc có thể di chuyển được và sàn gỗ siêu chịu mài mòn, thuận tiện cho việc các bé lớn hơn có thể kê thêm các các đồ nội thất chức năng khác.

7. Thiết kế đường di chuyển:
Khu vực phòng khách và nhà ăn được quy hoạch mở, cho phép lưu thông và di chuyển dễ dàng. Bức tường chính thiết kế mở rộng chức năng cho cảm giác không gian như được nhân đôi với tầm nhìn xuyên thấu. Nhờ đó, mối quan hệ tương tác giữa các thành viên trong gia đình hằng ngày được gia tăng, gần gũi hơn.
8. Thiết kế chiếu sáng:
Sử dụng nguồn ánh sáng tự nhiên dồi dào, đèn âm trần nhân tạo liên tục, đèn chiếu và nguồn sáng gián tiếp. Toàn không gian bố trí đèn chính cụ thể, phân bổ ánh sáng cân đối, dễ chịu, phù hợp với thói quen đọc mọi lúc mọi nơi của gia chủ.

9. Kế hoạch lưu trữ:
Bên cạnh thiết kế tủ trưng bày tùy biến thông qua kết cấu sắt, tủ gỗ mở còn trở thành nơi bố trí thiết bị điện cho tủ chuẩn bị bữa ăn. Bên dưới bức tường chính của TV là thiết kế tủ lưu trữ thiết bị dạng treo, tập trung vào hình ảnh trực quan nhẹ nhàng hơn. Các cánh tủ lớn cũng được quy hoạch ẩn, nhấn mạnh sự gọn gàng và mới mẻ, mang lại bầu không khí tự nhiên, thoải mái và nhàn nhã.
10. Lựa chọn vật liệu xây dựng: Sợi nhân tạo, các chi tiết bằng sắt, phun sơn, sàn gỗ siêu chịu mài mòn, gạch lát, rèm cuốn.

11. Phương án màu sắc:
Lấy phong cách Bắc Âu làm định hướng tông màu thiết kế chủ đạo, đồng thời sử dụng tông màu lạnh được gia chủ ưa chuộng trên bức tường chính của phòng khách làm trọng tâm thị giác ... Trong quy hoạch nội thất, sử dụng nhiều chất liệu gỗ hoặc màu sáng để mang đến cảm giác về một bầu không khí thoải mái và ấm áp.
Theo V.K - Vietnamnet
