
Căn nhà nằm trong ngõ thuộc một khu tập thể cũ có nhiều thế hệ sinh sống.

Gia chủ là người yêu thích sự hoài cổ nên mong muốn không gian sống mang sự tĩnh lặng.

Vì thế màu sắc chủ đạo của ngôi nhà là màu nâu, cam đất và màu đỏ của ngói đất sét nung, cùng với tông màu ấm của gỗ.

Không gian phòng ngủ được bố trí tối giản.


Ngôi nhà được chăm chút từ những chi tiết nhỏ như sàn gạch, vải làm rèm, mành để thể hiện sự mộc mạc, sâu lắng.


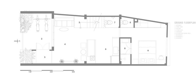
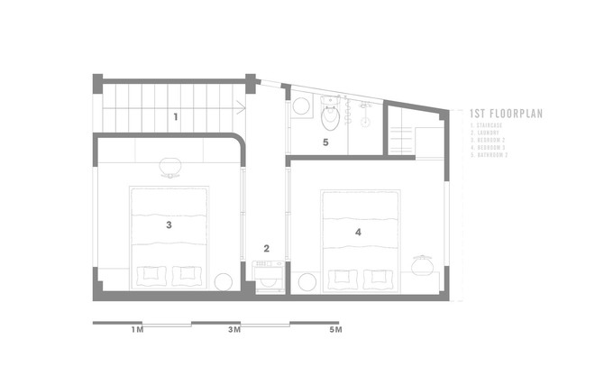
Mặt cắt của ngôi nhà.


Toàn bộ nguồn sáng trong nhà đến từ phần giếng trời giữa sân. Ở đây gia chủ có thể ngồi tắm nắng buổi sáng hay uống trà lúc hoàng hôn.


Gia chủ bố trí thêm cây xanh và chậu sen ở các khu vực trống để con người gần gũi với thiên nhiên nhiều hơn.
Theo Tiền Phong
