
LA House tọa lạc trên mảnh đất rộng 4m x 18m tại thị trấn Đức Hòa, tỉnh Long An. Công trình được bao quanh bởi công viên xanh mát và hồ nước trong veo.

Với lợi thế sở hữu hai mặt tiền của ngôi nhà, kiến trúc sư Dat Tran Architect đã mang đến một không gian sống yên bình và giao hòa với thiên nhiên.

Mặt tiền của ngôi nhà mang đậm nét truyền thống Nam Bộ với mái ngói đỏ.

Kiến trúc sư thiết kế ngôi nhà hai mặt tiền này có phòng khách và khu bếp được thiết kế hiện đại.

Không gian rộng mở và liền mạch tạo nên sự kết nối tinh tế giữa các khu vực sinh hoạt.


Điểm nhấn độc đáo là giếng trời đặt tại trung tâm ngôi nhà.

Bên trong ngôi nhà đón nhận trọn vẹn những tia nắng ban mai và luồng gió mát lành, đem lại sự thoáng đãng cho không gian nội thất.

Điểm nhấn nghệ thuật chính là những phù điêu đắp nổi bằng xi măng, tạo nên nét chấm phá độc đáo cho ngôi nhà hai mặt tiền.

Kiến trúc sư cho biết LA House là sự hòa quyện hoàn hảo giữa tinh hoa kiến trúc truyền thống và sự tiện nghi hiện đại.

Sự giao thoa hài hòa giữa phong cách hiện đại và cổ điển được thể hiện qua từng chi tiết tinh xảo như bức phù điêu bằng xi măng.

Từng đường nét đều được kiến trúc sư tận dụng tối đa yếu tố tự nhiên và không gian.

Qua đó, mang lại một trải nghiệm sống hoàn hảo, nơi con người được đắm chìm trong sự trong lành và thư thái giữa lòng thiên nhiên.


Những luồng sáng tự nhiên giúp không gian luôn thoáng đãng và tươi mới.

Cầu thang được thiết kế khéo léo, ép sát vào tường, không chỉ giúp tiết kiệm diện tích mà còn tạo sự thông thoáng, tiện lợi trong di chuyển.

Sự bố trí thông minh này vừa tối ưu không gian vừa nâng cao tính thẩm mỹ cho tổng thể kiến trúc.

Các phòng ngủ được bố trí một cách tinh tế.


Tầm nhìn phòng ngủ hướng ra công viên phủ xanh như một bức tranh thiên nhiên sống động trước mắt.

Không gian thư giãn lý tưởng gắn kết con người với cảnh sắc xung quanh.

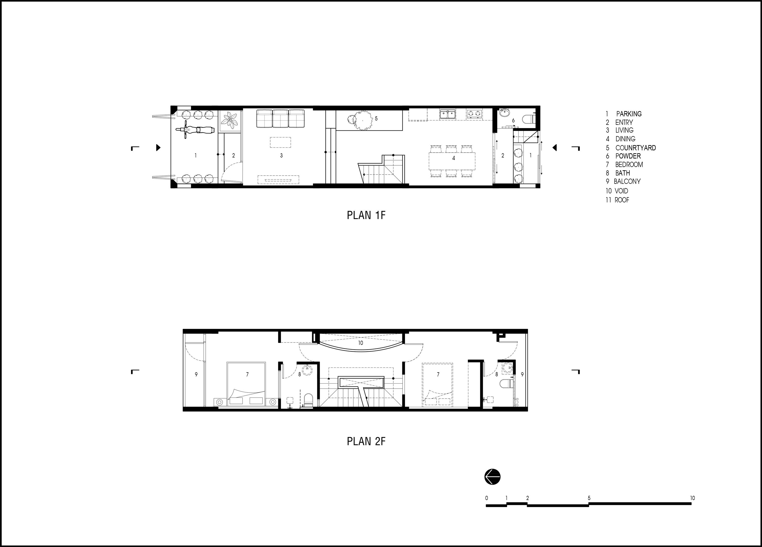
Mặt bằng tầng một và tầng hai.

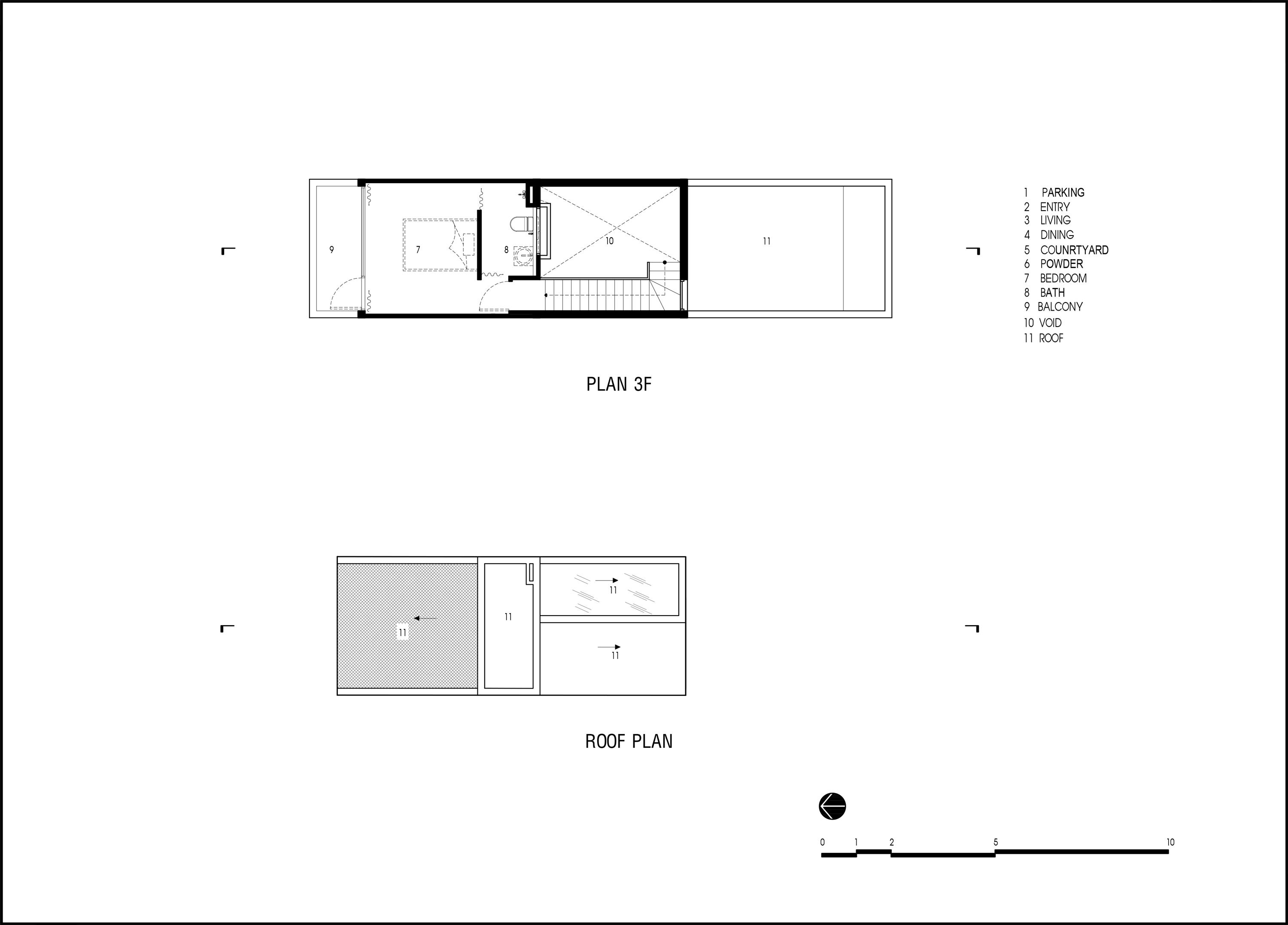
Mặt bằng tầng ba và tầng mái.
Theo Pháp luật TP Hồ Chí Minh
