Đối với những căn hộ diện tích rộng thì yêu cầu đó có thể không khó, nhưng nếu gia đình có quỹ đất hạn hẹp thì đây lại là một thử thách không hề dễ dàng cho các kiến trúc sư khi được gia chủ gửi gắm. Căn hộ 45m² dưới đây là một ví dụ, dù nhỏ xinh nhưng với thiết kế sáng tạo và thông minh của các chuyên gia, nó đã trở thành một không gian sống lý tưởng khiến nhiều người xuýt xoa yêu thích.

Phòng khách chỉ có diện tích vỏn vẹn 12m² và tầng thấp nhưng được sử dụng làm ranh giới mở giữa phòng làm việc và khu vực đọc sách khiến không gian trở nên rộng rãi hơn. Vì thế, trẻ em vẫn có thể thoải mái chạy nhảy tung tăng hoặc ngồi đọc truyện khiến ngôi nhà càng trở nên đầm ấm và vui tươi.


Mỗi không gian đều có thể thiết lập và sắp xếp theo mong muốn của chủ sở hữu, giống như trường hợp này chủ yếu là trẻ em, thông qua không gian mạch lạc hình vòng cung, sự kết hợp của vật liệu và màu sắc, nó phục vụ cho phong cách Bắc Âu mà chủ nhân yêu thích.
|
Thông tin cơ bản về căn hộ và yêu cầu của chủ sở hữu: - Nằm trong tòa nhà có thang máy, diện tích 45m² - Yêu cầu bố trí 3 phòng ngủ, 2 phòng khách và 3 phòng tắm với số người ở là 2 người lớn 2 trẻ nhỏ. - Mong muốn không gian sống sáng sủa và kết cấu Bắc Âu - Cho phép trẻ em có một không gian vui chơi an toàn - Phải có phòng thay đồ trong phòng ngủ chính |

Dưới đây là chi tiết về các không gian riêng biệt trong căn hộ:
1. Thiết kế lối vào
Bức tường ở lối vào có được một đường cong, uốn lượn vào tận phòng và phía ngoài hành lang có một cái dầm. Để đáp ứng mong muốn của gia chủ về một phòng chứa đồ, kiến trúc sư đã quyết định thiết kế phòng chứa đồ đó bên cạnh để che dầm nhà.

Để bức tường không quá đơn điệu, nó được thiết kế chạy xuyên phòng theo hình vòng cung, đồng thời tạo thành một đường kẻ khá ấn tượng. Ngoài việc giấu kho sau bức tường hành lang, không gian lưu trữ ở cửa ra vào còn được quy hoạch phù hợp để tích hợp tủ giày lớn sát tường.
2. Thiết kế phòng khách
Vì giới hạn về diện tích nên phòng khách được quy hoạch khoảng 12m² và đây là không gian công cộng quan trọng nhất của gia đình.

Phía sau phòng khách là khu vực đọc sách cho trẻ em, có tủ sách âm tường để bạn có thể để một lượng sách đáng kể, được thiết kế đặc biệt dành cho những bé có rất nhiều sách thiếu nhi. Một chiếc giường nhỏ cũng được bố trí cẩn thận ở giữa để các bé có thể đọc sách cùng bố mẹ tại đây. Ngoài ra còn có thể sử dụng các ngăn kéo dưới tủ sách dùng để đựng đồ chơi hoặc đồ lặt vặt.

Khu vực đọc sách được nâng lên 10 cm so với sàn nhà để làm phân chia khu vực và đã có sự lưu ý đến an toàn của trẻ khi chạy nhảy, vui chơi. Đường nét sàn nhà uốn cong kéo dài đến phần sàn nâng cạnh cửa sổ phòng khách giúp không gian thêm mềm mại và sinh động. Bằng cách này ranh giới giữa phòng khách và khu vực đọc sách xuất hiện nhưng lại bị xóa nhòa một cách mơ hồ. Đây là phép ẩn dụ cho sự kết nối và chia sẻ không gian.

Trong phòng khách chỉ đặt những chiếc ghế sofa và bàn cà phê đơn giản, tiện nghi. Ngoài ra không có thêm bất cứ thứ gì cản trở tầm nhìn hay chuyển động, giúp cho không gian chạy nhảy của trẻ an toàn và thư thái hơn.

Vì hai vợ chồng gia chủ ít xem tivi, chủ yếu cho con xem phim hoạt hình nên một máy chiếu tầm ngắn đã được lắp đặt thay thế tivi để các con có màn hình lớn để xem phim. Dưới tủ tivi là nơi đặt thiết bị chiếu cự ly gần được thiết kế ngắn gọn cho phép không gian trở nên thoải mái hơn.
3. Thiết kế nhà bếp
Chủ nhà thích nấu nướng nên mong muốn có một khu vực bếp rộng rãi. Ngoài các dụng cụ nhà bếp do người xây dựng cung cấp, còn có một quầy lớn hình chữ L dài 350cm. Mặt bàn được làm bằng chất liệu selelite màu xám mờ với nguồn ánh sáng mang lại không gian thư thái. Bên dưới quầy có đủ không gian để cất các thiết bị điện, vật dụng nấu nướng. Một giá để đồ bằng sắt được thiết kế có thể dùng để đặt dụng cụ nấu nướng hoặc trồng một số cây xanh.

Bàn ăn được lựa chọn đặc biệt là mặt bàn gỗ nguyên khối tự nhiên có sức chứa từ 6 đến 8 người dùng bữa thoải mái, ngoài ra còn có thể dùng nó làm mặt bàn rộng rãi để làm việc tại nhà.

Điều thú vị là những chiếc đèn phía trên bàn ăn, phần giữa chụp đèn được làm bằng gỗ, thiết kế thanh ray chuyển động trái phải rất tiện lợi. Chiếc đèn trở thành nét chấm phá và dễ thương trong không gian nhà.

Ngay sát khu vực bàn ăn, cạnh bức tường của phòng khách là một bức tường tích hợp bảng ghi nhớ. Ngoài việc giữ nguyên những đường nét uốn lượn, đây còn nơi bạn có thể để lại những lời nhắn hay ghi lại những việc cần làm hoặc là khu vực dành riêng cho những bức vẽ graffiti của trẻ em để chúng thỏa sức sáng tạo.
4. Thiết kế phòng ngủ Master
Sử dụng gam màu trắng để không gian có thêm cảm giác rộng rãi. Đầu giường mở rộng ra một bệ nhỏ làm bàn đầu giường. Giá treo bằng gỗ gọn gàng dựng áp tường để tùy ý chủ nhà sử dụng treo quần áo hoặc phụ kiện, vừa có tính thiết thực cao và đẹp mắt. Trần nhà vẫn được hoàn thiện với các đường cong, do đó tất cả các không gian trong nội thất đều có cùng một thiết kế thống nhất.

Nữ gia chủ rất hy vọng trong phòng ngủ chính sẽ có phòng thay đồ và ban đầu chị có ý định đặt nó ở vị trí góc. Tuy nhiên khi lên phương án tổng thể thì kiến trúc sư nhận thấy vị trí đặt phòng thay đồ thích hợp nhất là ở cạnh cửa sổ, nơi không chỉ có ánh sáng mặt trời vào ban ngày mà còn tăng độ sáng của phòng ngủ và làm cho phòng ngủ lưu thông thuận lợi hơn.

5. Thiết kế phòng trẻ em
Những đứa trẻ của chủ nhà đang ở độ tuổi mới lớn nên để làm cho ký ức tuổi thơ của trẻ thêm đẹp và lãng mạn, kiến trúc sư đưa ra ý tưởng thiết kế của lâu đài, cụ thể là sử dụng hàng rào cổ tích để phân chia giường ngủ và khu vui chơi.

Để có ranh giới khu vực rõ ràng hơn, sàn nhà ở khu vực giường được nâng lên một chút, trẻ em di chuyển giống như đi xuống cầu thang. Từ giường xuống cầu thang đến khu vui chơi sẽ có cảm giác giống như đi bộ xuống từ lâu đài và mở ra cả một bầu không khí vui tươi cho trẻ.

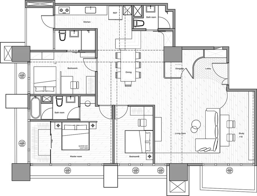
Quy hoạch tổng thể
6. Lập kế hoạch lưu trữ
Không gian lưu trữ được chú trọng ngay từ đầu sao cho hợp lý vì diện tích căn nhà rất hạn chế. Phòng khách được thiết kế giá để đồ rất khoa học và đẹp mắt để gia chủ có thể đặt các đồ vật lớn và đồ lặt vặt một cách gọn gàng. Trong phòng ngủ chỉ đặt tủ quần áo, ngoài ra không cố tình đặt thêm gì khác vào.

7. Lập kế hoạch di chuyển
Vì là một ngôi nhà mới xây nên không có mô hình chuyển động chính, vì vậy nhịp điệu di chuyển dựa trên mô hình sơ đồ mặt bằng ban đầu, và sau đó chuyển động được tính chỉnh từ đồ đạc hoặc cấu hình đặt trong mỗi khoảng trống.

8. Lựa chọn vật liệu xây dựng
Các vật liệu chính được sử dụng là đá, sơn tường, đồ gỗ, sàn gỗ, đồ sắt.
9. Quy hoạch chiếu sáng
Vì có trẻ em nên không gian sinh hoạt chung được bố trí ánh sáng đầy đủ, nhưng đèn chùm phòng ăn có xu hướng dịu nhẹ, điều này làm cho không khí ăn uống lãng mạn hơn.

10. Lên kế hoạch về màu sắc
Phòng khách và phòng ngủ chính được sử dụng màu trắng tinh khôi với màu gỗ mang lại không khí ấm cúng. Bức tường màu trà sữa cạnh bàn ăn mang lại cảm giác ấm áp và thư thái, màu sắc nhẹ nhàng như xoa dịu trái tim các thành viên trong gia đình. Khi ở trong phòng trẻ em thì màu sắc được đổi thành màu hồng tươi sáng, sinh động mang lại cảm giác trẻ thơ vui tươi.
Theo V.K - Vietnamnet
