Trong nguyên bản thì đây là một căn nhà cổ 5 tầng với cấu trúc cũ, dài, hẹp. Sau khi kết hôn, tầng 2 và tầng 3 được dành cho tân lang tân nương, còn lại là nơi ở của người thân. Và nam chủ nhân muốn cải tạo lại không gian sống của 2 vợ chồng để vừa đảm bảo sự riêng tư, vừa yêu chiều cảm xúc của người vợ.

Sau khi làm việc với đơn vị thiết kế, những bất cập của căn nhà cũ đã được loại bỏ, thay vào đó là một không gian sống hiện đại, tiện nghi và không kém phần thanh lịch. Dưới đây là chi tiết các không gian sống sau cải tạo của cặp đôi trẻ, mời độc giả cùng theo dõi.

Hình ảnh căn hộ trong nguyên bản


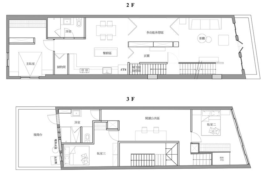
Thông tin trường hợp cơ bản: Cải tạo căn nhà 40 năm tuổi, diện tích 48m2, gồm 2 tầng, bố trí 4 phòng ngủ, 3 phòng khách và 2 phòng tắm.

1. Thiết kế lối vào tầng 2:
Nam chủ nhà thích phong cách công nghiệp và văn hóa Nhật Bản. Lối vào có tủ âm tường bằng gỗ để tạo thành khu vực lưu trữ tủ giày. Ở đây bức tường ngăn của phòng đa năng được mở ra một khu để giày thấp và sàn nhà được ốp bằng gạch lục giác, thể hiện khái niệm phong cách Nhật Bản theo cách hiện đại.

Tấm cửa được làm theo yêu cầu của gia công gỗ và đồ sắt, pha trộn kết cấu của gỗ thông, và cố ý để lại các rãnh và đường nối để ghép nối, được kết hợp với phương pháp gia công bằng sắt, và cánh cửa giờ đây trở nên mạnh mẽ và thanh lịch.

Cửa chính được làm theo yêu cầu với kết cấu pha trộn giữa sắt và gỗ thông. Người thợ mộc cố ý để lại các đường rãnh để ghép nối, kết hợp với phương pháp gia công bằng sắt, nên bộ cửa hiện lên mạnh mẽ và thanh lịch.
2. Thiết kế phòng khách tầng 2:
Góc nhìn chính của vách tivi cũng được tận dụng làm lối chuyển tiếp giữa cầu thang. Bức tường xi măng cũ được loại bỏ, thay vào đó lắp dựng một bức tường xuyên thấu bằng lưới tản nhiệt kiểu Nhật Bản để xuyên sáng tốt hơn và lưu thông không khí giữa 2 tầng. Khoảng cách rộng giữa trần và cầu thang được lắp “lưới chắn” bằng gỗ dạng lưới với vai trò che chắn an toàn tuyệt vời để tránh nguy hiểm khi trẻ em leo cầu thang trong tương lai.

Nhà thiết kế đã bàn bạc với đội thi công chuyên nghiệp về biện pháp thi công cầu thang, gia cố kết cấu sàn, xây lại kiểu bậc thang xi măng mới. Tường ngoài ban đầu có cửa sổ bên ngoài nhưng do xây quá gần nên cửa sổ bên ngoài bị niêm phong, khung hình chỉ là một cảnh kết thúc.

Ở phía ban công, cửa đôi do thợ sắt làm theo yêu cầu riêng được che bằng rèm mờ màu gỗ để mang ánh sáng vào phòng. Trần nhà không ốp, ống và dầm trần, quạt trần dẫn luồng gió tạo nên nét đẹp riêng cho không gian.

Khi trao đổi về phong cách và lựa chọn vật liệu, nội thất ban đầu mà gia chủ dự kiến đặt đã được cân nhắc đầu tiên, để thiết kế tổng thể gần gũi với tính cách của hai vợ chồng, thể hiện ở mọi góc cạnh.
3. Thiết kế phòng đa năng tầng 2:
Do căn phòng đa chức năng được bố trí giữa bếp và phòng khách, đặc biệt là thông qua hai thanh ray phía trên nên cửa kính phân cách giữa các phòng được thiết kế dạng “cửa xếp” gọn gàng lại tiện lợi.

Khi hai cánh cửa xếp được đóng lại, các khu vực chức năng trông giống như một chiếc hộp độc lập. Sau khi được mở ra, khu vực công cộng trải dài và rộng mở, tạo nên một kết nối tuyệt vời, làm tăng đáng kể tính linh hoạt khi sử dụng.


4. Thiết kế bếp trên tầng 2:
Nếu bạn có thể thưởng thức bữa ăn vui vẻ mỗi ngày, đó là khoảnh khắc phản ánh cuộc sống tốt đẹp và vợ chồng gia chủ rất chú trọng điều này với các nhà thiết kế.

Cuối cùng, toàn bộ một dãy tủ dưới được quy hoạch đặc biệt, thuận tiện cho việc cất giữ đồ dùng nấu nướng. Bàn đảo là trung tâm của mặt bàn lớn, bề mặt bao phủ bằng đá nhân tạo vân nước.


Xung quanh là khu bếp nấu hình chữ L. Do có đường ống nên vị trí khu bếp không thay đổi, trần nhà ốp gỗ màu ghi, hút khói khi nấu ăn, gạch men thủ công trên các bức tường thẳng hàng với nhau, làm cho không khí ấm áp lưu chuyển từ từ.

Phòng ăn dẫn đến một bên của phòng ngủ chính, và cửa xếp lưới được sử dụng làm cửa của phòng chứa đồ, khi dẫn ra hiên nhà, một cửa xếp giống như cửa của phòng đa chức năng. được tạo ra, làm suy yếu mô hình dài và hẹp, để mỗi trường có thể được giữ nguyên. Tính độc lập và chiều cao được liên kết với nhau.

Phòng ăn dẫn đến một bên của phòng ngủ chính, và cửa xếp lưới được sử dụng làm cửa của phòng chứa đồ. Khi dẫn ra hiên nhà, một cửa xếp giống như cửa thông phòng đa chức năng được tạo ra làm suy yếu mô hình dài và hẹp cũ, để mỗi lĩnh vực giữ được sự độc lập nhưng vẫn mang tính liên kết cao.
5. Thiết kế 2 phòng ngủ chính:
Phòng ngủ chính là khu vực riêng tư duy nhất trên tầng 2 và được bố trí có chủ đích ở đây. Ngoài việc bố trí trục công năng chính trên cùng một tầng còn để phòng ngủ có cửa sổ bên ngoài và bức tường phía sau giường được sơn bằng sơn màu xanh lam.


Một bên là những miếng sắt treo quần áo, tạo thành phòng thay đồ theo phong cách công nghiệp siêu nhỏ.

6. Thiết kế 2 phòng tắm chính:
Trần của phòng tắm master ban đầu khá thấp, bên trong có kho chứa đồ ẩn. Sau cải tạo, trần và các thiết bị cũ được loại bỏ, gạch vân gỗ được sử dụng để ốp mặt tiền và sàn, đối diện ốp gạch xám bao quanh tạo nên ranh giới rõ ràng giữa khu vực khô và ướt. Ngoài ra, thông qua tông màu gỗ còn mang lại cảm giác ấm áp cho phòng tắm.


7. Thiết kế khu đọc sách tầng 3:
Trước khi bước vào phòng ngủ 2 người, từ cầu thang bên trong đi lên lầu, trước tiên bạn sẽ bắt gặp khu vực đọc sách chung - nơi bày trí không gian mở một cách đơn giản và gọn gàng. Chiếc bàn dài được kết cấu bằng gỗ và sắt chắc chắn không chỉ trở thành điểm nối của lối đi mà còn tận dụng được hết được hết không gian.

8. Thiết kế phòng tắm và phòng giặt tầng 3:
Là nhà tắm thứ hai của khu vực nội trợ nên nó được thiết kế thành nhiều ngăn, tích hợp nhà tắm với nhà vệ sinh và phòng giặt. Gạch vân gỗ áp dụng các phương pháp cắt dán khác nhau thể hiện sự phân chia khu vực. Phía sau nhà tắm được kết hợp thành khu giặt là, quần áo lộn xộn sau khi giặt được sắp xếp trên kệ tủ thiết kế phân tầng, nhiều lớp để tiết kiệm diện tích.


Theo V.K - Vietnamnet
