Căn hộ đẹp này là tâm huyết của chủ nhân sau nhiều năm bôn ba nơi đất khách quê người. Khi đôi chân đã mỏi mệt, họ muốn tìm về cố hương để được thảnh thơi nghỉ ngơi và đây là nơi giúp họ điều chỉnh lại nhịp thở gấp gáp, sống thong thả nhẹ nhàng, đồng thời lấp đầy những khoảng trống trong tâm hồn

Bắt nguồn từ hình dáng tòa nhà có bề mặt vòng cung, KTS đã đề xuất chọn nét cong tròn là trục thiết kế chính cho căn hộ để tạo hiệu ứng nhất quán, mượt mà trong tổng thể nội - ngoại thất. Chẳng hạn, hành lang lối vào được sửa lại bằng một hình vòng cung cong, và trần khu vực công cộng được bổ sung thêm một đường parabol mềm, trơn tru…. Nhờ đó, cảm giác hỗn loạn, bí bức được loại bỏ và mở ra một không gian yên tĩnh, thư thái quý giá.

|
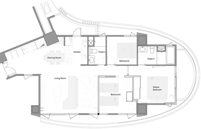
Thông tin cơ bản: Căn hộ nằm trong tòa nhà có thang máy, diện tích 36m2, bố trí 3 phòng ngủ, 2 phòng khách, 2 phòng tắm cho số người ở là 2 lớn 3 nhỏ. Yêu cầu cải tạo: |

1. Thiết kế lối vào:
Những viên gạch đá phiến đen mở ra theo nhịp độ, tạo sức mạnh ổn định cho khu vực lối vào giúp cho tâm trạng gia chủ bình tĩnh hơn mỗi khi bước vào nhà. Một chiếc tủ gỗ óc chó màu trắng với đường cong mềm mại trê trần nhà khiến khung cảnh trải dài trở nên mượt mà và mở ra một chuỗi không gian phong phú.

Nền tảng lưu trữ là tủ tường không chỉ tập hợp chìa khóa và các vật nhỏ khác, mà còn có thể cất giữ gọn gàng mọi dụng cụ thể thao, thiết bị điện tử… của gia chủ.
2. Thiết kế phòng khách/phòng đa năng:
Phòng khách rộng rãi gây ấn tượng với sàn gỗ siêu chịu mài mòn màu sắc nhẹ nhàng và trang nhã với ánh sáng ban ngày trong trẻo được hắt vào qua những ô cửa sổ rộng từ sàn đến trần. Nội thất mạch lạc, trần nhà chạm khắc hình parabol với các nếp gấp lõm ba chiều và các đường trượt sâu tạo nên sự khác biệt độc đáo. Thiết kế tinh thế này đã giải phóng hoàn toàn quy mô không gian, mang đến cảm giác hài hòa dễ chịu bao quanh trải nghiệm thị giác ổn định của gia đình.

KTS thực hiện thiết kế theo mô hình bậc thấp, vách chính của tivi được sơn nhẹ một lớp thạch cao vân mây, sau đó quay ra cửa sổ sát mép với mặt đứng nhô cao, kệ mở màu đen trầm tạo nên sự sắc nét độ căng. Thanh đèn LED bằng nhôm cho ánh sáng mềm mại một lần nữa mở rộng biên độ của tầm nhìn.

Các đường viền tường hình học màu xám sương mù và cà phê đậm, cùng với chiếc ghế sofa dáng tròn cong xuất hiện đã cân bằng giữa độ cứng cứng của sàn nhà và sự mềm mại từ sự lựa chọn vật liệu ổn định.


Khu vực đọc sách được mở rộng bằng cách điều chỉnh lại bức tường cao từ trần đến sàn và lắp đặt hệ thống kệ tủ linh hoạt. Phía trên là dãy tủ gỗ màu trắng nhẹ nhàng, phía dưới là kệ mở không cánh dùng làm giá sách hoặc lưu trữ các món đồ lưu niệm, trang trí… Dưới cùng dãy ngăn kéo đóng vừa rèn luyện thói quen tốt tự cất đồ chơi của trẻ vừa là bệ vui chơi thú vị tràn ngập ánh sáng ban ngày ấm áp. Khu vực sàn giữa ghế sofa và giá sách cũng thoải mái cho giả chủ trải thảm tập yoga mỗi ngày.

3. Thiết kế nhà bếp:
Phòng ăn và nhà bếp được kết nối thông suốt, chúng trở thành khung cảnh ấm áp và đầy ắp tiếng cười trong gia đình. Chủ đề vòng cung tiếp tục được đưa vào theo cấu trúc đường viền bao bọc xung quanh các dầm kết cấu để hướng dẫn thị giác.

Giữa khu vực bếp nấu và bàn ăn là một quầy đảo xinh xắn bằng đá nhân tạo, vừa vạch ra ranh giới rõ ràng giữa 2 khu vực vừa tích hợp bồn rửa và các ngăn đựng đồ nhà bếp rất tiện dụng, ngăn nắp.

4. Thiết kế phòng ngủ chính:
Chủ nhân muốn một khung cảnh nghỉ ngơi thực sự thoải mái, vì vậy màu gỗ ấm áp và khối lượng tiêu chuẩn được làm mờ đi rất nhiều, đồng thời bố trí không gian trắng đơn giản mà nhẹ nhàng.

Bàn trang điểm độc lập theo nhu cầu của bà chủ cũng giúp tăng cường các chức năng tại chỗ trong phạm vi tầng hạn chế để đạt được một tình trạng ngủ thoải mái nhất.
5. Thiết kế phòng trẻ em:
Phòng trẻ em được thiết kế cửa trượt bằng gỗ để đóng mở dễ dàng và không chiếm nhiều diện tích. Căn phòng được sơn màu xanh xám sương mù làm khung cảnh chính, cho cảm giác hơi thở tự nhiên bao quanh. Trần nhà được phác thảo hợp lý để nguồn sáng tuyến tính có thể định hình hình, sáng sủa và dễ chịu.


Phòng ngủ đối diện được lát bằng bức tường đầu giường màu xanh nước biển, và để duy trì một bức tranh hoàn chỉnh về ánh sáng ban ngày. Thông qua việc chuyển và lược bỏ bức tường ngăn, một cơ sở vui chơi bí mật cho trẻ nhỏ được mở ra. Chiều sâu là ô cửa đóng mở tự do, cho phép trẻ em phiêu lưu tìm kiếm và ẩn nấp.

6. Lập kế hoạch lưu trữ:
Căn hộ được xác định là nơi cư trú cho kỳ nghỉ ngắn hạn, nên sau khi tính toán toàn diện kích thước và số lượng đồ vật, gia chủ đã sử dụng tủ âm tường cong để quản lý tập trung, gọn gàng các thiết bị gia dụng lớn, dụng cụ thể thao… Thân tủ cố định che khuất bề mặt ánh sáng ban ngày, cho phép ánh sáng mặt trời chiếu khắp phòng.

7. Thiết kế chiếu sáng:
Đèn âm tường và đèn chiếu được sử dụng làm bộ phận chính trong phương án chiếu sáng. Bên cạnh đó, thanh đèn LED nhôm được bố trí gần cửa sổ để định hình tư thế có thể thay đổi của ánh sáng, và nó được xếp chồng lên nhau với ánh sáng vàng 3000k, tạo nên một tầm nhìn mềm mại vô tận.

8. Lựa chọn vật liệu xây dựng:
Sàn lát đá phiến trầm, gỗ óc chó trắng nhuộm nước, sàn gỗ siêu chịu mài mòn, sơn bóng, đá nhân tạo….

9. Phương án màu sắc:
Căn hộ sử dụng màu trắng và gỗ làm chủ đạo, mang lại cho không gian sống một nhịp điệu thị giác ổn định, thư giãn. Sau đó thông qua đồ nội thất với màu sắc và đường nét tương đồng theo chuỗi để tập hợp sức mạnh phân lớp, cảnh quang cũng trở nên sinh động, nhiều sức sống hơn.
Theo V.K - Vietnamnet
