Các kiến trúc sư đã trao đổi và đáp ứng xuất sắc nhu cầu của gia chủ, tuy diện tích ít nhưng vẫn có thể bố trí được 3 phòng với đủ khả năng lưu trữ cơ bản.

Xét không gian là nhà mới xây, không nên phá dỡ để bố trí lại vì chi phí cao, nên nhu cầu chuyển 3 phòng thành phòng 2 + 1 được đặt ra. Ngoài phòng ngủ chính, phòng của các con được thiết kế theo kiểu Nhật bán mở để vừa có thể ngủ vừa sử dụng làm phòng chơi, đồng thời cũng có thể được sử dụng làm phòng khách.

Bố cục tổng thể tương đối dài và hẹp, cửa sổ lớn trong phòng khách được sử dụng để đón nhiều ánh sáng ban ngày, màu tường sáng và vân gỗ sáng tạo nên bầu không khí Bắc Âu rộng mở. Tầm nhìn không gian vì thế được phóng đại lên rất nhiều so với thực tế.

Khi được hỏi về điểm ấn tượng khi tiếp nhận cải tạo căn hộ này, kiến trúc sư chia sẻ: "Ban đầu, gia chủ không thể quyết định được chọn công ty thiết kế nào do kinh phí hạn hẹp và ý tưởng của hai vợ chồng hơi khó nhằn cho một không gian nhỏ.
Tôi thấy được việc đó trên Facebook, đồng thời hiểu sự lưỡng lự và lo lắng của họ sau khi trực tiếp giao tiếp, tôi đã cân nhắc về tài chính nhưng muốn có một cuộc sống chất lượng nhất định, kết hợp với sự chuyên nghiệp để đáp ứng tối đa nhu cầu của gia chủ. Sau đó, tôi đã đưa ra các phương án cho chủ nhà tham khảo và họ hài hòng với nhận xét của chúng tôi. Đây là niềm vui và động lực để chúng tôi tiếp tục làm việc chăm chỉ".

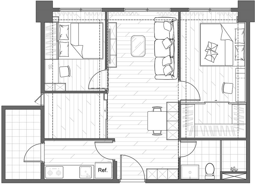
Thông tin cơ bản về căn hộ: Nhà ở mới / Diện tích 18m2 / Bố trí 2 + 1, 1 Phòng khách, 1 Phòng tắm / Số lượng người ở: 2 người lớn và 1 trẻ nhỏ.
Chi tiết về thiết kế các không gian trong nhà
1. Thiết kế lối vào
Do ít diện tích nên kiến trúc sư chọn tủ dựa vào tường làm tủ hiên và tủ giày ngay cửa chính. Bệ rỗng có thể để đồ vật nhỏ khi như ví, túi, chìa khóa... thuận tiện khi cho gia chủ khi ra vào nhà. Bên dưới là tủ đựng giày, cố tình không đặt sát sàn để tiện cho việc vệ sinh sau này và tầm nhìn cũng nhẹ nhàng hơn.

2. Thiết kế phòng khách
Cách bố trí phòng khách hẹp và dài, may mắn là cửa sổ bố trí kính suốt từ trần đến sàn mang lại nhiều ánh sáng ban ngày giúp không gian sáng sủa và sạch sẽ. Tường trắng và chất liệu gỗ sáng màu được xếp chồng lên nhau theo kết cấu Bắc Âu, giúp tầm nhìn tổng thể nhẹ nhàng hơn nhiều.

Diện tích không lớn nên phòng khách hạn chế tối đa việc trang trí không cần thiết, vách tivi vẫn giữ được vẻ tươi mới, mặt tường sau ti vi bằng đá cẩm thạch mang lại sự nổi bật, tủ đựng đồ bên dưới được bày biện gọn gàng đơn giản. Với nội thất màu trắng sạch sẽ, để không gian không bị đơn điệu, bức tường sau ghế sofa được xử lý màu ghi. Bộ sofa màu xám được kết hợp với bức tường hơi xám làm nổi bật sự sạch sẽ và đơn giản của bức tường trắng.


3. Thiết kế phòng ăn
Bàn ăn cạnh cửa ra vào ban đầu được dự định là tủ cao trên tường để mở rộng chức năng lưu trữ. Tuy nhiên, sau khi xem xét chi phí và trao đổi với chủ sở hữu, nó đã được thay thế bằng một tủ thấp.

Mặc dù không gian lưu trữ giảm đi gần một nửa, nhưng mặt bàn thấp cũng có thể được sử dụng như một bàn máy tính để làm việc và tầm nhìn cũng thoáng hơn rất nhiều. Chiếc đèn pha lê treo phía trên bàn ăn được nam gia chủ lựa chọn, ngoài yếu tố thẩm mỹ còn cho ánh sáng trang trí lộng lẫy khiến không gian về đêm càng thêm lãng mạn.

Do hạn chế về không gian nên bàn ăn chỉ có thể chọn loại nhỏ, ngày thường một gia đình ba người là đủ, khi có khách thì mặt bàn có thể nhích ra ngoài một chút, vẫn còn chỗ để ngồi đủ một bàn và bốn ghế. Bạn có thể dễ dàng điều chỉnh đường di chuyển tùy theo tình huống.

4. Thiết kế phòng ngủ
Phòng ngủ chính lấy phong cách Bắc Âu yêu thích của gia chủ. Đầu giường màu vân gỗ sáng, trên thành được thiết kế có chiều sâu một chút để có thể đặt điện thoại di động hoặc tranh ảnh nhỏ.

Bên trái giường treo một mô hình mặt dây chuyền pha lê nhỏ nhắn và tinh tế, bức tường được trang trí bằng tấm lam gỗ dày hơn giúp không gian thêm sinh động.

Bên phải giường ngủ là bàn trang điểm nhỏ được thiết kế nối liền với hộc tủ ba ngăn nhỏ gọn, thiết thực. Vách bên hông làm ổ cắm cũng có thể làm bàn làm việc để tạo cho phòng ngủ master một không gian sử dụng thoải mái.

5. Thiết kế phòng thay đồ
Nữ chủ nhà hy vọng có một phòng thay đồ đồng thời có thể làm kho chứa đồ và kiến trúc sư đã đặt nó bên cạnh cửa ra vào của phòng ngủ với một tấm kính nhỏ có tác dụng che chắn bán phần được sử dụng làm cửa trượt. Điều này vừa thỏa mãn quyền riêng tư và có hiệu quả truyền ánh sáng tốt.

Không có góc nào được để lại trong phòng thay đồ nên không gian được tận dụng tối đa. Tủ quần áo được lên kế hoạch bảo toàn không gian bên trên để có thể chứa được đồ vật lớn, chẳng hạn như vali hoặc chăn màn khi chuyển mùa.

Hốc giữa tủ có thể treo quần áo, ngoài ra còn có ngăn kéo gồm nhiều ô để đựng những đồ vật nhỏ.

Phần trên là không gian lưu trữ kiểu cửa, và phần dưới là các ngăn kéo có độ sâu khác nhau, xoay hết góc tường, cho phép lưu trữ mở rộng vào sâu trong khoảng không. Các thanh đèn được quy hoạch để hỗ trợ chiếu sáng khi tìm quần áo.

6. Thiết kế phòng cho bé
Các bé vừa bước vào tiểu học cần không gian học tập yên tĩnh nên phòng bé tận dụng chiều sâu của tủ để kê bàn học. Tủ sách bên trái có thể dùng để đặt sách và trưng bày đồ tự lắp ráp của các bé như Lego hoặc đồ chơi.

Giường ngủ không kê vào khung giường mà đặt thẳng xuống sàn, sau khi lớn lên bé có thể có nhiều không gian linh hoạt hơn để bố trí lại đồ đạc. Phía đầu giường là tủ quần áo cửa lùa giúp tiết kiệm diện tích và đáp ứng chức năng lưu trữ.

7. Thiết kế phòng kiểu Nhật
Phòng kiểu Nhật dùng làm phòng khách và phòng chơi cho trẻ em với sàn nâng được dùng làm ranh giới giữa 2 khu vực. Kính chiếu sáng được kết hợp với cửa trượt dạng lưới để vừa tiện lợi vừa trở thành một vật trang trí cho căn phòng.

Phần cánh cửa được mở rộng với tủ đựng đồ thanh mảnh giúp cho tầm nhìn nhất quán hơn và ánh sáng có thể xuyên vào phòng ăn để mở rộng độ sáng.

8. Lập kế hoạch lưu trữ
Khi quy hoạch một không gian nhỏ, vị trí lưu trữ sẽ được bố trí đầu tiên. Ví dụ, trong trường hợp này, trung tâm lưu trữ được đặt trong phòng ngủ, giống như phòng thay đồ trong phòng ngủ chính. Như vậy, không gian công cộng sẽ giảm bớt sự hiện diện của tủ, tầm nhìn theo đó cũng rộng mở hơn chứ không có cảm giác hạn hẹp bí bách.

9. Quy hoạch di chuyển
Vì là nhà mới xây nên khi không có sự di chuyển, phòng kiểu Nhật được ngăn cách bằng cửa trượt và nâng sàn bằng cách tận dụng không gian bên cạnh phòng của trẻ, khiến sơ đồ ban đầu là 2 phòng ngủ +1 phòng.

10. Lập kế hoạch chiếu sáng
Khi lập kế hoạch bố trí ánh sáng, nguồn sáng được bố trí dọc theo các góc, ánh sáng chiếu vào tường và phản chiếu vào không gian, nguồn sáng nhẹ nhàng, dễ chịu.
11. Lựa chọn vật liệu xây dựng: Gỗ tấm, các bộ phận bằng nhôm, kính phun cát, sơn latex, đá ốp tường…

12. Quy hoạch màu sắc
Màu sắc của không gian chủ yếu là màu trắng giúp không gian được mở rộng và tầm nhìn sảng khoái, thoải mái hơn. Sau ghế sofa là bức tường màu xám đậm hơn một chút để tạo ra khoảng cách thị giác, và không gian có nhiều lớp hơn.
Theo V.K - Vietnamet
