Tôi muốn nhờ thiết kế nhà tôi trên mảnh đất 6.7x17.2m, xung quanh đều đã có nhà. Tôi muốn thiết kế nhà 2 lầu 1 thượng, có garage, phòng khách, sinh hoạt chung, phòng thờ các phòng ngủ đều có wc riêng biệt.
Kiến trúc sư tư vấn:
Dựa theo những thông tin mà bạn cung cấp và yêu cầu tư vấn thiết kế, chúng tôi xin đưa ra phương án mặt bằng tư vấn thiết kế như sau:

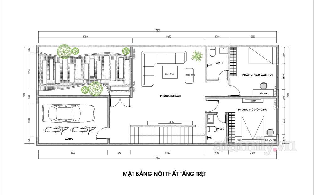
Mặt bằng nội thất tầng trệt.

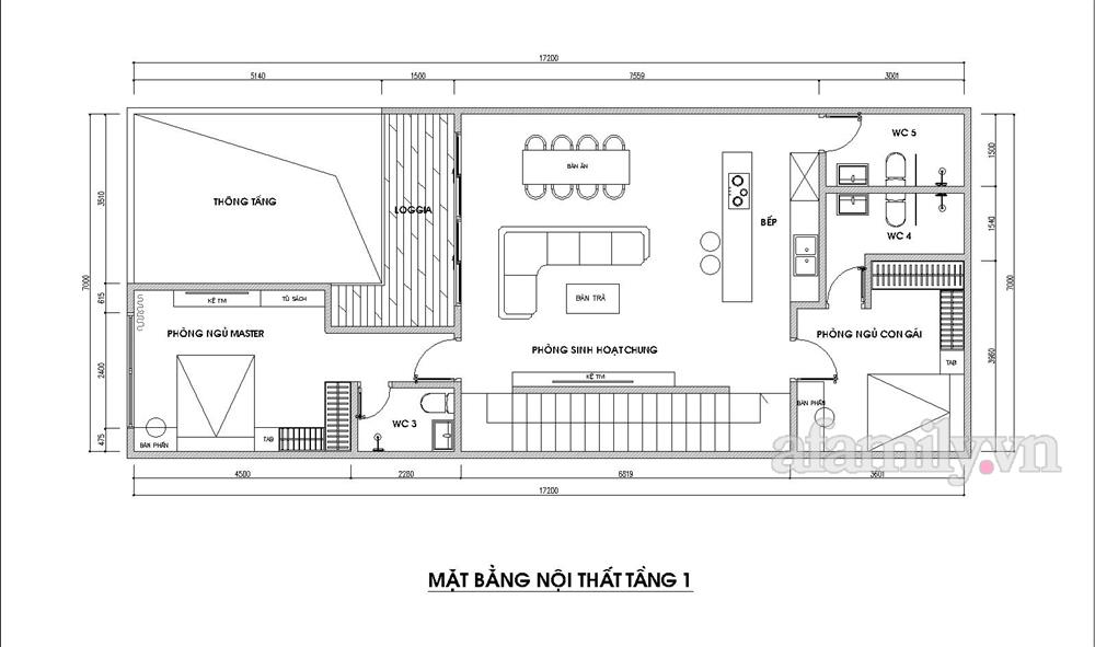
Mặt bằng nội thất tầng 1.

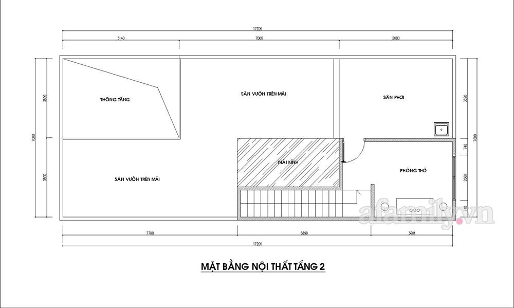
Mặt bằng nội thất tầng 2.
Trong vài năm trở lại đây, việc phát triển kinh tế và đời sống người dân được nâng cao rõ rệt đã tạo điều kiện phát triển nhu cầu về việc lựa chọn một ngôi nhà rộng lớn và đầy đủ tiện nghi.
Chính vì vậy, nhà ống 2 tầng 1 thường là sự lựa chọn của một bộ phận không nhỏ các gia đình Việt Nam có điều kiện về kinh tế.
Với diện tích 6.7x17.2m2 là diện tích khá lớn nên về phần thiết kế KTS có thể thoải mái đưa ra ý tưởng.

Phòng khách tone ghi xám hiện đại.
Tầng 1 là garage ô tô, phòng khách, bếp, 1 phòng ngủ nhỏ và 1 vệ sinh. Phòng khách với tone ghi xám, tường đá sang trọng. Bộ sofa dài thoải dọc theo tường, bàn nước khá ấn tượng với chất liệu đá cùng tone với cả căn phòng, hình bán nguyệt trông như nửa quả cầu. Hệ thống đèn hắt sáng từ trên trần tạo cảm giác ấm cúng, tranh tường đơn giản 2 màu đen trắng.

Phòng ngủ ông bà dưới tầng 1.
Phòng ngủ ông bà dưới tầng 1 đơn giản, là sự kết hợp giữa tone xám và nâu gỗ. Phụ kiện trong phòng tối giản nhưng hình thù đặc biệt. Phần lớn thiết kế đều mang cảm giác vuông vức từ ghế, giường, tủ đầu giường đến tấm gỗ ốp phía đầu giường nên rất hợp nhãn.
Không gian bếp và sinh hoạt chung trên tầng 2 rất rộng, vẫn tone ghi xám nhưng lấy chất liệu gỗ làm điểm nhấn, phối màu đen của tủ bếp và một số phụ kiện để mix màu.

Bếp hiện đại và đảo bếp chữ I tiện nghi.
Tầng 2 với cửa sổ sát sàn và ban công tạo độ mở rộng cho không gian cũng như tăng diện tích chiếu sáng khắp căn phòng. Sofa thoải màu ghi xám chất liệu dạ rất thích hợp với bàn đá trắng tạo cảm giác thoải mái.

Phòng sinh hoạt chung sang trọng, rộng rãi.
Kệ tivi mỏng, chất liệu gỗ màu nâu tiện lợi bởi có khá nhiều ngăn kéo sát sàn, 2 bên còn có kệ đứng nhiều ngăn để sách hoặc đồ trang trí. Bếp ăn kéo dài với đảo bếp chữ I rất xinh, KTS còn phối một bàn ăn nhỏ quây quanh đảo bếp với 5 chỗ thích hợp nếu có nhiều hơn 1 người hỗ trợ mẹ làm bếp.

Bàn ăn không quá cầu kỳ, cả ghế và bàn đều thanh mảnh, cùng chất liệu với mảng gỗ ốp tường phía sau. Đèn thả 3 chiếc xuống bàn ăn màu trắng nhẹ nhàng, trên bàn đặt 1 lọ cây thủy tinh xinh xắn.

Bàn ăn đơn giản cùng chất liệu gỗ với ốp tường.
Phòng ngủ master ấn tượng với tone trắng – nâu đậm, đặc trưng chất liệu gỗ, tủ quần áo cửa kính sang trọng, bên trong có hệ thống đèn âm chiếu sáng. Cửa sổ lớn với phần bệ to, rộng đủ để ngồi đọc sách mỗi buổi sáng sớm. Kệ đầu giường chân gỗ mặt đá granite giống như bàn nước phòng khách. Đèn ngủ thả xinh xắn hình dáng giống như phần trang trí tường.

Phòng ngủ master ấn tượng, sang trọng.
Phòng vệ sinh của phòng ngủ master cũng tựa phong cách như vậy, không quá lớn nhưng phụ kiện đều vuông vắn, góc cạnh. Phần gương soi có thêm chế độ đèn và cảm ứng chạm. Lavabo đặt bàn nhỏ xinh xắn, bàn đặt cũng sử dụng chất liệu gỗ không thấm nước, tủ đồ tiện lợi và sang trọng.

Phòng vệ sinh sạch sẽ, vuông vắn.
Phòng ngủ con trai bé thì tinh nghịch hơn với màu xanh ngọc – trắng, tranh tường hình biển, đồ chơi trải khắp phòng. Vẫn là cửa sổ lớn cho ánh sáng chan hòa nhưng phong cách các phòng có sự khác biệt tùy người sử dụng mà vẫn đảm bảo sự tiện nghi.

Phòng ngủ con trai bé sinh động, đáng yêu.
Phòng ngủ con gái mang nét phong cách tiểu thư, tone hồng pastel-ghi xám cực ấn tượng với ghế mây tựa màu xám bạc và đèn trùm thả trần hình vòng hoa. Phụ kiện trong phòng cũng mềm mại hơn rất nhiều như kệ đầu giường, thảm dạ lông, gấu bông và bộ tranh Canvas cùng tone màu trên tường.

Phòng ngủ con gái vô cùng ấn tượng.
Tầng thượng trông như một quán cà phê trên mái với ghế tựa, ghế nằm và đèn sàn tỏa ánh sáng mềm mại, lãng mạn. Phần mái không phủ kín mà dạng thanh gỗ nan cho không gian thêm phần thoáng đãng.

Tầng thượng như một quán cà phê Rooftop.

Báo giá sơ bộ.
Hi vọng với phương án bố trí của Nhà Hay sẽ đáp ứng được tiện nghi cũng như nhu cầu sinh hoạt của bạn và gia đình.
Theo Nhịp Sống Việt
