"Anh luôn sợ bọn nhỏ lớn lên rồi khô khan giữa thành phố. Nếu cái đẹp chỉ là trơ trọi với gạch đá và những món đồ công nghệ thì nó vô cảm lắm phải không em?" – đó là tâm sự của chủ nhà với kiến trúc sư khi gặp nhau lần đầu.
Từ mong muốn và ý tưởng của gia chủ, kiến trúc sư Nguyễn Đức Quế cùng cộng sự đã vẽ lên ngôi nhà đẹp, đậm chất nghệ thuật giữa những xô bồ, bon chen của phố thị. Từ đây, kiến tạo nên cuộc sống an yên cho cả gia đình.
Anh Đức Quế cho biết thêm, công trình nằm ở Cửa Lò (Nghệ An), xây trên mảnh đất có kích thước 6,5x22m, tổng diện tích sử dụng sau khi hoàn thiện là 280m2. Trong nhà, anh sử dụng khá nhiều vật liệu tự nhiên, tạo nên sự gần gũi, hài hòa với môi trường, đảm bảo sức khỏe cho gia chủ.

Mặt tiền ngôi nhà thiết kế đơn giản,nhẹ nhàng dùng tone trắng sáng nổi bật. Phần nhà ở xây lùi vào trong, nhường lại diện tích cho sân vườn và chỗ để xe.



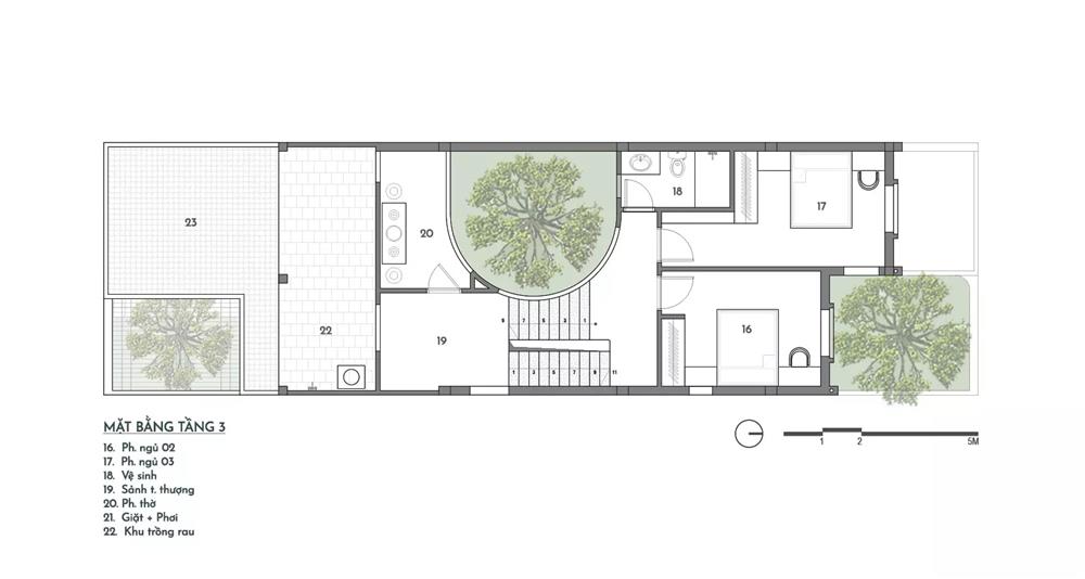
Phối cảnh bóc mái 3 tầng. Qua đây ta dễ hình dung được công năng sử dụng của nhà. Ngoài phòng ngủ trên tầng 2 và 3, kiến trúc sư đã thiết kế 1 phòng ngủ nhỏ ở tầng 1 cho người lớn tuổi thuận tiện trong sinh hoạt, không phải leo nhiều.

Ban công rộng tầng 2 được dùng trồng cây và đặt bộ bàn ghế gỗ mộc mạc, phục vụ các hoạt động ngoài trời. Đây cũng là phần mái tầng 1, che nắng, mưa. Tuy nhiên, kiến trúc sư cũng bố trí khoảng sân thông tầng, thu ánh sáng tự nhiên và trồng cây ăn quả. Sự phối hợp nhịp nhàng, tầng tầng lớp lớp của các loại cây thể hiện tính thẩm mỹ của nhà.


Tầng 1 là phòng khách, sân để xe, phòng ngủ và mảnh vườn mini ở cuối nhà. Bức tượng điêu khắc đậm chất nghệ thuật, mang đến không gian sống duy mỹ và dễ chịu. Phần giếng trời bo cong cho nhà thêm mềm mại.

Mảng tường giếng trời dùng đá rối, có sự bền vững về lâu dài, tránh bị ẩm mốc và tạo điểm nhấn.

Phòng khách nâng cao hơn sàn sảnh tiếp đón nhằm giảm bậc cầu thang và tạo sự phân tách giữa hai không gian. Đá lát sàn màu xám bê tông mang ý đồ của kiến trúc sư, đồng thời cũng giúp gia chủ dễ vệ sinh, tránh ố màu khi sử dụng.

Cửa dẫn ra mảnh vườn mini lấy gió trời cho phòng ngủ.

Nhà xây lệch tầng, theo hình zích zắc. Bếp nấu và bàn ăn ở tầng 2, lên vài bậc là vào không gian phòng ngủ. Cách thiết kế này giúp giảm bớt các bậc cầu thang, di chuyển không bị mỏi và mệt.

Một thiết kế hoàn hảo, khiến tất cả các khu vực trong nhà đều có gió trời, ánh sáng tự nhiên.

Từ bàn ăn có thể phóng tầm mắt ra ban công và khoảng không phía xa.

Các thành viên trong gia đình dễ dàng kết nối với nhau qua không gian mở. Sàn lát gạch giả gỗ theo hình xương cá tinh tế, sang trọng.

Màu trắng làm chủ đạo thêm màu gỗ ấm và màu xanh của cây cối là sự kết hợp cơ bản nhưng tạo ra hiệu ứng tuyệt vời.

Sảnh vào nhà rộng mở mang hơi hướng thiết kế Nhật Bản, tối ưu công năng sử dụng, đơn giản nhưng ấm áp.
Theo Vietnamnet
