
Nhà Voi nằm ở Cần Thơ, một thành phố lớn đông dân

Ngôi nhà có kích thước 4,5 x 23m nằm ở Cần Thơ. Đây là một thành phố lớn, với mật độ dân sinh cao bậc nhất phía tây Việt Nam

Cây xanh là vật không thể thiếu trong ngôi nhà, kết nối các không gian khác nhau

Màu xanh của cây cối mang lại vẻ tươi mới cho Nhà Voi

Khu vườn nhỏ trên tầng 2 tạo không khí trong lành

Bản vẽ mặt cắt ngôi nhà
Trước sự phát triển mạnh mẽ của xã hội, việc phát triển những ngôi nhà với 100% mật độ xây dựng là một lẽ tất yếu, nhằm đáp ứng được nhu cầu ở và làm việc tại một thành phố lớn.
Cũng vì lẽ đó, một khu vườn trong nhà tưởng chừng là một điều khá xa xỉ, nhưng tại đây, ngôi nhà có tới tận 7 khu vườn.
Những khu vườn trong nhà luôn mang lại một thứ tình cảm rất riêng. Nó còn kết nối toàn bộ ngôi nhà, để mọi vị trí sinh hoạt không bị giới hạn bởi những bức tường.

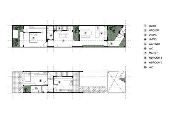
Mặt bằng ngôi nhà

Bàn bếp được làm từ đá kim sa trắng trẻ trung, hiện đại

Một chiếc lọ nhỏ xinh đặt trên tủ đựng đồ màu trắng, đằng sau cũng là bức tường trắng, tạo nên vẻ mộc mạc, giản đơn cho không gian

Căn bếp nhỏ nhưng đầy đủ tiện nghi, vẫn có không gian dành cho cây xanh

Phòng khách nhỏ, vừa đủ để thêm vào một khu vực trồng cây

Cổng mái vòm tạo nét mềm mại và làm không gian như rộng hơn

Tường và giường lấy tông màu trắng làm chủ đạo, khiến căn phòng nhẹ nhàng, ấm cúng và phảng phất nét cổ điển

Phòng ngủ của trẻ được trang trí với màu sắc bắt mắt, tươi sáng với những hình vẽ ngộ nghĩnh

Phòng tắm nhỏ nhắn nhưng vẫn hiện đại, tận dụng ánh sáng bên ngoài thông qua những ô cửa kính vuông vắn
Ngôi nhà 2 tầng có thể được miêu tả bằng cụm từ "dưới mức vừa đủ". Mỗi thứ được làm ít hơn một chút, nhỏ hơn một chút, để nới rộng thêm không gian sống cho cây xanh.
Tầng 1 có phòng khách, bếp, phòng ăn và phòng ngủ chính. Tầng 2 là 2 phòng cho trẻ nhỏ kết hợp cùng một phòng tắm tiện nghi.

Ngôi nhà giúp gia chủ cảm thấy yên bình và gần gũi với thiên nhiên hơn
Nơi lưu trú nhỏ bé này hướng tới sự tối giản về nhu cầu sinh hoạt cá nhân, tăng cường sự gần gũi với thiên nhiên, để cảm thấy yên bình và trẻ hóa, để phần nào thả lỏng con người mình, dưới sự tác động cộng hưởng của tăng trưởng kinh tế và phát triển đô thị.

Nhà Voi là nơi các thành viên trong gia đình có thể thả lỏng bản thân, tận hưởng không khí trong lành
Công trình được xây dựng trong hơn 4 tháng, chi phí không được tiết lộ.
Theo Tiền Phong
