Ý tưởng thiết kế xuất phát từ mong muốn ngôi nhà đầy đủ chức năng cơ bản và đơn giản, nhưng mang lại cảm giác ấm áp và gần gũi. Ngôi nhà là sợi dây liên kết giữa các thành viên trong gia đình.
Từ yêu cầu đó, các kiến trúc sư đã thiết kế một không gian nơi các thành viên trong gia đình có thể dễ dàng nhìn thấy nhau và cùng chung sống.

Ngôi nhà có thiết kế khá đơn giản, phù hợp với khí hậu lạnh của Đà Lạt.

Cổng và hàng rào thoáng.

Sân thoáng trước nhà.

Cảm giác ấm áp là mục tiêu chính của thiết kế, vì vậy mọi phòng đều có ánh sáng tự nhiên, từ phòng khách, bếp, hành lang và phòng ngủ.

Nội thất đơn giản với gỗ tự nhiên, kết hợp với gam màu trắng.

Sàn nhà làm giảm cảm giác “tĩnh” của một ngôi nhà đơn sắc, thêm tranh và vân gỗ tự nhiên.

Mái có ánh sáng tự nhiên vào trong nhà.

Với thời tiết lạnh đặc trưng của thành phố Đà Lạt, vào sáng sớm và buổi tối, hệ thống sàn hai lớp, gạch dưới và gỗ trên phòng ngủ mang lại cảm giác ấm áp cho chủ nhà vào mùa lạnh và cảm giác mát mẻ vào mùa nóng.

Các phòng có thể nhìn thấy nhau.


Phòng ngủ ấm áp vào buổi tối.






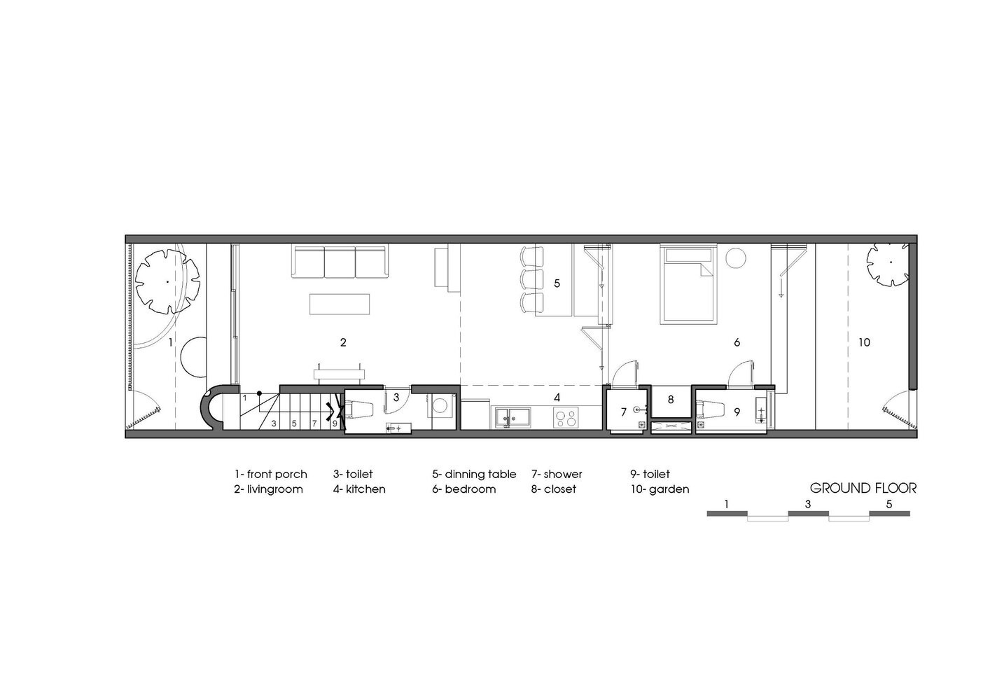
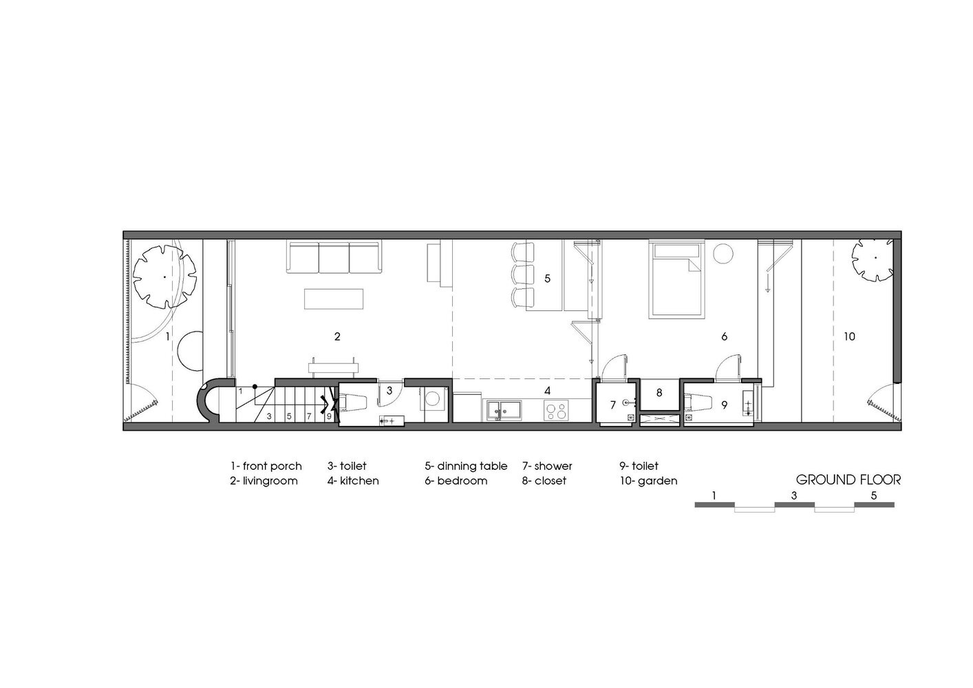
Mặt bằng tầng 1.

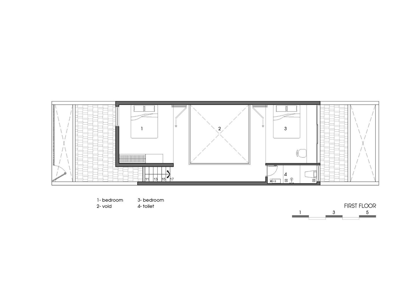
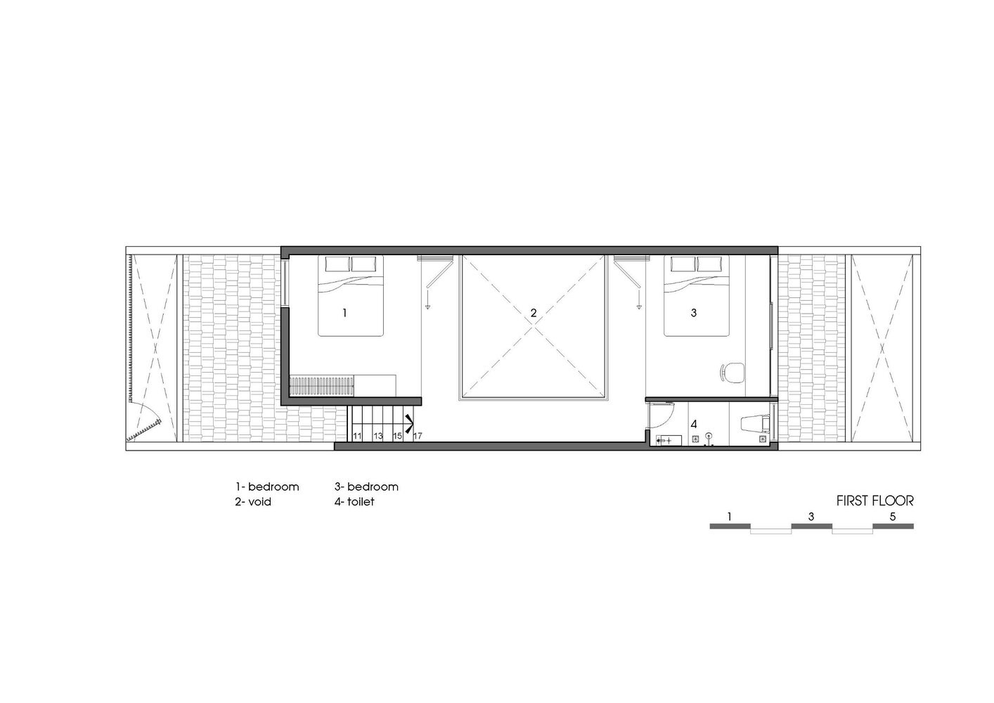
Mặt bằng tầng 2.
Theo VNN
