Long Bien Home có kích thước 104 m2 nằm ở mặt đường lớn thuộc quận Long Biên, TP Hà Nội. Đây là tổ ấm của gia đình trẻ gồm năm thành viên.
Sự kết nối không gian, sử dụng ánh sáng tự nhiên phù hợp và tạo ra thông gió tự nhiên tốt là những ưu tiên của chủ nhà.

Kiến trúc sư thiết kế bồn hoa và ban công đưa ra ở các tầng với độ dài khác nhau.
Do có mặt tiền chính hướng tây nam nên kiến trúc sư NDT đã thiết kế bồn hoa và ban công đưa ra ở các tầng với độ dài khác nhau. Bồn hoa đưa ra lớn nhất ở tầng năm và giảm dần về tầng hai cũng như lên mái tạo ra hình dáng mặt tiền có độ vát ấn tượng.
Đây vừa là giải pháp giúp chắn nắng hiệu quả vừa tạo ra cảnh quan ấn tượng cho mặt tiền ngôi nhà, ngăn chặn tiếng ồn và bụi bẩn từ bên ngoài tác động vào trong nhà.

Dù nhà phố hẹp ngang dài sâu nhưng không gian bên trong vẫn sáng thoáng.

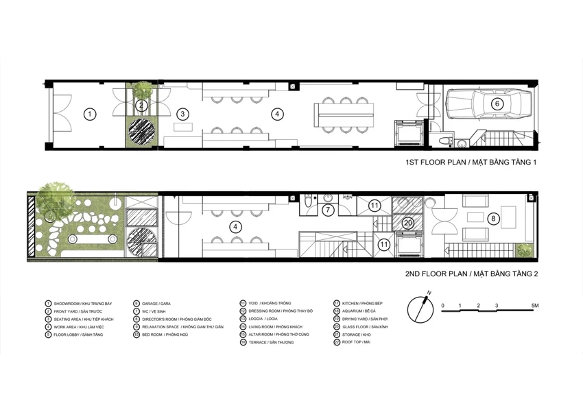
Nhà phố hẹp ngang dài sâu được sử dụng để ở và kinh doanh. Tầng một được sử dụng làm showroom để trưng bày xe điện. Tầng hai là không gian văn phòng làm việc với khu vườn lớn ở phía trước nhà.
Tầng 3,4 và 5 được bố trí làm nơi ở với đầy đủ các phòng cần thiết. Kiến trúc sư bố trí hai phòng ngủ ở tầng 3 với một không gian nghỉ ở sảnh tầng.

Tại tầng một cầu thang được bố trí tại hai vị trí khác nhau giúp tiếp cận lên tầng hai được thuận tiện hơn.

Nhà phố hẹp ngang dài sâu được bố trí sàn lệch, phía sau cao hơn phía trước 0,9m, điều này giúp các phòng trên các tầng trở nên riêng tư và tạo cảm giác thông thoáng hơn.

Phòng khách và bếp được bố trí ở phía trước nhà để lấy được ánh sáng tự nhiên tốt hơn, tầm nhìn ra đường lớn phía trước nhà cũng được mở rộng hơn.

Ý tưởng thiết kế mở giúp đón ánh sáng tự nhiên và không khí trong lành ngoài trời vào nhà cả ngày.

Ngôi nhà trở nên yên tĩnh và tách biệt hơn, trong khi đó sân trước có được không gian nghỉ ngơi và thư giãn dưới những tán cây râm mát.

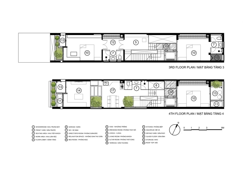
Từ tầng hai lên tầng năm, cầu thang được dịch chuyển vào vị trí giữa nhà sát thang máy.

Việc bố trí các khoảng thông tầng có tính liên kết giữa các tầng với nhau một cách hợp lý đóng vai trò quan trọng trong việc thoát hiểm xuống các tầng dưới và thoát ra bên ngoài trong trường hợp khẩn cấp.

Các khoảng trống được bố trí ở phía trước, phía sau và giữa nhà giúp việc lấy sáng cho các tầng bên dưới được tốt hơn.


Tầng năm có một phòng thờ và một khu vườn ngoài trời rộng lớn, khu vườn này là một điều hiếm thấy trong những ngôi nhà phố hẹp.


Tại không gian tầng năm có xích đu, bể cá lớn, bàn ăn và rất nhiều loại cây mang lại một không gian mát mẻ.

Tầng bốn có một phòng ngủ phía sau nhà.




Theo PLO
