Xây trên mảnh đất hẹp ngang và mặt tiền hướng tây nắng nóng nhưng thiết kế thông minh giúp căn nhà luôn thoáng mát. Theo tiết lộ, giá xây dựng siêu tiết kiệm.

Căn nhà này tọa lạc tại phường Đăk Cấm -TP Kon Tum.

Khi bắt tay vào thiết kế, đội ngũ kiến trúc sư phải giải quyết được 3 vấn đề.

Thứ nhất, mảnh đất xây nhà hình ống hẹp, kích thước 5x23m, mặt tiền hướng tây nắng nóng.

Thứ hai, chủ nhà yêu cầu một ngôi nhà thích hợp với khí hậu nhiệt đới khô có 2 mùa rõ rệt, mùa mưa và mùa khô của vùng cao nguyên.

Thứ 3, gia chủ là vợ chồng trẻ nên thiết kế phải tiết kiệm hết sức có thể để phù hợp với chi phí có hạn.

Khắc phục tất cả những điều trên, công trình hoàn thành không chỉ tiện nghi, hợp lý mà còn khá đẹp mắt, độc đáo.

Sử dụng tường 2 lớp với lớp ngoài là gạch hoa thông gió, lớp trong là kính cường lực giúp ngôi nhà khắc phục được nhược điểm mặt tiền hướng tây.

Sử dụng gạch hoa thông gió thay cho các loại gạch thông thường giúp đón gió và đưa ánh sáng tự nhiên vào không gian sống một cách hợp lý.

Mặc dù có vẻ ngoài không quá nổi bật nhưng nội thất của ngôi nhà sẽ khiến bạn không khỏi bất ngờ.

Xuyên suốt ngôi nhà là một không gian sống hiện đại, tiện nghi và đặc biệt là thân thiện với môi trường tự nhiên.

Gian bếp rộng được đặt ngay cạnh phòng khách, phân chia bởi một tủ gỗ đứng giúp không gian xuyên suốt liền mạch nhưng vẫn có sự riêng tư cần thiết.

Không gian rộng thoáng.

Màu sắc, nội thất và đồ trang trí đều được tối giản, mang đến cảm giác thoáng mắt.

Phòng ngủ với khung cửa lớn nhìn ra vườn tiểu cảnh bên ngoài.

Tiểu cảnh xanh mát ngay cạnh cửa sổ phòng ngủ.

Mặc dù chiều ngang khá hẹp, lối đi giữa các phòng cũng không lớn...

...nhưng màu sơn trắng đã làm rất tốt nhiệm vụ giúp không gian trở nên thoáng đãng hơn.

Lối đi xuyên suốt dọc ngôi nhà.

Phòng vệ sinh hiện đại.

Sân phơi thoáng rộng với nhiều cây xanh.

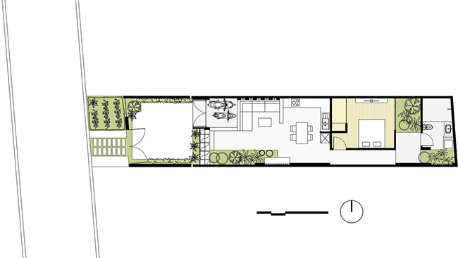
Bản vẽ thiết kế mặt cắt sàn của ngôi nhà.