Qua bàn tay tài ba của các KTS với phong cách kiến trúc hữu cơ, nhìn ngôi nhà đẹp trên mảnh đất đơn điệu đó, nhiều người sẽ phải ngạc nhiên thích thú.

Được biết, các KTS đã lên bản thiết kế bằng trí tưởng tượng đột phá và các biện pháp kỹ thuật số siêu thực trước khi lựa chọn phương án tối ưu nhất. Họ quyết định xây dựng một văn phòng tích hợp studio trưng bày với phong cách kiến trúc hữu cơ, công trình khi hoàn thiện không chỉ đem lại công năng sử dụng cao còn đặc biệt ấn tượng bởi sự độc đáo và giá trị thẩm mỹ.

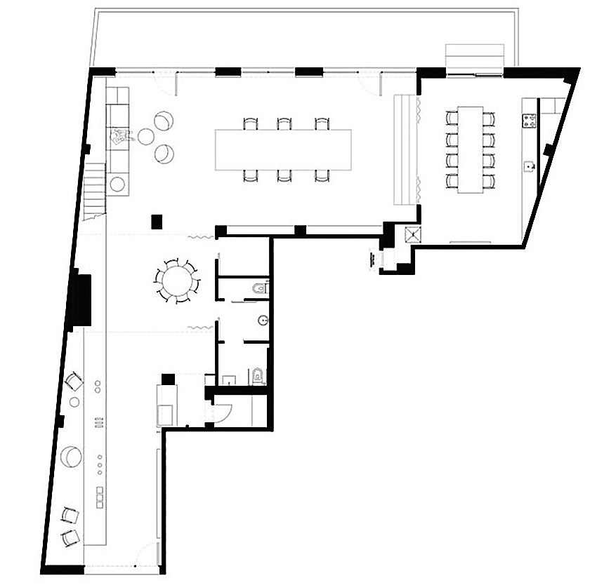
Cụ thể, một studio đã được hình thành trên mảnh đất đơn điệu này và tái tạo lại trần nhà bị che phủ quá mức ban đầu. KTS cố tình để lộ cấu trúc bê tông, công khai diện mạo và thể tích thực của không gian, đồng thời tạo ra một khu vực đa dạng, xây thêm một tầng lửng cho phép phân chia khu vực công cộng và khu vực riêng tư dễ dàng hơn.

Bên cạnh đó là một văn phòng yên tĩnh và sáng sủa, lối vào hướng ra phố là đường di chuyển dẫn đến không gian trưng bày, triển lãm. Còn lại là quán cà phê - nơi có thể tiếp khách đến xem thuyết trình hoặc triển lãm.

Khu vực riêng tư bao gồm studio, khu vực nghỉ ngơi, nhà bếp... Tất cả các không gian đều được kết nối với bệ cửa sổ cao từ trần đến sàn, ngoại trừ bức tường nơi cây cối phát triển, có thể đưa ánh nắng buổi sáng và buổi tối vào đây. Các màu trung tính cũng tạo ra sự huyền ảo cho không gian, khơi nguồn cho những thứ giàu trí tưởng tượng hơn.


Lớp sơn cùng tông màu được tiếp tục xuyên qua tường và lớp trát không đều được sử dụng làm lớp nền để đạt được kết cấu tương tự. Toàn bộ không gian được bao quanh bởi một chiếc bàn chính lớn làm bằng gạch xây và sơn cùng tông màu được sử dụng để cho thấy một kết cấu nhất quán. Có thể nói công trình ấn tượng với phong cách kiến trúc hữu cơ đã mang đến làn gió tươi mới, phong phú cho mảnh đất vốn tẻ nhạt vì không có lợi thế về hình dạng.

| Thiết kế Hữu cơ – Organic Design được coi là sự tổng hòa của nơi ở con người với thiên nhiên bằng cách tích hợp vị trí, kết cấu, hình dạng thiết kế và môi trường xung quanh để tạo thành một thể thống nhất. Có thể nói, thiết kế Organic là thiết kế tìm đến sự hài hòa giữa con người và thiên nhiên, đưa những sản phẩm nhân tạo trở thành thiên nhiên thực thụ. |
Theo V.K - Vietnamnet
