Ngôi nhà ống có diện tích gần 54m2 này có mặt tiền ở hướng Đông Nam, nằm trong khu dân cư đông đúc, xung quanh là các dãy nhà 3 – 4 tầng với mật độ dày đặc.

Xung quanh ngôi nhà này là các ngôi nhà ống 3 - 4 tầng, mật độ dày đặc.

Mặt bằng tầng trệt và tầng lửng.
Việc bố trí không gian cho ngôi nhà ống này được kiến trúc sư phân tích kỹ lưỡng về các điều kiện khí hậu, để đảm bảo yếu tố thông gió và ánh sáng thích hợp cho các không gian sinh hoạt bên trong.

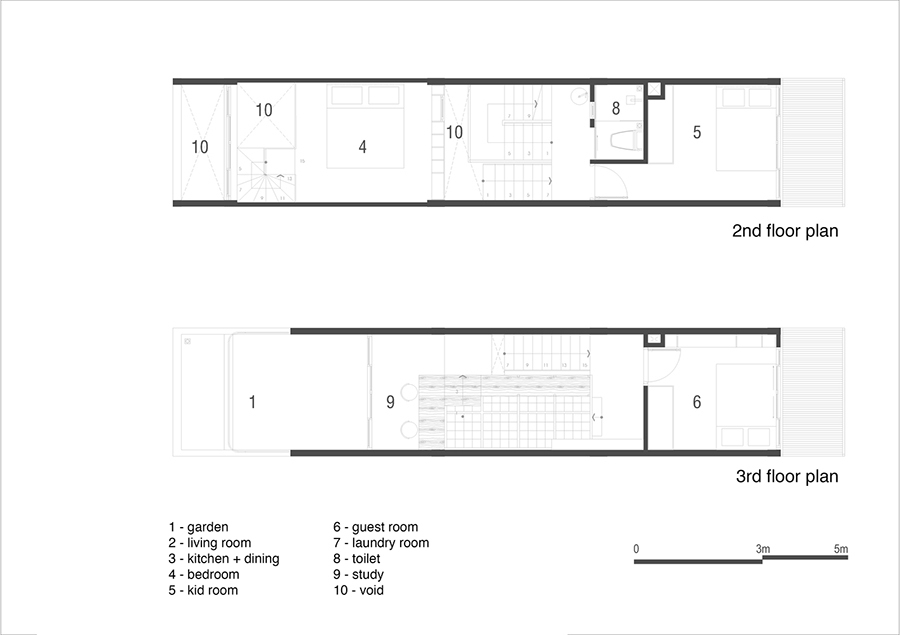
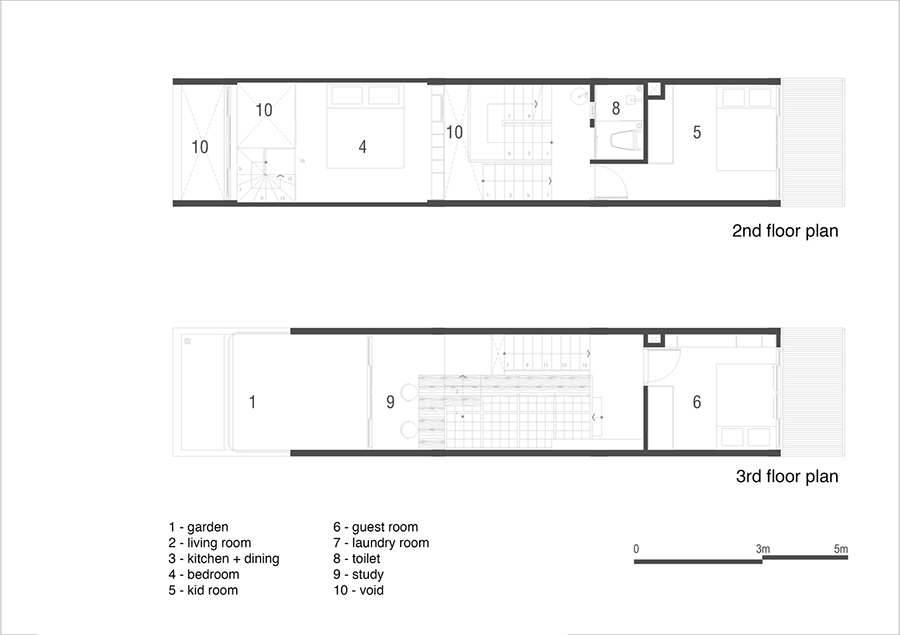
Mặt bằng tầng 2 và tầng 3 của ngôi nhà.
Với chiều ngang chỉ 3m, các công năng được bố trí trên các tầng riêng biệt tạo không gian kết nối thông qua giếng trời.

Mặt cắt công trình.
Khu vực nhà bếp và phòng ăn được nâng lên cao giúp tầng trệt trở thành một không gian thông suốt. Phòng ngủ chính được bố trí liên thông hai tầng phía trước. Không gian học tập được bố trí trên cùng để tạo sự riêng tư.

Ngôi nhà nằm ở Q.8, TP.HCM.

Phòng khách mát mẻ với khoảng sân trước trồng nhiều loại cây.

Cuối nhà có một khoảng vườn nhỏ.

Cầu thang nối tầng trệt và tầng lửng.

Khu vực cầu thang cuối nhà tràn ngập ánh sáng tự nhiên.
Trong ngôi nhà ống này, kiến trúc sư muốn mang đến trải nghiệm sống của nhà phố đô thị điển hình của Việt Nam cho một gia đình trẻ. Thoáng mát, có tầm nhìn thoáng đãng nhưng ngôi nhà vận có được sự riêng tư và an toàn cần thiết.

Khu vực bếp và bàn ăn được bố trí nằm trọn ở tầng lửng.

Góc thư giãn ở tầng lệch tiếp theo. Nơi đây có cầu thang đi lên phòng ngủ chính.

Tầng trên nhà bếp là phòng cho trẻ.

Với những ngôi nhà ống có diện tích hẹp, thiết kế lệch tầng được xem là phương án tối ưu.

Tiếp theo là không sinh hoạt chung của gia đình.

Bàn học được bố trí ở đây để đảm bảo sự riêng tư.

Khung cửa lớn bằng kính ở khu vực này giúp ngôi nhà đạt hiệu quả trong việc lấy sáng tự nhiên.

Mặt tiền của ngôi nhà về đêm.
Ánh sáng được bố trí lan toả từ những nơi bị tác động trực tiếp đến từng không gian riêng. Sự yên tĩnh, mát mẻ mang đến cảm giác yên bình và quen thuộc của một ngôi nhà truyền thống Á Đông. Sự tĩnh lặng trong không gian làm cho con người có cảm nhận sâu sắc về chính bản thân mình.
Theo Vietnamnet
