Đây là một dự án nhà ở đô thị siêu nhỏ với chiều rộng là 6,5 mét trong khi chiều sâu chỉ 2,5 mét nằm ở Bình Thạnh, Sài Gòn. Với diện tích 16,25 m², mong muốn của chủ nhà là xây một không gian sống mơ ước cho hai người con nhỏ, một trai một gái, ưu tiên tận dụng tối đa ánh sáng ban ngày trong khi vẫn đảm bảo sự riêng tư nhất định.
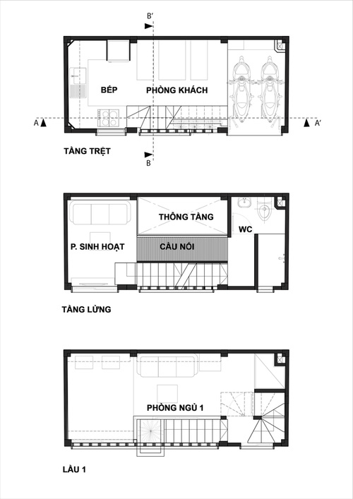
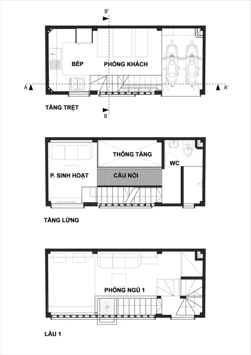
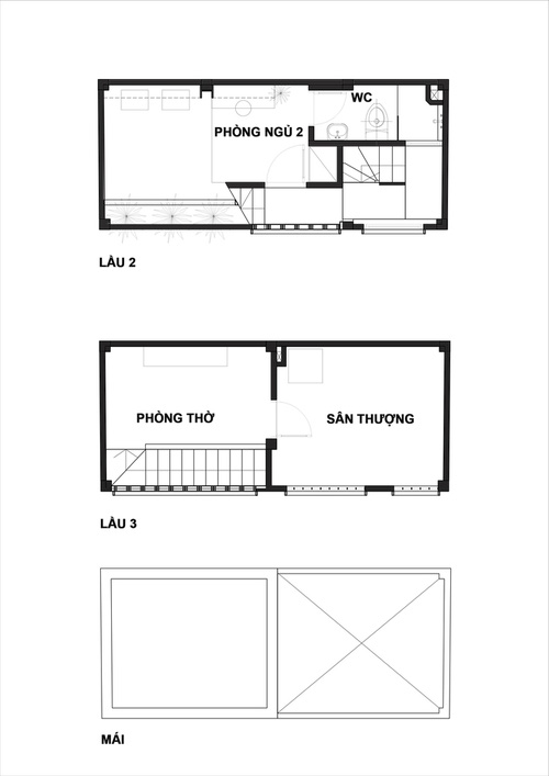
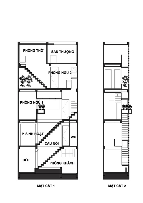
Ngôi nhà có 3 tầng: một trệt (phòng ăn + bếp), 1 tầng lửng (nơi chuyển giao không gian), 2 phòng ngủ ở tầng 2, 3 và tầng trên cùng (sân thượng + phòng thờ).


Cận cảnh nhà siêu mỏng 16,25 m² với mặt tiền rộng gấp 3 lần chiều sâu


Dù nằm cuối hẻm nhưng không hề mờ nhạt, trái lại cực kỳ nổi bật nhờ thiết kế độc đáo!
Mặt tiền của ngôi nhà nơi hứng nhiều ánh sáng nhất, đơn vị thiết kế đã lắp đặt nhiều ô nhỏ thoáng khí cũng như tường gạch kính giúp lấy tối đa lượng ánh sáng tự nhiên vào nhà mà vẫn đảm bảo sự riêng tư. Mặt khác, sự sắp đặt thông minh của ngôi nhà còn nằm ở chỗ hệ hành lang và cầu thang được bố trí giáp ngay với mặt tiền để tạo vùng đệm, giúp giảm nhiệt và làm mát cho các phòng ngủ bên trong. Các phòng ngủ này còn có cửa sổ riêng mở ra giếng trời nhằm mục đích thông gió tự nhiên và đảm bảo an ninh.
Tập trung vào sự đơn giản, nội thất với màu trắng làm chủ đạo, bên cạnh đó còn có màu gỗ sáng, gốm sứ và cây xanh làm sinh động không gian sống, tất cả đều lung linh và tươi sáng dưới ánh nắng mặt trời.

Mặt tiền của ngôi nhà nơi hứng nhiều ánh sáng nhất


Nhiều ô nhỏ thoáng khí được lắp ở mặt tiền giúp lấy tối đa lượng ánh sáng tự nhiên vào nhà mà vẫn đảm bảo sự riêng tư
Phòng khách và bếp chung nằm ở tầng trệt trong khi lên đến tầng lửng có một cây cầu màu trắng đánh dấu sự chuyển đổi không gian, thành một khu vực vui chơi riêng tư hơn, nơi cha mẹ có thể có thời gian vui vẻ bên con cái. Cuối cùng là các phòng ngủ nằm ở các tầng trên. Cả kiến trúc sư và chủ nhà đều hy vọng rằng ngôi nhà này sẽ là nơi trú ngụ ấm áp cho những đứa trẻ lớn lên.


Phòng khách và bếp chung nằm ở tầng trệt

Nội thất đơn giản với màu trắng làm chủ đạo, bên cạnh đó còn có màu gỗ sáng, gốm sứ và cây xanh làm sinh động không gian sống

Tầng lửng có một cây cầu màu trắng đánh dấu sự chuyển đổi không gian

Biến thành một khu vực vui chơi riêng tư cho 2 người con nhỏ


Đây là nơi cha mẹ có thể có thời gian vui vẻ bên con cái

Phòng ngủ nằm ở các tầng trên

Không gian còn lại trong phòng ngủ dành cho giá để sách và cây xanh

Hệ hành lang và cầu thang được bố trí giáp ngay với mặt tiền để tạo vùng đệm, giúp giảm nhiệt và làm mát cho các phòng ngủ bên trong

Các phòng ngủ có cửa sổ riêng mở ra giếng trời nhằm mục đích thông gió tự nhiên và đảm bảo an ninh

Bản vẽ công trình

Bản vẽ công trình

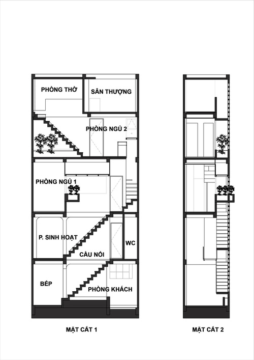
Mặt cắt công trình
Theo Trí Thức Trẻ
