Hà My’s House có diện tích 100 m2 tại quận Tân Bình, TP.HCM. Trước đó, đây là một ngôi nhà phố không có gì nổi bật với kiến trúc và nội thất xưa cũ, không gian bị chia cắt và phân chia chưa hợp lý.
Do đó khi xây dựng lại, đội ngũ thiết kế Ashera Architects đã nắm bắt và đề xuất một số giải pháp sáng tạo và hiệu quả nhằm tạo ra không gian sống lý tưởng cho gia đình.
Với lối thiết kế cũ cùng với việc bố trí cầu thang cong giữa nhà, không chỉ gây tốn diện tích mà còn làm cho ngôi nhà phố này còn trở nên chật chội hơn.
Sự tách biệt giữa khu bếp phía sau và phòng khách khiến không gian bên trong ngôi nhà trở nên chia cắt và thiếu sự liên kết. Các chi tiết nội thất, màu sắc, vật liệu cũng chưa có sự thống nhất, hài hòa và thiếu đi tính thẩm mỹ.

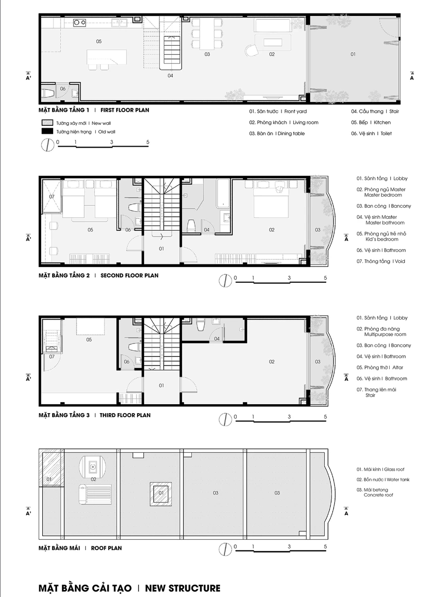
Tại tầng 1, thay vì giữ lại cấu trúc cũ kỹ, đội ngũ thiết kế Ashera Architects đã tạo ra một không gian chung thông suốt trong ngôi nhà phố, kết nối giữa các khu vực, không gian tiếp khách, phòng ăn và bếp.

Một trong những thay đổi lớn nhất của dự án này là việc phá dỡ phòng vệ sinh và cầu thang cong.

Sử dụng cầu thang thép kết hợp bậc gỗ, không chỉ giảm bớt thời gian thi công mà còn tạo ra một điểm nhấn độc đáo và thẩm mỹ.


Không gian ở tầng 1 của ngôi nhà phố liên thông tạo ra sự thuận tiện và thoải mái cho mọi thành viên trong gia đình.

Việc sử dụng các gam màu trung tính như trắng và xám cùng với chất liệu gỗ là điểm nhấn chính đã làm cho không gian trở nên hiện đại và ấm cúng hơn.


Đây cũng chính là gam màu mà chủ nhà yêu thích, tạo ra một không gian sống động và gần gũi.

Tầng 2 là nơi dành riêng cho giấc ngủ và nghỉ ngơi, phòng ngủ bố mẹ và hai bé với vệ sinh riêng cho mỗi phòng.



Phòng ngủ bố mẹ được thiết kế bố trí phía trước có ban công với tầm nhìn thoáng và đẹp.

Không gian phòng tắm, phòng vệ sinh sau cải tạo.

Phía sau là phòng hai bé được bố trí kế bên, thuận tiện cho việc chăm sóc.

Mỗi bé cũng có giường ngủ và bàn học riêng được thiết kế theo màu sắc yêu thích.
Tầng 3 là nơi cho dành cho phòng thờ và phòng đa năng với một lối đi được thiết kế đặc biệt lên mái.
Hà My’s House không chỉ là một công trình thiết kế nội thất, mà còn là một câu chuyện về sự đổi mới và sáng tạo, biến mong ước của chủ nhà thành hiện thực

Theo PLO
