Đây là căn hộ có diện tích 138m², được xây dựng từ rất lâu. Vấn đề lớn nhất mà không gian ban đầu gặp phải là có quá nhiều tường ngăn, lối đi phân chia các khu vực chức năng cũng nhiều theo dẫn đến hiệu suất sử dụng không gian bị giảm và ánh sáng yếu. Trong lần cải tạo mới, những bức tường ngăn không cần thiết được loại bỏ, tạo nên sự cân bằng thú vị giữa sự mộc mạc và tinh tế, đơn giản nhưng vẫn đầy sức sống.


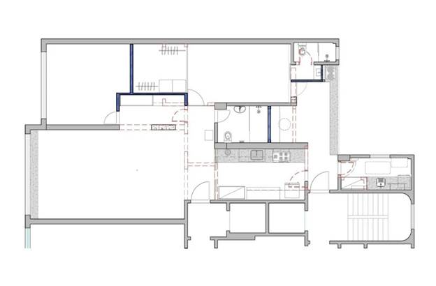
▲ Các kế hoạch trước và sau khi chuyển đổi

▲ Sau khi bức tường ngăn được dỡ bỏ, toàn bộ không gian được tận dụng tối đa, trông thoáng và sáng hơn. Nhà thiết kế vẫn giữ nguyên sàn gỗ tối màu nguyên bản và kết hợp với bàn ăn bằng gỗ nguyên khối màu tối trông khá cổ điển.



▲ Về phương án để tăng thêm sự sinh động cho ngôi nhà, gia chủ quyết định để cây xanh tô điểm và chúng được đặt trên ngăn tủ màu vàng tươi, trở thành vách ngăn trong suốt, giúp cây xanh lan tỏa một khắp xung quanh một không gian xanh mát và yên bình.



Phòng khách có lượng ánh sáng tự nhiên tuyệt vời với các bức tường mà trắng giúp không gian sáng sủa và trong suốt hơn. Một số ghế sofa, cây xanh và đồ trang trí được đặt rất ngẫu hứng, thể hiện cảm giác không gian tự do và không bị gò bó.


▲ Bây giờ ánh sáng mặt trời ở phía Tây có thể trực tiếp tràn vào khu vực phía Đông, và căn nhà cũ đã trở nên đầy sức sống mới.


▲ Căn bếp khép kín ban đầu có vẻ chật chội và thiếu sáng, nay nhà thiết kế đã thay đổi cả hai mặt của bức tường ngăn thành kính trong suốt và không phối cảnh. Điều này vừa đảm bảo sự xuyên sáng của ánh sáng và giúp quang cảnh trong bếp sẽ không ảnh hưởng đến vẻ đẹp của các đường ngắm khác.

▲ Nhà thiết kế cũng đã lên kế hoạch cho một phòng trà nhỏ, ngập tràn màu sắc ấm áp và những chiếc gối kiểu dân tộc, trông thật độc đáo.


▲ Thiết kế của phòng tắm dành cho khách rất mới mẻ và gọn gàng, cách bài trí các vật dụng thú vị khiến tổng thể giống như một bức chân dung đơn giản và chân thực.

▲ Nhà thiết kế đã không nhấn mạnh một cách mù quáng về "cái mới" trong quá trình cải tạo. Bất kể ký ức về tòa nhà cũ hay xem xét kinh phí khi cải tạo, một số yếu tố ban đầu vẫn được giữ lại, chẳng hạn như cột và dầm bê tông, trông rất thô và cứng. Ngay cả đồ đạc bỏ đi cũng không vứt bỏ trực tiếp mà được tái sử dụng và tùy biến thành vách ngăn lửng giữa thang gỗ và phòng ăn của khách.


▲ Nhà thiết kế đã tùy chỉnh bức tường này thành tủ đựng đồ để mở rộng không gian lưu trữ trong phòng và quy hoạch khu vực văn phòng bằng cách sử dụng các rãnh. Điều thú vị mà nhiều người không biết là cánh cửa tủ bên phải thực chất là lối vào phòng ngủ chính.


▲ Tường trắng và kính khung đen của phòng ngủ chính khá mới mẻ, những tấm thảm màu sắc, tranh trang trí và ghế đẩu cho thấy bầu không khí thoải mái của cuộc sống gia đình.

▲ Một lỗ tròn được mở trên bức tường nền của gương trang điểm để không khí trong lành và ánh sáng mặt trời tràn vào không gian kín ban đầu.
Theo V.K - Vietnamnet
