Vì muốn có một không gian nghỉ ngơi, thư giãn cuối tuần bên cạnh người thân nên chủ nhân ngôi nhà đã nảy ra ý tưởng xây một căn nhà nhỏ nằm cách xa thành phố. Tại đây, anh và người thân trong gia đình có thể đến gần hơn với thiên nhiên, nghỉ ngơi và lấy lại nguồn năng lượng cho một tuần học tập và làm việc tiếp theo.



Ngôi nhà hạt tiêu chỉ rộng 19 mét vuông nằm cách xa thành phố.
Nghĩ đến việc thiết kế một ngôi nhà nhỏ đơn giản, chủ nhân của nó nhớ lại những bức vẽ của mình khi còn nhỏ. Đó là là hình dạng ngôi nhà hình vuông và có phần mái hình tam giác. Vậy là ngôi nhà "hạt tiêu" này ra đời từ những ý tưởng thuở ấu thơ như vậy đó.

Ngôi nhà được chủ nhân thiết kế dựa vào những bức vẽ thuở nhỏ.
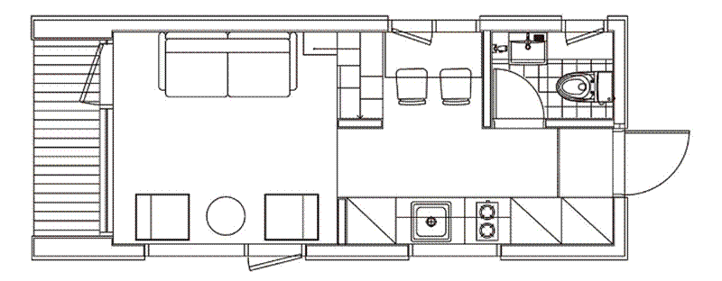
Tầng 1 của ngôi nhà có phòng khách, nhà bếp, phòng tắm. Tầng 2 là không gian dành cho phòng ngủ.

Tầng 1 của ngôi nhà có phòng khách, nhà bếp, phòng tắm.
Phòng khách vô cùng thông thoáng bởi được bao quanh bằng cửa kính cỡ lớn. Cả ngôi nhà đều sử dụng loại kính 3 lớp của Đức có khả năng cách nhiệt rất tốt.

Không gian phòng khách khá thoáng đãng, sáng sủa.
Nội thất phòng khách được trang bị với ghế sofa dài và 2 ghế đơn, đủ chỗ cho cả nhà cùng nghỉ ngơi. Sở dĩ không có tivi tại đây là do chủ nhân ngôi nhà muốn mọi thành viên có thể dành nhiều thời gian tận hưởng thiên nhiên tươi đẹp bên ngoài.

Nội thất phòng khách đơn giản gồm ghế sofa và bàn trà nhỏ gọn.

Chủ nhân ngôi nhà không lắp đặt tivi vì muốn mọi thành viên dành nhiều thời gian để ngắm nhìn thiên nhiên bên ngoài.
Khu vực nhà bếp được chia thành 2 dãy với một bên là khu vực chế biến, nấu nướng và bên kia là khu vực đặt bàn ăn và lò vi sóng. Ở mỗi khu vực sử dụng đều có thiết kế cửa kính để tận dụng nguồn ánh sáng tự nhiên từ bên ngoài.

Lối đi lại giữa không gian nhà bếp khá thoải mái.

Khu vực chế biến và nấu nướng.

Khu vực bàn ăn và lò vi sóng nhỏ gọn.
Máy giặt cũng được tận dụng đặt tại khu vực nấu nướng. Bên cạnh đó là một dãy tủ để đồ, cung cấp không gian lưu trữ chính bên trong căn nhà nhỏ này.

Máy giặt cũng được đặt ngay tại khu vực chế biến của nhà bếp.
Phòng tắm nhỏ gọn nhưng cũng rất tiện nghi với người dùng.

Phòng tắm nhỏ gọn nhưng cũng rất tiện nghi với người dùng.
Tầng áp mái được dùng làm không gian phòng ngủ với chiều cao đủ để người lớn có thể đứng dậy đi lại thoải mái. Không gian sáng nên luôn mang đến lại cảm giác thư thái, thoải mái cho người dùng.

Tầng áp mái được dùng làm không gian phòng ngủ cho cả nhà.
Theo Nhịp Sống Việt
