Trước khi bắt đầu kế hoạch cải tạo, chủ sở hữu đã trao đổi với nhà thiết kế về yêu cầu có một phòng khách lớn là không gian để các thành viên trong gia đình cùng quây quần chuyện trò, vui chơi, một nhà bếp và một phòng ăn tiện nghi.

Ngoài ra, chủ nhà cũng đề xuất thiết kế vị trí lưu trữ sách vở hợp lý và không gian học tập thuận lợi cho cô con gái xinh xắn của mình. Dù diện tích nhỏ nhưng họ vẫn muốn phòng cô bé có một chiếc bàn viết riêng và một chiếc tủ để đựng quần áo.
Dưới đây chính là sự "biến hình" của tổ ấm nhỏ này sau khi hoàn thành quá trình cải tạo của các KTS dựa trên yêu cầu và mong muốn của chủ sở hữu.
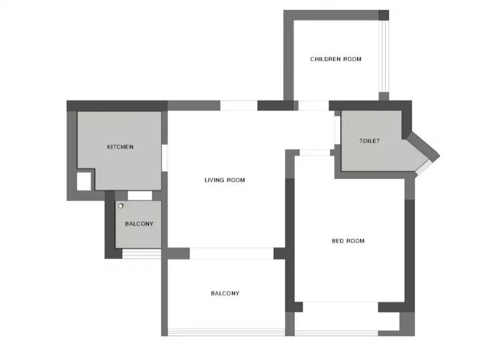
▲ Sơ đồ cấu trúc ban đầu

▲ Bố cục căn hộ sau cải tạo

Trung tâm của toàn bộ ngôi nhà chính là phòng khách, sau đó là các "dòng chảy" thông suốt sang 2 bên. Cụ thể:
Dòng nội trợ gồm phòng ăn và bếp ◀ Phòng khách ▶ Dòng sinh hoạt gồm phòng ngủ chính, phòng trẻ em, phòng tắm.
Các đường di chuyển trong căn hộ được thiết kế đơn giản nhưng phù hợp với thói quen sinh hoạt hàng ngày, giúp các thành viên trong gia đình mỗi khi bước chân vào phòng đều cảm thấy thoải mái, dễ chịu.

Hành lang
Ngay khi mở cửa ra vào, đứng từ hành lang bạn có thể nhìn thấy bao quát toàn bộ các khu vực sinh hoạt chung của căn hộ. Phòng khách, khu vực hoạt động giải trí, quầy bar ăn uống và bếp mở tạo thành lối đi thuận lợi cho sự di chuyển hàng ngày của các thành viên trong gia đình.

Bên trái cánh cửa là tủ giầy đặt riêng theo yêu cầu, tổng thể thân tủ được thiết kế với màu sơn trắng mờ. Hệ thống các ô thoáng được làm bằng gỗ ván và tích hợp đèn chiếu sáng ấm cúng, mang phong cách tự nhiên, giản dị và đầy ấm áp.

Ở phía bên phải của lối vào thiết kế bảng đục lỗ màu vân gỗ ở bên cạnh tủ máy giặt, dùng để đặt những đồ vật nhỏ, phụ kiện sau khi về nhà.
Phòng khách
Gỗ được sử dụng chủ đạo trong toàn bộ không gian phòng khách giúp ngôi nhà thêm phần ấm áp. Bên cạnh đó, KTS điểm thêm màu xanh lá cây xám tạo sự tương phản giúp hệ thống phân cấp không gian thêm màu sắc và vui mắt hơn.

Tận dụng diện tích ban công ban đầu, các cửa sổ được bịt kín để tạo thành khu hoạt động giải trí theo phong cách tatami của Nhật Bản. Đây là nơi trò chuyện, uống trà yêu thích của người lớn và khu vực dành cho các hoạt động tương tác giữa cha mẹ với con cái.

Một cánh tủ đóng được thiết kế ở phía bên trái của tấm chiếu tatami với tay cầm ẩn vát ngang với tấm ngang của tủ kệ ở bên phải; tấm dọc được phân biệt với cánh tủ màu trắng bằng gỗ màu sắc, và nó nhô ra 1 cm so với cửa tủ. Thiết kế này khiến mọi thứ trở nên mượt mà và trực quan hơn.

Phòng khách phá bỏ phương pháp treo tường TV thông thường mà áp dụng thiết kế màn hình chiếu ẩn, không chiếm diện tích. Tủ giữa phía sau quầy bar ăn uống được làm bằng lam gỗ màu ghi, sau khi phân biệt màu sắc, tỷ lệ hình dạng và không gian của tủ, nó hiện lên cao vút và đẹp mắt.

Quầy bar ăn uống kéo dài trên diện tích căn phòng, bên hông trải chiếu tatami dành riêng cho bàn làm việc, mặt bàn màu gỗ và các ngăn kéo màu trắng tạo nên sự tương phản về màu sắc.
Phòng bếp
Sự "va chạm" của gạch lục giác trên sàn bếp và sàn gỗ của phòng ăn khách mang đến không gian sống động. Bố trí tủ hình chữ U tuy nhỏ vài m2 nhưng các đường di chuyển được quy hoạch rất tốt.

Máy giặt, máy sấy và tủ lạnh đều được tích hợp sẵn trong tủ, ngăn nắp và gọn gàng. Thiết kế bếp tích hợp có thể giải quyết hiệu quả vấn đề khói dầu khi nấu nướng.
Khu ăn uống
Quầy bar ăn uống là trung tâm tương tác giữa phòng bếp và phòng khách, mặt dưới là bàn ăn có chức năng lưu trữ, cánh tủ màu trắng trông không hề nặng nề mà tạo hiệu ứng thị giác nhẹ nhàng, tự nhiên. Từ khu giải trí đến khu văn phòng, rồi đến khu ăn uống và bếp mang tính tương tác cao, mối quan hệ và kết nối giữa không gian với không gian sẽ không thay đổi do diện tích của căn hộ.

Phía sau bàn ăn là ban công nhỏ của căn hộ nguyên bản, sau khi đập bỏ bức tường, hiệu ứng ánh sáng tăng lên rất nhiều, cảm quan về không gian cũng được mở rộng hơn.
Phòng ngủ chính
Màu xanh lá cây đậu được sử dụng cho màu nền của giường, giúp tăng sinh khí cho phòng ngủ và màu trắng nhạt được sử dụng cho phần còn lại của diện tích lớn; trần nhà sử dụng lối đi tối giản để tránh sự đơn điệu cho không gian.

Tất cả các tủ quần áo được thiết kế với tay cầm giấu kín, đơn giản và thống nhất về bề ngoài. Rèm cửa tông màu xám tạo sự tương phản với màu xanh đậu, tăng thêm màu sắc cho không gian.
Phòng trẻ em
Phòng trẻ em được thiết kế với tầng trên và tầng dưới. Tầng trên là giường ngủ, tầng dưới là tủ đựng quần áo và bàn học.

Khung giường diện tích lớn màu trắng cùng với cửa tủ quần áo màu màu xanh lá nhẹ nhàng, tạo nên một không gian hài hòa, tươi sáng và rộng rãi hơn.
Phòng tắm
Nền tường của bồn rửa được ngăn cách với trần theo chiều dọc, màu xanh đậm của mảng tường phí trên gương trang điểm nổi bật trong không gian nhỏ bé, tạo hiệu ứng thị giác rất tốt.

Phương pháp lát thẳng đứng của những viên gạch nhỏ màu trắng trong phòng tắm khiến phòng tắm trông cao và thoáng hơn.
Theo V.K - Vietnamnet
