Đó là câu chuyện về quá trình hình thành căn nhà đẹp, "nhỏ mà có" võ dưới đây của một cô gái trẻ. Với diện tích rất khiêm tốn chỉ có 18m², nhưng KTS đã áp dụng các kỹ thuật thiết kế để điều chỉnh cấu trúc thị giác và không gian. Nhờ đó, căn hộ đã trở nên rộng rãi hơn rất nhiều với điều kiện ánh sáng tuyệt vời. Độ thông suốt cho phép ánh sáng khuếch tán khắp mọi nơi và không gian phụ trợ được mở rộng hiệu quả.

Tuy diện tích không lớn nhưng các chức năng sinh hoạt đều có, phòng bếp liên thông ra ngoài với bàn ăn có đảo giữa, phòng khách được kê sofa chữ L sâu 6m. Đặc biệt, phòng làm việc phía sau phòng khách cũng có thể tập yoga trên không với không gian vô cùng lãng mạn đúng như yêu cầu của nữ chủ nhà.

Như vậy, dù chỉ là ngôi nhà nhỏ xinh nhưng mọi thứ đều rất tiện nghi và hiện đại, chủ nhân có thể tận hưởng cuộc sống yêu thích của mình một cách nhẹ nhàng mà thoải mái.

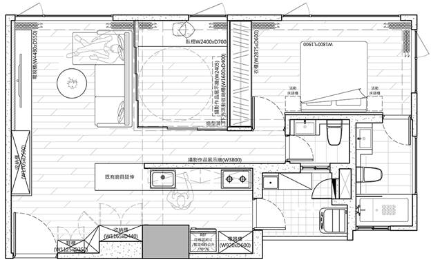
Thiết kế cơ bản của căn hộ trên bản vẽ
1. Thiết kế phòng khách
Phòng khách có chiều sâu với một chiếc sofa chữ L đặt ở trung tâm. Vì vậy, dù ở nhà một mình hay mời bạn bè đến chơi cũng có thể tận hưởng cảm giác rộng rãi, thoải mái. Nhà thiết kế sử dụng tấm đá cẩm thạch màu trắng để tạo ra một bức tường TV tuyệt đẹp và nhẹ nhàng, kết hợp với màu xanh nhạt Morandi của tường nền mang lại sự yên tĩnh độc đáo, đặc biệt là vào ban đêm.

Chiếc tủ màu sáng bên dưới kéo dài đến tận tường, giống như một khung tranh đóng khung TV, tạo cảm giác thẳng hàng và chức năng lưu trữ thiết thực. Lót tủ màu sáng giúp tủ tivi thêm sinh động, sofa chọn màu cam sáng để làm nổi bật vẻ đẹp.

2. Thiết kế nhà bếp
Bức tường ngăn giữa phòng ăn và nhà bếp được đập bỏ, thay vào đó 1 bàn đảo ở giữa được sử dụng để kết nối hai nơi khiến cho khu vực nấu nướng và ăn uống trở nên thông suốt. Mối liên kết bằng sắt đen nổi bật với khung hình chữ U ngược làm ranh giới của đường ngắm.

Mặt bàn và đồ dùng nhà bếp được chọn màu trắng tươi mới, cùng với màu đen thể hiện rõ nét cá tính cũng như phong cách sống của gia chủ. Hệ thống tủ phía sau có màu gỗ đậm hơn mang tính chất trang trí và mang lại cảm giác ấm áp cho không gian.
3. Thiết kế phòng ngủ chính
Để tăng cường sự phân chia khu vực, cửa của phòng ngủ chính là cửa hai màu. Màu xanh lam cho lối đi bên ngoài và màu trắng bên trong trở thành một sự chuyển đổi thị giác thú vị.

Khi chuyển sang phòng ngủ, màu sắc của không gian trở nên nhẹ nhàng và trang nhã. Tấm gỗ đầu giường cách điệu làm cho bức tường trở nên lãng mạn hơn, phần tường sát trần nhà được trang trí bằng những dải thanh mảnh mang đến sự tinh tế, đẹp mắt. Rèm cửa là loại rèm xuyên sáng, không cản luồng ánh sáng, giúp nội thất thông thoáng dưới ánh sáng ban ngày. Gia chủ còn đặc biệt chọn loại rèm hai lớp bao gồm một lớp vải gạc bên trong và một lớp rèm cửa màu hồng bên ngoài tăng thêm tính thẩm mỹ và độ mềm mại cho không gian.

Diện tích ban đầu trong phòng ngủ không lớn, và hiệu quả sử dụng sàn đã trở thành yếu tố thiết kế chính được cân nhắc. Để phòng ngủ master hoàn thiện hơn, nhà thiết kế kê sát vách ngăn phòng làm việc và đẩy ra ngoài. Chỉ bằng cách "tranh thủ" vài m² này chúng ta có thể quy hoạch đầy đủ tủ quần áo, giải phóng phần nào không gian cho phòng ngủ.


4. Thiết kế phòng làm việc
Nghiên cứu ban đầu là một bức tường vững chắc, nhưng vì một phần không gian được phân bổ cho phòng ngủ chính, số lượng diện tích ngày càng ít nên sau đó KTS đã loại bỏ hai bức tường ngăn phòng khách và phòng ăn, thay vào đó là các chi tiết sắt và cửa trượt kính làm ngăn.

Việc điều chỉnh này làm thay đổi đặc điểm ban đầu của phòng làm việc, chuyển từ đóng sang mở và ánh sáng ban ngày cũng khuếch tán sang khu vực lân cận. Ngoài ra, do trần nhà được gắn thêm móc tập yoga trên không theo yêu cầu của gia chủ, nhờ đó việc tập luyện ở nhà được thuận lợi hơn vì cảm giác không gian cũng sẽ rộng rãi và thoải mái hơn, không bị gò bó và ngột ngạt.

Phòng làm việc được thiết kế với một chiếc giường đơn cạnh cửa sổ, còn có chức năng như một phòng khách khi cần thiết. Giá sách âm tường được làm bằng những thanh sắt lam trắng và khung viền đen không xỉn màu nổi bật trên nền tường trang nhã rất đẹp mắt.
5. Quy hoạch kho
Kho được trải rộng ra từng phòng giúp gia chủ có thể bố trí các vị trí lưu trữ tùy theo công năng sử dụng. Giống như hiên nhà, tủ tivi có các ngăn tủ, bao gồm cả chiều cao của tủ quần áo phòng ngủ đến trần nhà, và tiêu chí hàng đầu là bố trí sao cho công suất sử dụng đạt được hiệu quả tối đa.

6. Quy hoạch di chuyển
Bố cục ban đầu của căn hộ gồm 2 phòng ngủ, 2 phòng khách và 2 phòng vệ sinh nhưng đều là tường kiên cố dẫn đến tầm nhìn hạn hẹp. Sau khi cải tạo, nhà thiết kế đã mở một phần tường để làm bếp và phòng ăn để tăng tương tác. Phòng làm việc phía sau phòng khách sử dụng cửa trượt bằng kính thông minh tạo hiệu ứng xuyên thấu, từ đó tích hợp công năng sử dụng thành phòng tập yoga cho nữ gia chủ. Như vậy, nhờ thiết kế khéo léo của KTS, quy hoạch đường chuyển động tổng thể trở nên tiện nghi và thoải mái hơn rất nhiều.

7. Lập kế hoạch màu sắc
Màu Morandi là trục chính của tư duy lập kế hoạch màu sắc, đồng thời đưa màu xanh nhạt và màu hoa oải hương yêu thích của gia chủ vào các lĩnh vực khác nhau. Màu xanh dương nhẹ nhàng như nước biển thích hợp sử dụng trong phòng khách rất dễ chịu, màu hoa oải hương lãng mạn được chọn làm điểm nhấn trong phòng làm việc và phòng tập yoga trên không.
8. Lựa chọn vật liệu xây dựng: Sắt, kính, tủ hệ thống nhập khẩu, sơn latex, đá nhập khẩu, sàn nhựa vân đá…

9. Quy hoạch chiếu sáng
Căn hộ nằm trên tầng cao của tòa nhà nên có môi trường ánh sáng trong nhà rất tốt, ban ngày căn bản không cần bật đèn. Do đó, việc lập kế hoạch chiếu sáng chủ yếu tập trung vào chiếu sáng ban đêm phụ trợ. Hệ thống chiếu sáng được cấu hình cho các nơi khác nhau.

Ví dụ, đèn chiếu sáng được sử dụng trong tủ trưng bày của phòng học. Các tủ rỗng sẽ phản chiếu ánh sáng và bóng tối; phòng khách chủ yếu là chiếu sáng. Vì vậy, KTS đã lên kế hoạch kết hợp các loại đèn, cụ thể là bố trí đèn chùm phía trên bàn ăn để tạo bầu không khí; đối với phòng ngủ thì sử dụng đèn bàn để có nguồn ánh sáng có bản giúp cho giấc ngủ được sâu và thoải mái...
Theo V.K - Vietnamnet
