Chán nhà tầng, vợ chồng Việt xây nhà 2.000m2 như nhà địa chủ-1Ngôi nhà nằm giữa huyện Củ Chi, Thành phố Hồ Chí Minh và tỉnh Tây Ninh - khu vực nông thôn đang thay đổi chóng mặt.

Chán nhà tầng, vợ chồng Việt xây nhà 2.000m2 như nhà địa chủ-2Ngôi nhà được xây dựng và thiết kế cho một gia đình 3 thế hệ với mong muốn các thế hệ trẻ sẽ lưu giữ và kế thừa nhà thờ tổ tiên từ hơn 60 năm.

Chán nhà tầng, vợ chồng Việt xây nhà 2.000m2 như nhà địa chủ-3Khu vực này đang có tốc độ tăng dân số nhanh chóng, một phần do người dân thành thị muốn khám phá cuộc sống nông thôn và chạy trốn khỏi các thành phố bận rộn.

Chán nhà tầng, vợ chồng Việt xây nhà 2.000m2 như nhà địa chủ-4Do đó, sự xuất hiện ngày càng nhiều mô hình nhà ở mới đang dần phá vỡ hình thức nhà ở truyền thống vốn rất hài hòa với thiên nhiên và gắn liền với người dân địa phương nơi đây.

Chán nhà tầng, vợ chồng Việt xây nhà 2.000m2 như nhà địa chủ-5Mô hình nhà ở này được thiết kế như một ốc đảo, được bao quanh bởi những khu vườn với cây dừa, cây cau cùng những cánh đồng lúa rộng lớn đang dần biến mất.

Chán nhà tầng, vợ chồng Việt xây nhà 2.000m2 như nhà địa chủ-6Nhà do một cặp vợ chồng già xây dựng, với mong muốn con trai của họ giữ gìn và kế thừa ngôi nhà của tổ tiên - nơi ông bà, cha mẹ và cháu chắt tụ họp vào cuối tuần.

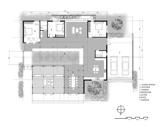
Chán nhà tầng, vợ chồng Việt xây nhà 2.000m2 như nhà địa chủ-7Không gian của ngôi nhà được phát triển theo cách bố trí nhà truyền thống, với nhà thờ (được xây dựng lại từ ngôi nhà cũ ra đời vào những năm 1980)…

Chán nhà tầng, vợ chồng Việt xây nhà 2.000m2 như nhà địa chủ-8… và một không gian sinh hoạt của gia đình, được kết nối bởi một hành lang và cách nhau bởi một hồ nước.

Chán nhà tầng, vợ chồng Việt xây nhà 2.000m2 như nhà địa chủ-9Ngôi nhà giống như một ốc đảo rộng 2000 mét vuông, không gian hoàn toàn mở để lấy gió từ bên ngoài và mọi không gian có thể liên kêt với nhau qua hồ nước ở trung tâm.

Chán nhà tầng, vợ chồng Việt xây nhà 2.000m2 như nhà địa chủ-10Hầu hết nội thất bằng gỗ trong nhà đã được sử dụng hơn nửa thế kỷ.

Chán nhà tầng, vợ chồng Việt xây nhà 2.000m2 như nhà địa chủ-11Mọi không gian đều được thiết kế nhằm chủ động đón nguồn gió và ánh sáng tự nhiên.

Chán nhà tầng, vợ chồng Việt xây nhà 2.000m2 như nhà địa chủ-12Nhà bếp và phòng ăn là khu vực chuyển tiếp giữa khu vực thờ cúng và khu vực sinh hoạt.

Chán nhà tầng, vợ chồng Việt xây nhà 2.000m2 như nhà địa chủ-13Hành lang và phòng khách là không gian mở bên trong, kết nối phòng ngủ của ông bà, cha mẹ và cháu.

Chán nhà tầng, vợ chồng Việt xây nhà 2.000m2 như nhà địa chủ-14Phòng ngủ vẫn giữ được sự riêng tư cần thiết và liên kết với các không gian chung như hành lang, hồ nước, sân trong, phòng ăn, nhà bếp, tạo không gian liên lạc chặt chẽ giữa các thành viên.

Chán nhà tầng, vợ chồng Việt xây nhà 2.000m2 như nhà địa chủ-15Gian thờ được thiết kế theo ý tưởng của ông bà, nhằm duy trì không gian truyền thống đáng kính của gia đình.

Chán nhà tầng, vợ chồng Việt xây nhà 2.000m2 như nhà địa chủ-16Ngôi nhà rộng "thênh thang" và được ví như nhà "địa chủ" thời xưa, mang những nét truyền thống Tây Nam Bộ không thể trộn lẫn.

Chán nhà tầng, vợ chồng Việt xây nhà 2.000m2 như nhà địa chủ-17Vật dụng trang trí của ngôi nhà chỉ đơn giản là chiếc chum nước quen thuộc của miền quê cùng một số loài cây đơn giản đặc trưng.

Chán nhà tầng, vợ chồng Việt xây nhà 2.000m2 như nhà địa chủ-18Sơ đồ mặt cắt ngang thiết kế của dự án.

 

Theo Dân Việt