Đây là căn biệt thự được thiết kế với triết lý gọi là “kiến trúc cảm xúc”. Sau khi kiến trúc sư gặp gỡ với chủ nhân của ngôi nhà, xem xét sở thích và thảo luận, các ý tưởng thiết kế và không gian được xây dựng từ hình ảnh tiềm thức của gia chủ.

Căn biệt thự có diện tích 150m2.

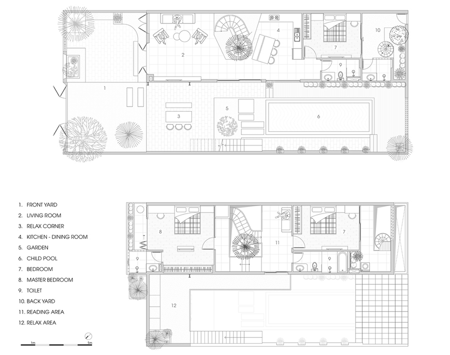
Mặt bằng chi tiết của công trình.

Khoảng sân trước rộng rãi.
Công trình được bố trí là một không gian mở, được kết nối trực tiếp với không gian bên ngoài. Toàn bộ không gian đệm trong nhà cùng với không gian cây xanh ngoài trời được tận dụng. Dù ánh nắng trực tiếp của khí hậu nhiệt đới gây khó chịu nhưng sẽ rất tuyệt nếu ánh nắng được phan tán nhờ cây xanh.

Những vật liệu được sử dụng để trang trí cho mặt tiền căn biệt thự.

Mô tả sơ đồ lưu thông không khí trong nhà.
Không gian sống bên trong và bên ngoài ngôi nhà trở nên sinh động và mát mẻ với sự lưu thông không khí theo hướng bắc nam. Cả hai khu vực đóng và mở sẽ có gió lưu thông suốt cả ngày, giúp tận dụng tối đa các nguồn năng lượng tự nhiên.

Không gian phòng khách và bếp được phân chia bằng cầu thang duyên dáng.

Nơi bố trí cầu thang còn có giếng trời.

Ánh sáng tự nhiên "tràn" đến Không gian bếp.
Với triết lý “kiến trúc cảm xúc”, việc sử dụng các vật liệu cơ bản như gạch, đá, bê tông, hoặc gỗ để xây dựng một ngôi nhà có một bộ khung vững chắc.

Đối diện phòng khách và bếp là khoảng sân vườn.

Các vật liệu cơ bản được kiến trúc sư kết hợp khéo léo.

Cây xanh được bố trí vừa đủ.


Quang cảnh như một resort.
Điều quan trọng nhất mà các kiến trúc sư lưu tâm là thổi hồn vào những vật liệu vô tri vô giác đó để gia chủ có thể tận hưởng nó mỗi sáng thức dậy, đón nhận những cảm xúc cũng như năng lượng tích cực từ nó.

Góc thư giãn khi vừa bước lên tầng 1.

Một góc phòng ngủ trên tầng 1.

Nhà vệ sinh tràn ngập ánh sáng tư nhiên nhưng vẫn giữ được sự riêng tư.
Theo Vietnamnet
