Hình thức nghỉ dưỡng này đem đến cho người dùng những khoảng thời gian nghỉ ngơi tuyệt vời bên gia đình, người thân đồng thời vẫn đảm bảo được an toàn mùa dịch.


Homestay dưới đây được thiết kế theo phong cách Villa là một điển hình đang được lòng nhiều người. Khi đến đây, mọi sự khó chịu sẽ từ từ được xóa bỏ, những áp lực cũng sẽ được giải phóng thông qua sự tiếp xúc tuyệt vời của năm giác quan và những khoảng thời gian thư giãn, nghỉ ngơi thực sự.


Nhóm thiết kế đã sử dụng một số lượng lớn các vật liệu nguyên sinh để đưa thiên nhiên vào từng phòng với kế hoạch trang trí tổng thể mềm mại và độc đáo. Nhờ đó, người ở sẽ không hề cảm thấy gò bó khi chỉ quanh quẩn trong homestay, ngược lại họ cảm nhận được sự phóng khoáng, tự do của khu vực chung rộng rãi, sân trong ấm cúng và thích thú với nhiều loại phòng khác nhau mang cá tính độc quyền.

Theo các KTS, khác với quy hoạch công năng không gian nhà đẹp, homestay nghỉ dưỡng cần làm nổi bật được nét sơn thủy hữu tình nên chiếm tỷ lệ cao trong thiết kế trang trí mềm mại. Nhiều chi tiết và sự khéo léo được làm bằng tay với kỹ thuật tỉ mỉ như: sử dụng vải căng hoặc sơn để biến đổi đồ nội thất hiện có, cấu trúc thiết kế đèn chùm bàn ăn, và mặt sau của giường lát các dải gỗ, phần giữa của các ngăn tủ được dán bằng hàng trăm sợi bông. Mặc dù tốn nhiều thời gian và công sức, nhưng đổi lại tính độc đáo và độ hiếm mà homestay này có được là hoàn toàn thỏa đáng.

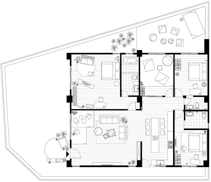
Sơ đồ thiết kế căn hộ với diện tích trong nhà là 64m², bố trí 4 phòng ngủ, 2 phòng khách và 3 phòng tắm
Dưới đây là chi tiết thiết kế của các khu vực chức năng, không gian trong ngôi nhà, mời bạn đọc cùng ngắm nhìn:
1. Diện mạo bên ngoài
Homestay có mặt tiền bằng đá cẩm thạch nguyên bản độc lập với phong cách nội thất bên trong, được phủ bởi lớp sơn vân đá trắng. Với chất lượng tự nhiên và cảm nhận trực quan, có lẽ du khách nào cũng sẽ mong muốn được ở Villa này ngay khi nhìn thấy nó. Bảng hiệu được thiết kế từ sắt và gỗ, được chiếu sáng bằng đèn hẹn giờ vào ban đêm, mang hơi hướng nội tâm và trầm mặc của thành phố.

2. Khu vực đón khách
Mặt tiền màu trắng cùng với một số vật dụng từ mây tre đan và chất liệu gỗ gây ấn tượng mạnh. Chiếc ghế hình quả trứng và đệm sàn tròn mang đến nét duyên dáng giản dị, đồng thời cũng là vật trung gian giữa nội thất trong và ngoài nhà. Không cần biết ngày hay đêm, đây sẽ là góc chụp ảnh sống ảo tuyệt vời cho bạn. Tên homestay trên tường tuy nhỏ nhưng cũng nhân đôi độ sang chảnh cho những bức ảnh.

3. Thiết kế phòng khách
Homestay được bố trí 4 phòng ngủ, đủ chỗ cho 8-10 người ở với khu vực chung sáng sủa, rộng rãi, đảm bảo cho cuộc vui của gia đình hoặc tập thể bạn bè không bị xáo trộn. Nhằm nâng cao tính linh hoạt khi sử dụng, phòng khách rộng được chia thành khu vực kê sofa và khu vực nghỉ ngơi.

Ghế sofa vải và bức tường phía sau cùng tông màu trà sữa, mang đến một chút ngọt ngào và tươi mới. Những chiếc ghế đẩu vuông, bàn cà phê mây tròn và những đồ trang trí mềm nằm rải rác ở giữa tạo nên sự phóng khoáng và thoải mái.

Khu vực chiếu nghỉ được hình thành bởi sự chênh lệch độ cao của những tấm pallet gỗ cho phép bạn ngồi và nằm thoải mái. Chiếc ghế treo mang tính con trẻ càng làm tăng thêm sự phong phú trong phong cách và cũng thể hiện đẳng cấp không gian. Những chiếc đèn chùm độc lạ mang đến một nét ấm áp đặc biệt, nơi bạn có thể trò chuyện và uống rượu vào ban đêm mà không cần bất kỳ quan niệm nghệ thuật nào.

Tủ TV sử dụng lam gỗ hoàn toàn tự nhiên, rèm vải cotton và vải lanh treo trước cửa sổ thay thế cho rèm cửa thể hiện sự nhẹ nhàng với cảm giác bay bổng.

Các ngăn tủ phân chia khu vực phòng khách, phòng ăn và bếp, tủ trên và tủ dưới thuận tiện cho việc cất giữ thiết bị đồng thời tạo điều kiện để mọi người có thể giao lưu hay quây quần tụ họp bên nhau thật vui vẻ, thân tình.

4. Thiết kế phòng bếp
Cửa sổ thoáng sáng, không gian bếp sạch sẽ, giữ nguyên đồ dùng bếp nguyên bản và đảo bếp ở giữa, gạch ốp tường màu be được phủ sơn bệt nhằm thống nhất tông màu trắng chủ đạo của cả căn phòng.

Màu sắc của bàn ăn đã được sửa sang lại, ghế ăn bằng mây đã được mua, và đèn chùm làm bằng gỗ lũa, treo cây xanh và bóng đèn, làm bằng tay độc đáo đẹp như một bài thơ.


5. Thiết kế phòng ngủ thứ nhất
Ánh sáng hai mặt, phòng tắm khép kín và không gian rộng rãi, với nội thất và đồ đạc được ngăn chia khéo léo, cho phép người ở tự do di chuyển giữa khu vực ngủ, khu bàn làm việc, khu thay đồ và khu ghế sofa.

Đặc biệt bộ giường nổi kèm dây và đôn sẽ cho du khách trải nghiệm ngủ độc đáo. Vách sau giường được trang trí bằng khung tre hình tròn đan hoa văn ren tạo sự lãng mạn và ấn tượng.

Rèm cửa và cây xanh khiến không gian thay đồ trở thành một khu vực khép kín. Bước lên chiếc đệm êm ái để thay quần áo và soi gương, bạn luôn thấy tâm trạng thoải mái. Ngồi trên ghế sofa, xem TV, thả mình thư giãn và chụp ảnh tự sướng theo ý muốn sẽ là những kỷ niệm đẹp dành cho bạn.

6. Thiết kế phòng ngủ thứ 2 – phòng đa chức năng
Căn phòng được bố trí đối diện phòng ăn, tạo thành một không gian trưng bày qua khung cửa sổ kính. Các tấm rèm được làm bằng vải tuyn kết hợp rèm sợi dệt, đèn tiếp hợp với đèn chùm bàn ăn, móc treo tường và gương dệt tròn mang đến một trải nghiệm thanh lịch mà tinh tế.

Sàn nhà cao và nệm là nơi ngủ nếu cần. Nó cũng có thể được sử dụng làm phòng chơi cho trẻ em và không gian cắm trại trong nhà. Mở cửa sổ kính suốt từ trần đến sàn để kết nối với sân trong, giống như một khu vực riêng.

7. Phòng ngủ thứ 3 – phòng ngủ tự nhiên
Ngoài sự thuận tiện khi có lối đi thẳng ra sân, việc lựa chọn vật liệu trong phòng cũng mang đầy yếu tố tự nhiên với chất liệu gỗ chủ đạo, đặc biệt là hàng rào gỗ ấn tượng phía đầu giường, mộc mạc mà vẫn điệu đà.

Giá treo quần áo được thiết kế độc lạ, hai hộp gỗ bên dưới vừa là đồ trang trí vừa có chức năng lưu trữ. Chiếc đèn chùm trần có kiểu dáng phong phú với hình dáng của những cành cây, chiếc lá bằng sắt… cũng là điểm nhấn không thể bỏ qua trong phòng ngủ này.

8. Thiết kế phòng ngủ thứ 4
Từ nghệ thuật treo tường, đèn trần, chăn, thảm trải sàn, rèm cửa, tủ đầu giường cho đến giỏ dự phòng… đều mang phong cách mới lạ, độc đáo. Những chiếc móc treo gấp mở được tạo ra một bầu không khí đặc biệt bao trùm.


9. Thiết kế sân
Nếu sử dụng hết đất trống làm sân cỏ như ban đầu thì khi trời ẩm ướt sẽ rất bẩn và bất tiện. Vì vậy ở đây KTS đã thiết kế một khu vực nghỉ dưỡng rộng rãi và đẳng cấp. Lưới sắt, bạt, vật liệu gỗ và tường đá sơn… đã được sử dụng kết hợp để tạo ra một thế giới lãng mạn, nơi du khách có thể khiêu vũ với ánh sáng tuyệt vời vào ban đêm.


Tại khu vực này, buổi sáng thức dậy bạn có thể đắm mình trong nắng ấm, buổi chiều thưởng thức cà phê tráng miệng, nằm võng để hóng gió, buổi tối dưới ánh sao dây, uống chút rượu, nói cười sảng khoái… giúp bạn có một khoảng thời gian nghỉ dưỡng thật thư giãn và ý nghĩa.

10. Thiết kế ánh sáng
Khác với nguồn sáng có độ sáng cao cần có trong không gian gia đình, phòng nghỉ phù hợp hơn với việc tạo ra bầu không khí riêng của từng lĩnh vực thông qua hệ thống đèn chiếu sáng. Từ đèn chiếu lối vào, đèn dây sân vườn đến đèn chiếu sáng chính trong nhà, đèn chùm và đèn tường phụ, đèn đứng và đèn bàn, màu vàng ấm áp hòa quyện một cách tự do và tĩnh lặng.

11. Phương án màu sắc
Màu trắng nhẹ nhàng làm tông chủ đạo từ ngoài vào trong, phù hợp với hệ thống màu nguyên bản của nhiều loại vật liệu. Ngoài ra dinh thự còn được bổ sung số lượng lớn cây xanh thể hiện sự phong phú và thuần khiết của dấu ấn thiên nhiên.

Theo V.K - Vietnamnet
