
Ngôi nhà này được xây dựng, để đáp ứng yêu cầu về một nơi ở phục vụ việc viết, đọc sách và có không gian để tập thể dục của gia chủ.

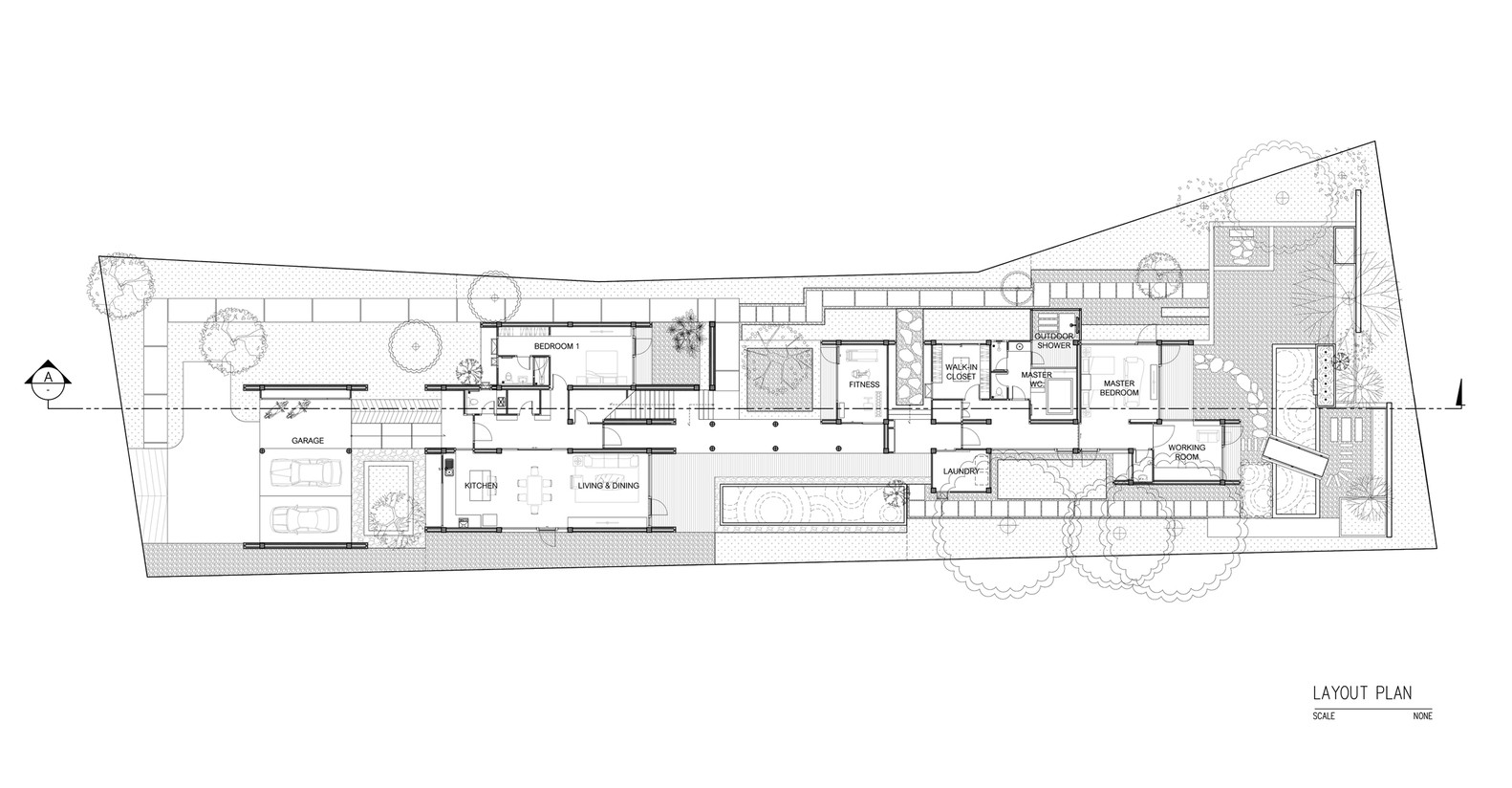
Từ yêu cầu của gia chủ, ngôi nhà một tầng có diện tích 500m2 với hai gian đã được xây dựng.

Gian đầu tiên là nơi bố trí phòng ăn, phòng khách. Điểm đặc biệt ở phòng khách là có lối lên sân thượng, giống như đường chạy dài 60m.


Gian phòng còn lại gồm phòng ngủ chính, phòng thay đồ, phòng tắm chính và phòng đọc sách, được bao quanh bởi ao cá và một khu vườn xanh mát.


Bể bơi và phòng tập thể dục được bố trí nằm ở trung tâm của hai gian nhà.


Các bức tường được tạo thành từ trần bê tông đúc, cho thấy sự pha trộn giữa độ mịn và độ nhám trên bề mặt.

Sân thượng rộng rãi nên gia chủ có thể sử dụng nơi này để chạy bộ và tập thể dục.


Đối với các phần khác của mái nhà, kiến trúc sư lắp đặt tấm pin mặt trời. Khu vực này độc đáo và đặc biệt vì mỗi buổi sáng và trước khi hoàng hôn, nó mang đến cho người ở một khung cảnh đẹp như tranh vẽ và tầm nhìn toàn cảnh ra núi non.



Với mẫu nhà một tầng hai gian này, gia chủ như được tự “chữa lành” trong chính không gian sống của mình.
Theo Tiền Phong
