Khi trao đổi với KTS lần đầu, gia chủ đã xác định rõ mong muốn có một hệ thống thông minh trong nhà. Do đó, quy hoạch tổng thể cũng tích hợp trước tất cả các vị trí phân phối điện như rèm cửa, công tắc đèn, thiết bị gia dụng… đều có thể vận hành và điều khiển bằng giọng nói. Hơn nữa còn có thể theo dõi dữ liệu năng lượng điều hòa không khí, dễ dàng nắm bắt tình trạng của các thiết bị điện tạo nên một cuộc sống mới tiện lợi và thông minh.

Những điểm chính trong thiết kế: Dự án chiếm một khoảng sân rộng 14,5m², với tầm nhìn không bị cản trở lên các tầng cao, vì vậy gia chủ hy vọng sẽ tích hợp không gian trong nhà, ngoài trời và mở rộng nhà ra ban công. Vì thế, cửa sổ kính trong suốt từ trần đến sàn ở phía ban công được thiết lập tạo ra một môi trường giống như một ngôi nhà bằng kính ở góc khu vực ăn uống, và một bệ gỗ nhựa rộng 80cm được đẩy ra bên ngoài ban công rút ngắn khoảng cách giữa bên trong và bên ngoài.

Khu vực bên ngoài đã được lên kế hoạch đặc biệt với những nhà thiết kế sân vườn chuyên nghiệp, để bên ngoài cửa sổ không chỉ là một mặt gạch nhàm chán mà còn bao gồm những cây phong thủy và những con đường mòn tạo cảnh quan đẹp mắt, làm khung cảnh cửa sổ đầy cây xanh và mở ra một bầu không khí tự nhiên vô tận.

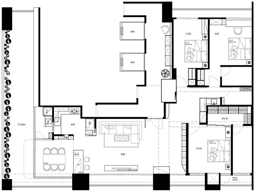
Thông tin cơ bản về căn nhà: Diện tích 55m² (bao gồm ban công), bố trí 3 phòng ngủ, 2 phòng khách, 3 phòng tắm với số người ở là 2 người lớn và 1 trẻ nhỏ.
Yêu cầu của gia chủ:
• Trong nhà có thể kết nối với sân thượng lớn ngoài trời
• Thích khu vực công cộng rộng rãi và bầu không khí thoải mái
• Thỉnh thoảng làm việc tại nhà, hy vọng có quầy bar và bàn ăn lớn
• Xây dựng hệ thống nhà thông minh.

1. Thiết kế lối vào
Sau khi bạn bước vào cửa, đập vào tầm mắt là khung cửa sổ lớn cao từ trần đến sàn, tạo nên khung cảnh ngôi nhà trải dài, làm giảm bớt sự ngột ngạt của không gian do hạn chế về chiều cao. Những ván gỗ óc chó tiếp tục lan tỏa từ hai phía, lặng lẽ ẩn đi các dầm ở lối vào, tạo ra một bầu không khí ấm áp chào đón bạn. Mặt tiền và cửa ra vào được lắp dựng nên bằng kính trong suốt và thanh sắt để gia chủ có thể phóng tầm mắt ngắm cây xanh bên ngoài trong nháy mắt.

Các đường vân gỗ chắc chắn được kết nối theo chiều dọc từ trần nhà, sử dụng hệ thống bảng và gương sáng để thiết lập một tủ trưng bày trong phòng khách, giúp mở rộng chức năng lưu trữ của khu vực đồng thời phân chia ranh giới công - tư. Trong tủ tạo thành nhiều ngăn để ảnh, cúp, sách… và gắn đèn line đồng bộ thu hút mọi ánh nhìn và thắp lên những kỷ niệm đẹp của gia đình.

2. Thiết kế phòng khách
Ánh sáng từ trần đến sàn chiếu sáng khung cảnh sinh động của ngôi nhà, làm nổi bật ưu điểm của ánh sáng ba mặt. Khối lượng màu gỗ hình thang được đặt trên vách TV để hỗ trợ bức tường chính treo đèn, và rèm phía sau là phụ trợ để giải quyết vấn đề ngược sáng, từ đó bảo tồn nguồn sáng tuyệt vời và khung cảnh trước mặt. Vân gỗ được bao bọc từ chân tường đến mặt dầm giống như giới thiệu một khoảng sân ngoài trời để sinh sống, tạo nên một cảnh quan xanh mát tràn đầy sức sống.

Trần nhà trải ra theo hình vòng cung để đóng các góc lại và làm mờ dấu vết của những bức tranh treo bên dưới bằng ánh sáng vàng mờ ảo. Điều này khiến bức tường phía sau chiếc ghế sofa trở nên mượt mà hơn, các dải mạ titan phác thảo các đường dọc và ngang, giúp tạo nên bố cục tinh tế và trang nhã cho ngôi nhà.

3. Thiết kế nhà bếp
Ranh giới của nhà bếp được xác lập bằng một quầy đảo bằng những viên gạch lớn tráng men vàng trắng có vân đẹp mắt. Trần nhà bằng gỗ được thiết kế rất kỳ công với những phiến gỗ xếp thành từng lớp ấn tượng phản ánh ý nghĩa tự nhiên và linh hoạt.

Khu vực ăn uống giống được bao quanh bởi chất liệu kính xuyên thấu, cho phép gia chủ phóng tầm mắt ra ngoài ngắm nhìn không gian xanh mát và phóng khoáng. Từ đó, vợ chồng chủ nhà có thể bắt đầu ngày mới với một tách cà phê êm dịu và thanh bình vào mỗi buổi sáng.

Một tủ lưu trữ được dựng nên phù hợp với sở thích thưởng thức rượu của chủ nhân với tủ kín và tủ rượu kính được đóng khung đối xứng. Các tấm sắt mỏng được đưa vào giữa làm kệ để trưng bày những món đồ lưu niệm, đồng thời khoét ra một ô cửa hình bầu dục để thu hẹp khoảng cách giữa khu vực ăn uống và bếp nấu, dù chủ nhân có ở trong bếp cũng có thể quan sát được con gái bên ngoài.
4. Thiết kế phòng ngủ chính
Cân đối giữa mong muốn của nữ chủ nhà về phong cách khách sạn và sở thích trầm tĩnh, vững chãi của người chồng, đầu giường được làm bằng đá vân và ván gỗ. Ngoài ra, KTS sử dụng đường khâu kết cấu tự nhiên cho phần đế và thêm các dải viền phủ titan, đèn tường bằng kim loại được đan xen và pha trộn tạo nên chủ đề trực quan của căn phòng. Các ván gỗ được mở rộng liên tiếp để lấp đầy khoảng trống của lỗ cột giả và mở rộng khả năng lưu trữ của các vật dụng lớn như va li.

Vách ngăn phòng thay đồ được mở bằng kính mờ và cửa lùa sắt, giúp dẫn luồng ánh sáng ngược lại, từ đó giảm bớt sự nhỏ gọn của tủ. Tủ quần áo kịch trần để tăng công suất lưu trữ, đồng thời bổ sung thêm móc treo và ngăn kéo theo thói quen sử dụng để tập hợp quần áo có trật tự.

5. Thiết kế phòng trẻ em
Màu hồng ngọt ngào và dịu dàng giống như nụ cười tươi tắn, dễ thương của con gái. Được biết, màu sơn tường do con gái gia chủ chỉ định và ngay cả tủ quần áo, bàn học cũng tiếp tục tông màu trắng hồng tạo nên một hình ảnh trẻ thơ hoàn chỉnh. Bàn học được bố trí đặc biệt trước cửa sổ kính suốt từ trần đến sàn, để trẻ có thể giữ thói quen tốt là luôn nhìn ra xa trong khi đọc sách.

6. Thiết kế phòng tắm
Loại bỏ các tủ lưu trữ hình chữ L che các góc, giải phóng sức nặng ở các đường di chuyển và chỉ giữ lại một tủ đựng thỏa mãn thói quen treo áo khoác của gia chủ.

Theo cách bố trí bên cạnh phòng tắm, bồn rửa được đẩy ra ngoài nhà vệ sinh với mặt bàn bằng đá thiên thạch màu đen và gương soi ở trên. Các bộ phận bằng sắt đặt làm riêng và các góc bo tròn được sử dụng để tạo thành một chuyển tiếp hoàn chỉnh ở các góc vuông. Các ngăn tủ được mở bất thường nằm chồng lên nhau bên dưới, tạm biệt ấn tượng rập khuôn cứng nhắc và phân chia phòng tắm bằng khung màu xanh lá cây Morandi nhẹ nhàng, đẹp mắt.


7. Lập kế hoạch lưu trữ
KTS dựa trên thông tin số lượng thành viên gia đình ít và diện tích nhà tương đối lớn để xác định cấu hình chức năng lưu trữ thích hợp. Đồ đạc và vật dụng sử dụng chung chủ yếu được lưu trữ trong khu vực công cộng, còn đồ dùng riêng tư sẽ nằm rải rác trong các phòng ngủ tương ứng của họ. Hình thức tủ được điều chỉnh theo nhu cầu khu vực nên thể tích lớn tương thích hoàn hảo với không gian.
8. Thiết kế ánh sáng
KTS đã hợp tác với các kỹ sư chiếu sáng chuyên nghiệp, họ luôn chú trọng đến tỷ lệ chiếu sáng phù hợp giữa ánh sáng đèn và ánh sáng tự nhiên. Ở đây, họ sử dụng ánh sáng sáng nhưng không chói mắt để tạo ra bầu không khí thoải mái và dễ chịu trong nhà.

9. Lựa chọn vật liệu xây dựng
Ván gỗ tự nhiên, đá nhân tạo, sắt, gương đen, ván mỏng, bảng hệ thống mạ titan.
10. Phương án màu sắc
Thể hiện màu gốc của vật liệu xây dựng là cơ sở để phối màu được thực hiện trong trường hợp này. Một loạt các loại đá và xi măng màu xám, màu gỗ tự nhiên và sơn trắng kết hợp một cách rất hài hòa, tô điểm thêm bằng các bộ phận từ sắt màu đen và ánh vàng mạ titan đã giúp độ sâu của căn nhà được mở ra để mang lại ánh sáng ban ngày nhẹ nhàng. Ngoài ra, căn nhà còn có mảng xanh từ cây cối ở ban công tạo nên tầm nhìn đẹp và thư thái khi đứng ở tầng cao.
Theo V.K - Vietnamnet
