Khi đến thăm địa điểm cải tạo, các KTS nhận thấy rằng căn phòng nhỏ nhưng được chiếu sáng tốt và họ đã tận dụng ưu điểm này để thiết kế nên một gian sinh hoạt thông suốt, không ngăn cách phòng ăn và phòng khách để ánh sáng lưu thông.

Do diện tích hạn chế nhưng chủ nhân mong muốn quy hoạch 3 phòng ngủ và 2 phòng khách nên bàn làm việc của gia chủ được tích hợp bên vách tivi phòng khách. Điều này một mặt giúp gia chủ có thể giao lưu với gia đình bất cứ lúc nào trong khi làm việc, mặt khác tạo nên sự đơn giản, không có thiết kế rườm rà trong phòng khách, tạo không gian làm việc thư thái và thoải mái.

Phòng ăn có sự kết nối giữa quầy đảo nhỏ và bộ bàn ghế xinh xắn. Một bồn rửa bé được đặt trên mặt bàn sát tường với máy pha cà phê bên cạnh bởi sau khi thức dậy vào buổi sáng, vợ chồng gia chủ đã quen với việc pha một tách cà phê như một nghi thức để đánh thức ngày mới. Cách sắp xếp này giúp họ có thể rửa chén đĩa sạch sẽ một cách tiện lợi mà vẫn rất gọn gàng ngay sau khi uống cà phê hay ăn sáng.

Điều thú vị là bề mặt quầy đảo được kéo dài đặc biệt giúp bàn rộng và dễ sử dụng hơn, đồng thời gần với bàn ăn hơn. Ngoài ra, gia chủ còn rất thích đi cắm trại vào những ngày nghỉ để tạm thoát khỏi những ồn ào thường ngày của thành phố, vì thế họ có như cầu về việc thiết lập một không gian lưu trữ đủ lớn để chứa những dụng cụ cắm trại này.

Chỉ là có rất nhiều loại thiết bị như lều trại, nệm hơi, thảm trải sàn, bàn ghế xếp và các đồ vật lớn nhỏ khác, tổng cộng không gian lưu trữ cần thiết yêu cầu không nhỏ. Vì vậy KTS đã thiết kế làm sâu thêm tủ đồ từ hành lang vào, kể cả tủ bên cạnh bức tường TV. Cả 2 có sức chứa tương đối lớn để đóng gói thiết bị cắm trại mà vẫn giữ cho căn phòng gọn gàng.

Không gian bếp được thiết kế khép kín truyền thống nên KTS sử dụng mặt quầy đảo liên kết với bàn ăn hình thành "sân chơi" trong nhà rất ý nghĩa. Trong bếp có nhiều chai lọ, xoong nồi lặt vặt cần phải dọn dẹp nên tủ đồ được quy hoạch dưới mặt bàn giúp không gian lưu trữ của bếp được khép kín. Đồng thời, sự xuất hiện của quầy đảo có tác dụng mở rộng, tạo nên sự liên kết giữa phòng ăn và nhà bếp gần gũi hơn.

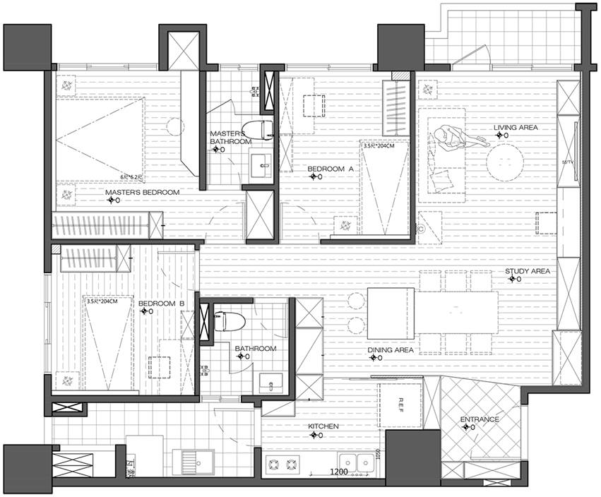
Thông tin cơ bản của căn hộ: Nhà ở mới diện tích 25m², bố trí 3 phòng ngủ, 2 phòng khách, 2 nhà vệ sinh cho 2 người lớn 2 trẻ nhỏ.
Nhu cầu của chủ nhà:
- Có đủ không gian để chứa dụng cụ cắm trại.
- Đơn giản và không gian rộng rãi
- Phòng dành cho trẻ em có thể điều chỉnh theo sự phát triển của chúng trong tương lai.
1. Thiết kế lối vào
Lối vào có chức năng che chắn, do đó nó sẽ không thể nhìn xuyên qua phòng ngay từ đầu và giữ lại cảm giác nhất định của sự riêng tư. Đối với không gian này, nó còn có chức năng lưu trữ đồ đạc của những kỳ nghỉ cắm trại, dù là trước hay sau khi đi chơi về đều có thể đặt các thiết bị gần cửa ra vào. Tuy nhiên để không gian không quá chật hẹp, cánh tủ được thiết kế như những chiếc quạt gió kiểu Mỹ nhằm giảm bớt sự tắc nghẽn thị giác và duy trì sự thông thoáng.

Chất liệu sàn cũng được lựa chọn có chủ ý là gạch lát nền màu xám phù hợp với bụi rơi, đồng thời làm đệm trước khi bước vào sàn gỗ của gian chính. Tủ có một bệ nhỏ thu gọn vào bên trong, có thể dùng để đặt chìa khóa hoặc các vật nhỏ khi ra vào cửa.
2. Thiết kế phòng khách
Khi đến tiếp nhận công trình, KTS thấy căn phòng được chiếu sáng tốt và chủ nhà thích đơn giản nên đã quyết định để ánh sáng làm chủ đạo của không gian, thay vì kết hợp quá nhiều thiết kế, dựa vào ánh sáng ban ngày và đồ nội thất mềm để cung cấp sự ấm áp. Khi ánh sáng là trục chính của không gian, sàn gỗ và lam gỗ được kết hợp với tủ màu trắng để tăng cường bầu không khí trong nhà khi có đủ ánh sáng vào ban ngày. Với sơn màu xám kem và ghế sofa màu xanh lá Morandi, bầu không khí êm dịu của cuộc sống phòng được định hình cho phòng khách.

Vách tivi kết hợp bàn làm việc và tủ tạo thành một mặt đứng so le, nhiều lớp. Tủ sách tiếp trần nằm ở một bên tạo góc thích hợp để đặt sách hoặc trưng bày vật dụng, bên còn lại là dãy bàn phẳng là nơi làm việc, tủ tivi ở giữa với các kệ thả cao thấp, làm mặt tiền nghiễm nhiên trở thành một đường nét trực quan trong không gian.

3. Thiết kế phòng bếp
Một gia đình bốn người cần ít không gian ăn uống, bàn ăn lớn trở thành nơi trò chuyện vui vẻ của gia đình. Một bên là mặt bàn đá nhân tạo màu trắng, mặc dù nó không lớn nhưng đủ để gia đình ăn sáng nhanh chóng và tiện lợi tại đây trước khi bắt đầu hành trình của ngày mới. Dưới gầm tủ có ngăn để đồ, có thể để xoong nồi.

Bức tường phía sau bàn ăn là tấm từ tính, có tác dụng hút, vừa có thể dán áp phích hoặc dải giấy, vừa có thể làm biển báo giao tiếp hàng ngày giữa các gia đình, rất ý nghĩa cho cuộc sống.

4. Thiết kế phòng ngủ chính
Đáp ứng sở thích của gia chủ với kết cấu đơn giản, phòng ngủ được trang trí bằng vật liệu gỗ dưới ánh sáng chan hòa tự nhiên. Tủ tivi đặt ngay cửa ra vào là chiếc bàn gỗ nhỏ dài sát tường, tiện lợi cho gia chủ để túi xách, điện thoại… bất cứ lúc nào. Mảng tường ở đầu kia của bục làm chức năng tủ lưu trữ và tủ sách, thích hợp để đặt sách hoặc các vật dụng nhỏ đáp ứng những tình cảm thiết thực cần có trong cuộc sống.


5. Thiết kế phòng trẻ em
Hai con của gia chủ còn nhỏ, sơ đồ phòng ngủ đã dành không gian để điều chỉnh sau khi chúng lớn lên, chẳng hạn như ván đầu giường là đồ nội thất có thể di chuyển được. Các bức tường được sơn màu xanh và hồng mờ với các đường nét hình học, cho phép trẻ lớn lên trong một môi trường trực quan đầy màu sắc.


6. Thiết kế đường di chuyển
Dự án này là nhà mới xây, chỉ thực hiện các thay đổi đơn giản về cấu hình điện nước theo yêu cầu của khách hàng chứ không thay đổi bố cục. Vì bố cục ban đầu khá vuông vắn và không có không gian bất thường cần được điều chỉnh, do đó không cần phải cố ý thay đổi. Không gian công cộng tập trung ở nửa phía trước, và các phòng ngủ riêng tư tập trung ở nửa sau. Khu vực chung và riêng được phân chia đã tính đến cuộc sống và quyền riêng tư.
7. Thiết kế chiếu sáng
Không gian công cộng là nơi sinh hoạt chung thường có xu hướng sáng hơn, phòng ngủ là nơi nghỉ ngơi nên nguồn sáng cần dịu và ấm. Vì vậy khi thiết kế hệ thống chiếu sáng KTS đã bố trí những công tắc khác nhau và ánh sáng sẽ thay đổi theo đó, có khi chỉ cần nguồn sáng yếu thì không cần kích hoạt công tắc nào cả.


8. Lựa chọn vật liệu xây dựng
Sàn siêu chịu mài mòn, đá nhân tạo, veneer, bảng từ.
9. Thiết kế màu sắc
Duy trì sự thoải mái về thị giác là yêu cầu chính trong việc lựa chọn màu sắc cho trường hợp này. Với điểm nhấn bằng gỗ ấm áp, tường màu trà sữa và mặt bàn màu trắng tạo nên một không gian tinh khiết, giản dị cho cảm nhận về một nhiệt độ sống nhẹ nhàng mà ổn định.

Theo V.K - Vietnamnet
