Nếu chỉ quan sát qua căn nhà đẹp này, có lẽ nhiều người sẽ lầm tưởng rằng nó đã được tối giản hết các loại tủ đồ, giá kệ. Tuy nhiên thực tế thì ngược lại, chủ nhà có nhu cầu lưu trữ rất lớn nên các kho lưu trữ xuất hiện nhiều nơi trong nhà nhưng lại được thiết kế rất đặc biệt vừa hiệu quả vừa đẹp mắt.



Vì chủ nhà là một người sáng tạo nghệ thuật nên anh phải cô đọng ánh sáng phát ra từ nguồn cảm hứng dồi dào. Trong những năm qua, anh đã có một số lượng lớn tranh cuộn, bộ sưu tập nghệ thuật, thậm chí cả những sáng tạo và thiết bị quy mô lớn cần đến. Cùng với việc sinh em bé, số lượng đồ dùng cho việc này cũng rất nhiều… nhưng chúng đều được cất giữ khéo léo theo phong cách vô hình xúc tích thông qua những chiếc tủ âm tường ẩn tinh tế. Nhờ đó, gia chủ có một không gian sống chất lượng cao và môi trường trong lành, tạo nên một vẻ ngoài đẹp đẽ và trong sáng.



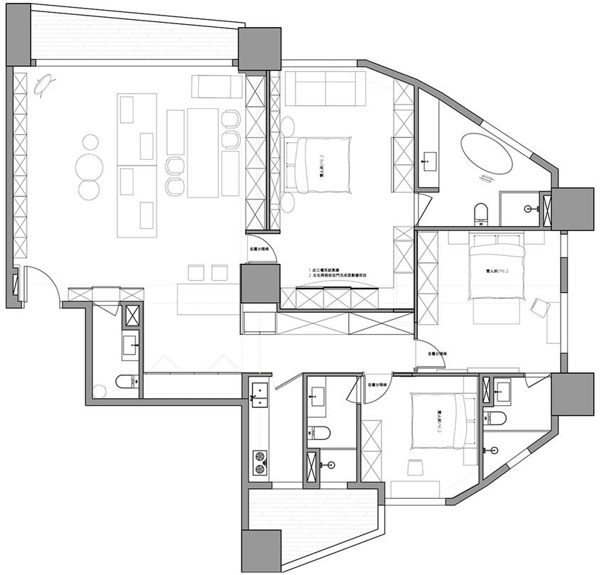
Thông tin cơ bản: Căn hộ 50m² trong tòa nhà có thang máy, bố trí 3 phòng ngủ 2 phòng khách và 4 phòng tắm cho 3 người lớn và 1 trẻ nhỏ ở.

1. Thiết kế lối vào
Để có được tổng thể bề thế, lối vào được xây dựng bằng tông màu gỗ, khi bước vào phòng khách không có sự cắt xén hay vách ngăn ở bất kỳ khu vực nào. Nó được mở về mọi hướng từ, phù hợp với mặt tiền được tổ chức tốt của phòng khách.


Ở phía bên trái của lối vào là toàn bộ bức tường TV, phía bên phải đặt 3 chiếc gương màu đen và cửa trượt bằng sắt mạ titan được sử dụng để che giấu một cách kéo léo khu vực để giày dép. Tủ để đồ và phòng tắm của khách ẩn sau bề mặt tấm gương đầy tinh tế.



2. Thiết kế phòng khách
Tiếp tục tông màu gỗ của hiên nhà, vách tivi màu trắng được biến tấu vừa tôn lên sự sang trọng của chiếc tivi vừa biến thành những cánh tủ thông minh, mềm mại che dấu toàn bộ giày dép và vô số những món đồ nhỏ mà gia chủ lưu trữ. Hệ thống tủ màu trắng tạo ra hiệu ứng thị giác mỏng và nhẹ, tiếp tục kỹ thuật tinh tế trong việc hiện thực hóa "bức tường chính" của tủ.

Mặt còn lại vẫn giữ một cửa sổ lớn từ trần đến sàn, được ngăn bằng một tấm rèm vải mềm thẳng đứng có thể điều chỉnh được, để ánh sáng và gió có thể tràn vào đây trong chốc lát, đồng thời cũng rất rộng rãi do được thiết kế riêng. Đồng hồ đặt hàng với đệm có thể điều chỉnh và di chuyển được lựa chọn.

3. Thiết kế phòng ăn
Phòng ăn mang tính gắn kết nên được thiết kế mở thông với phòng khách. Do lượng khách đến nhà đông nên gia chủ đặc biệt lựa chọn bộ bàn ăn bằng sứ dài 2,6m có thể ngồi đến 10 người giúp gia đình vui vẻ cả ngày.

Kho lưu trữ cũng được giấu ở phía sau mặt tiền với các kệ trưng bày mở để ảo hóa toàn bộ bề mặt. Hệ thống đèn chùm so le tuyến tính hình thoi ở phía trên bàn ăn lạ mắt cũng tạo ra điểm hội tụ thị giác cho khu vực công cộng.

Một mặt tường được ốp đã đen sẫm bóng và dày tạo nên sự phân biệt rõ ràng giữa khu vực công và tư, được đặt bên cạnh mặt bàn đảo trung tâm. Để đạt được sự gọn gàng và thống nhất trong phong cách lưu trữ ẩn, phòng ăn và tủ bếp được chuyển ra hành lang để giảm bớt sự lộn xộn đồng thời mở rộng chức năng thực tế của hành lang.



4. Thiết kế hành lang
Hành lang dẫn đến khu vực riêng tư dài tới 5m, qua vệt đèn từ hình chữ L, trần nhà quay ngay xuống mặt tiền phía dưới. Điều này không chỉ đơn giản hóa trải nghiệm đường dài mà còn tạo ra những đường nét và ánh sáng nhẹ nhàng, mềm mại. Kết cấu vùng đệm thoáng sáng giúp việc sử dụng các thiết bị bếp và khu vực bàn ăn trở nên thuận tiện hơn.



5. Thiết kế phòng bếp
Tiếp tục phong cách tuyến tính, vách tivi so le với tủ bếp phẳng màu trắng được thi công theo kiểu nâng hạ. Phần dưới tủ bếp được trang bị vật liệu chịu lửa chống cháy màu cacao, tạo nên một kết cấu tinh tế và chất lượng cao trong sự đơn giản.


6. Thiết kế phòng ngủ master
Do tường sau của giường ngủ chính là tường thụt vào, hình dáng nông và mỏng, nên KTS đã bố trí đèn từ rải rác và khéo léo xây dựng cả một kho chứa đồ tiện lợi.


Trên bức tường dẫn vào phòng tắm master, cửa lùa được sử dụng để tạo hình cho vách tivi, đây cũng là phương pháp bố trí mặt tiền của tủ lưu trữ.

Vì bà chủ thích bàn trang điểm linh hoạt nên đặc biệt chọn khay trang điểm được giấu trong tủ, vừa tạo sự đơn giản, linh hoạt lại có thêm một chiếc ghế sofa màu sắc nổi bật, mang không khí của một khách sạn hạng sang vào căn phòng.


7. Thiết kế phòng người già
Những người lớn tuổi đặc biệt yêu thích bầu không khí tươi sáng thể hiện cuộc sống hưu trí thanh lịch và thoải mái. Vì vậy căn phòng này được trang bị ánh sáng trắng, từ tay nắm tủ quần áo tráng men tinh xảo, đến các yếu tố màu xám và xanh Morandi, các đường nét vuông vắn không đối xứng… đều thể hiện phong vị sang trọng và nhịp nhàng. Tất cả đều hiện rõ trong các chi tiết được lựa chọn.



8. Thiết kế phòng ngủ cho khách
Hiện tại đây là phòng dành cho khách và trong tương lai nó được lên kế hoạch sử dụng làm phòng dành cho trẻ em. Không gian căn phòng mang hơi hướng của một quán cà phê mang đến cho chủ nhân những giờ phút thư giãn và giải tỏa tâm trạng hiệu quả. Những bức tường ốp gỗ màu vân trầm được tích hợp thêm kệ gỗ và một vài núm treo đồ lạ mắt tạo phong cách riêng độc đáo cho căn phòng.



Theo V.K - Vietnamnet
