Ngôi nhà không cần đẹp như nhà mẫu nhưng phải có ý nghĩa riêng về cuộc sống là điều mà chủ nhân của tổ ấm này mong muốn. Chính vì vậy, trước khi tiến hành cải tạo, các KTS đã có sự nghiên cứu và tìm tòi ý tưởng thiết kế sao cho gia chủ sẽ luôn cảm thấy vui vẻ và thật thoải mái trong không gian mới của căn nhà.

Chủ nhà yêu thích đồ gỗ nên đây cũng là vật liệu chính được sử dụng nhiều nhất trong căn hộ với cách bố trí không gian sinh hoạt rất khoa học và đẹp mắt, tuy đơn giản nhưng đã thỏa mãn nhu cầu của chủ nhân: "Sống trong ngôi nhà bằng gỗ, thức dậy trong ánh nắng ban mai dịu nhẹ, dùng bữa với khung cảnh thiên nhiên mát lạnh, trẻ con thoải mái nô đùa vui vẻ và ăn toàn ... Mỗi khoảnh khắc đều thật tuyệt vời và không thể thay thế! ”

Nói về lợi thế của dự án này, các KTS cho biế đó là lượng ánh sáng dồi dào sẵn có và khung cảnh xanh mát bên ngoài cửa sổ. Khi xác định lấy “vật liệu gỗ kết nối cả căn phòng” làm trục chính, họ đã dùng sơn trắng trang nhã và vật liệu màu gỗ để định hình màu nền của không gian. Cụ thể, tủ gỗ sồi và sàn nhà bằng gỗ đã tạo nên một không gian đồng điệu. Chất liệu nội thất, vải sofa và màu rèm đều phù hợp với hệ thống màu đất tươi tắn và tự nhiên, tạo nên nhịp điệu thị giác hài hòa về chiều sâu và ánh sáng.

Bên cạnh đó, gia chủ có tính tự do cao trong công việc với thời gian ở nhà rất nhiều, họ mong muốn tổ ấm phải thực sự thư thái, đáp ứng được quỹ đạo cuộc sống dành riêng cho gia đình theo ý mình chứ không cần thiết phải là một không gian quá đẹp. Do đó, các KST đã thiết lập một bức tường lỗ trong tủ để đồ ở hiên nhà, là nơi quần áo hoặc phụ kiện, túi xách có thể được chọn và lưu giữ một cách tiện lợi; phòng ăn được thiết kế thoáng rộng liên thông với phòng khách để tiện cho nữ chủ nhà tập luyện yoga và nó cũng là sân chơi cho ba đứa trẻ...

Mặt khác, chủ sở hữu không muốn việc bảo dưỡng đồ đạc quá rườm rà, khó khăn nên KTS đã thay thế đèn âm trần bằng đèn chiếu sáng, điều hòa và một số đồ gia dụng cũng được sắp đặt theo tiêu trí tương tự để dễ lau dọn và sửa chữa khi cần.

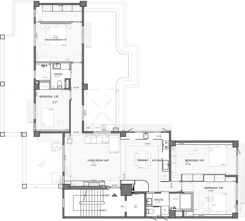
Thông tin cơ bản theo thiết kế cải tạo: Căn hộ hình chữ L, diện tích 40m2 cho 2 người lớn và 3 trẻ nhỏ sinh sống, gồm 4 phòng ngủ, 2 phòng khách, 2 phòng tắm.

Dưới đây là chi tiết thiết kế từng khu vực trong nhà, mời độc giả cùng ngắm nhìn và tham khảo:
1. Thiết kế lối vào
Khu vực lối vào được thiết kế khá lạ mắt với một chiếc kệ nhỏ được quy hoạch bên trái để thuận tiện cho việc đặt những chiếc chìa khóa nhỏ.

Cạnh bên phải là một hệ thống tủ gỗ lớn kết hợp chức năng của tủ giày, tủ treo quần áo và kho lưu trữ với các góc được bo tròn vừa loại bỏ các góc nhọn vừa vui mắt và an toàn. Các ô cửa được đục lỗ ấn tượng tích hợp các móc treo đồ xinh xắn đã kích hoạt không gian thêm phần tiện lợi cho gia chủ mỗi khi đi ra ngoài hoặc về nhà.

2. Thiết kế phòng khách
Để tạo cảm giác thông thoáng và không bị che khuất tầm nhìn, phòng khách chỉ được trang bị tủ và ghế sofa dọc hai đầu bức tường, còn khu vực trung tâm được dành cho bà chủ tập yoga mỗi ngày và lũ trẻ có thể vui đùa thoải mái. Như vậy, kể cả không đi ra ngoài được, người lớn vẫn có thể nạp năng lượng cho cơ thể và trẻ em cũng không bị gò bó mà vẫn được chạy nhảy, nghịch ngợm.

Nhìn thẳng từ cửa ra vào ta thấy một cửa sổ lớn cao từ trần đến sàn được thiết kế với rèm cửa để tùy chỉnh lượng ánh sáng tự nhiên. Bên cạnh đó là một kệ âm tường được quy hoạch làm nơi đựng sách vở hoặc đồ chơi của trẻ em.
Đối diện ghế sofa là một tủ gỗ lớn được thiết kế dạng treo tường để tivi, bên dưới có khoảng trắng để giảm bớt cảm giác áp lực cho thị giác. Phòng khách và phòng ăn còn được bố trí 2 cửa sổ rộng bằng kính trong suốt suốt cho phép gia chủ phóng tầm mắt ngắm nhìn khung cảnh thiên nhiên với cây cối xanh mát bên ngoài.

Ghế sofa chữ L được lựa chọn cẩn thận để phù hợp với thể tích của không gian dưới bệ cửa sổ. Hằng ngày gia chủ có thể nằm dài thư giãn trên ghế tận hưởng sự yên tĩnh và nhàn hạ, hoặc tụ họp vui chơi cùng gia đình đầm ấm, hạnh phúc.

3. Thiết kế nhà bếp
Các thiết bị phần cứng của bếp mở được làm bằng thép không gỉ, ngoài độ bền và dễ lau chùi, nó còn thể hiện thái độ sống của gia chủ, cho phép các vật liệu chất lượng thể hiện đẳng cấp của người ở. Không gian bằng gỗ được kết hợp với các yếu tố kim loại như vậy đã tạo ra một bầu không khí hiện đại vừa phải, đảm bảo cuộc sống tiện nghi và thoải mái nhất có thể.


Theo đuổi những chi tiết cao cấp, bộ bàn ghế ăn là đồ gia dụng của một thương hiệu nổi tiếng, được đánh bóng thủ công bằng tay và chạm khắc tinh tế với hình vòng cung khiến người dùng như được bao bọc bởi sự dịu dàng.


Khung cửa sổ dài mang đến một mảnh ánh sáng mặt trời và một chút bóng cây khiến khu bếp núc bừng bừng sức sống. Đứng ở đây nấu nướng, quây quần ăn bữa cơm gia đình hoặc dùng làm bàn làm việc đều rất ổn và thoải mái.

4. Thiết kế phòng ngủ chính:
Phòng ngủ chính có hai mặt thoáng đón nhận ánh sáng ban ngày và cho phép chủ nhân tự do ngắm nhìn những thay đổi của thiên nhiên cây cối bên ngoài.


Tường ngăn bằng gỗ kết hợp với cửa ẩn của phòng thay đồ, phía trên và các ngăn tủ rộng rãi thoải mái cho nhu cầu lưu trữ của gia chủ. Tấm đầu giường và bàn cạnh giường cũng được làm bằng gỗ mang lại một mức độ nhịp nhàng, thư thái cho không gian nghỉ ngơi riêng tư này.

5. Thiết kế phòng ngủ thứ hai
Để duy trì không gian dành riêng cho trẻ khi lớn lên, quy hoạch của phòng trẻ em, ngoại trừ bộ giường cần thiết, tủ quần áo âm sàn và ván sau giường thì các phần còn lại đều được sắp đặt linh hoạt để có thể đặt thêm đồ đạc trong tương lai.


Gia chủ thực sự là người yêu thích và gắn bó với chất liệu gỗ, chiếc đàn piano điện tử của các bé cũng được chế tác từ gỗ cùng màu với tủ và sàn nhà tạo nên không gian hài hòa, ấm áp. Đây là không gian lý tưởng để vỗ về giấc ngủ cho bé.


6. Thiết kế phòng tắm
Bốn phòng ngủ được đặt ở hai đầu của căn hộ hình chữ L, vì vậy, không có phòng tắm dành riêng trong phòng ngủ chính, mà là hai phòng tắm được thiết kế độc lập kiểu Nhật.


Những miếng gạch lớn màu xám được sử dụng trên sàn và tường, kết hợp với tủ gỗ, tạo nên phong cách thanh lịch, dịu dàng. Cho dù bạn tắm trong bồn hay tắm trong phòng tắm vòi sen, phần cứng của vòi được đặt ở độ cao của bồn tắm và bạn có thể tận hưởng cảm giác thư thái khi tắm táp.

7. Thiết kế đường di chuyển:
Các không gian sinh hoạt được thiết kế nối tiếp không vách ngăn nên các thành viên trong gia đình có thể tự do di chuyển, cũng không hề bị gò bó hay gặp khó khăn khi đi lại.

8. Lập kế hoạch lưu trữ
Các tủ lưu trữ được thiết kế rất gọn gàng với tỷ lệ sử dụng tốt nhất mà vẫn tiết kiệm được không gian và chỉ được đặt ở đúng nơi đủ tiêu chuẩn nhằm tăng thêm chất lượng cuộc sống

9. Lựa chọn vật liệu xây dựng: Thép không gỉ, gỗ tự nhiên, đá nhân tạo, sơn bóng gạch nhập khẩu, kính nhiều lớp, gương sáng…
Theo V.K - Vietnamnet
